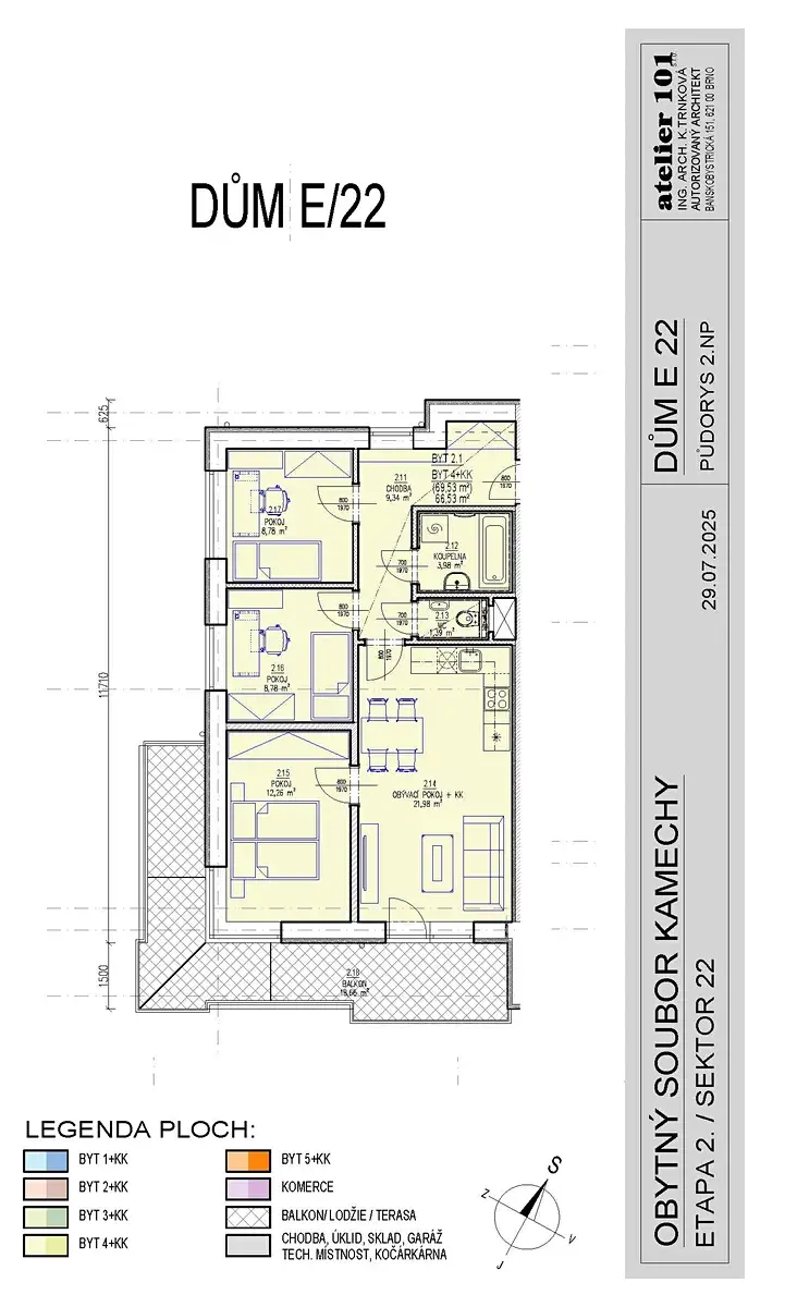
Prodej bytu 4+kk, Brno, Žabí, 69 m2

Žabí, Brno, Žebětín

9 395 000 Kč
/za nemovitost
Hypotéka od 41 990 Kč /měs. Chci hypotéku

Parametry bytu

AdresaŽabí, Brno, Žebětín
StavbaCihlová
Stav objektuVe výstavbě
Patro2.
VlastnictvíOsobní
Užitná plocha69 m2
Balkon
Garáž
Parkování

Origo partneři v Brně

Popis

Představujeme Vám tento prostorný byt 4+kk v osobním vlastnictví, který je nyní ve fázi výstavby a bude připraven k nastěhování na konci roku 2027. Nachází se v cihlové stavbě ve druhém patře, která je součástí nového moderního projektu v Brně. Byt nabízí užitnou plochu 69,53 m², s důrazem na efektivní využití prostoru.

Velkou výhodou tohoto bytu je balkon o ploše 19 m², který poskytuje možnost relaxace s výhledem do okolí.

K bytu je možné přikoupit parkovací místo, garáž se skladem, garáž ve 3.PP domu CD22, který je propojen průjezdným krčkem s 2.PP domu E22.

Plánované dokončení výstavby je na konci roku 2027, což dává prostor k přizpůsobení některých detailů podle Vašeho vkusu. Provozní náklady Vám sdělí makléř, který je kontaktní osobou u tohoto inzerátu.

Pokud Vás tento byt zaujal, neváhejte nám napsat nebo zavolat a rádi Vám vše ukážeme osobně. Pro více informací o této nemovitosti nebo sjednání prohlídky nás prosím kontaktujte nebo vyplňte níže uvedený formulář, rádi Vám pomůžeme.

Makléř

Máte zájem o tento byt?

Tímto, v souladu s nařízením Evropského parlamentu a Rady (EU) 2016/679, v platném znění, prohlašuji, že mi je alespoň 16 let a uděluji tak svůj souhlas se zpracováním zadaných údajů (jméno, telefon, e-mail, ip adresa) společnosti B3 Technology, s.r.o., IČ: 07330600, se sídlem Novostavby 126/23, 435 11 Lom (správce dat), za účelem předání dotazu z tohoto formuláře Vámi vybranému inzerentovi a zpětného kontaktování mé osoby. Osobní údaje bude správce zpracovávat manuálně i automaticky přímo prostřednictvím svých zaměstnanců. Informace předané tímto formulářem budou uloženy v databázi správce maximálně po dobu 10 let. Odvolání souhlasu s uložením a zpracováním poskytnutých dat lze e-mailem na info@origo-reality.cz. V případě podezření na neoprávněné použití Vámi poskytnutých údajů máte právo předat podnět k šetření Úřadu pro ochranu osobních údajů. Více informací
Chystáte se prodat nemovitost?
Pomůžeme Vám!

Přihlášení k odběru

Nenechte si ujít nejnovější nabídky prodeje bytů 4+kk v Brně.