Prodej chaty, Plzeň, K Valše, 62 m2

K Valše, Plzeň, Litice

2 990 000 Kč
/za nemovitost
Cena je včetně provize RK a právního servisu
Hypotéka od 13 363 Kč /měs. Chci hypotéku

Parametry domu

AdresaK Valše, Plzeň, Litice
IDN117344
StavbaSmíšená
Stav objektuV rekonstrukci
VybavenoČástečně
Druh objektuSamostatný
Lokalita objektuKlidná část obce
Užitná plocha62 m2
Zastavěná plocha54 m2
Plocha pozemku412 m2
Třída energetické náročnostiG - Mimořádně nehospodárná
OdpadVeřejná kanalizace
TopeníLokální tuhá paliva
KomunikaceAsfaltová
VodaMístní zdroj vody
Topné tělesoKrbová kamna
Zdroj teplé vodyBojler - elektro
Garáž
Bezbarierový přístup
Parkování

Origo partneři v Plzni

Stěhovací služby

Popis

Toužíte po místě, kam můžete utéct od každodenního shonu a opravdu si odpočinout? Právě pro vás máme skvělou příležitost!

V oblíbené lokalitě Plzeň – Litice nabízíme útulnou chatu ideální pro rekreaci, která spojuje klid přírody s výbornou dostupností města. Do centra Plzně i na Bory dojedete za pár minut, nájezd na dálnici D5 zvládnete přibližně za 5 minut.

Za cenu garsonky v Plzni získáte vlastní zázemí pro víkendy i delší pobyty:
pozemek o velikosti 412 m² (včetně zastavěné plochy) nabízí místo pro parkování, pergolu, posezení s přáteli i prostor pro zahrádku nebo třeba vířivku.

Dispozice chaty vás příjemně překvapí:
V přízemí najdete garáž, dílnu a technické zázemí – ideální pro uskladnění všeho potřebného.
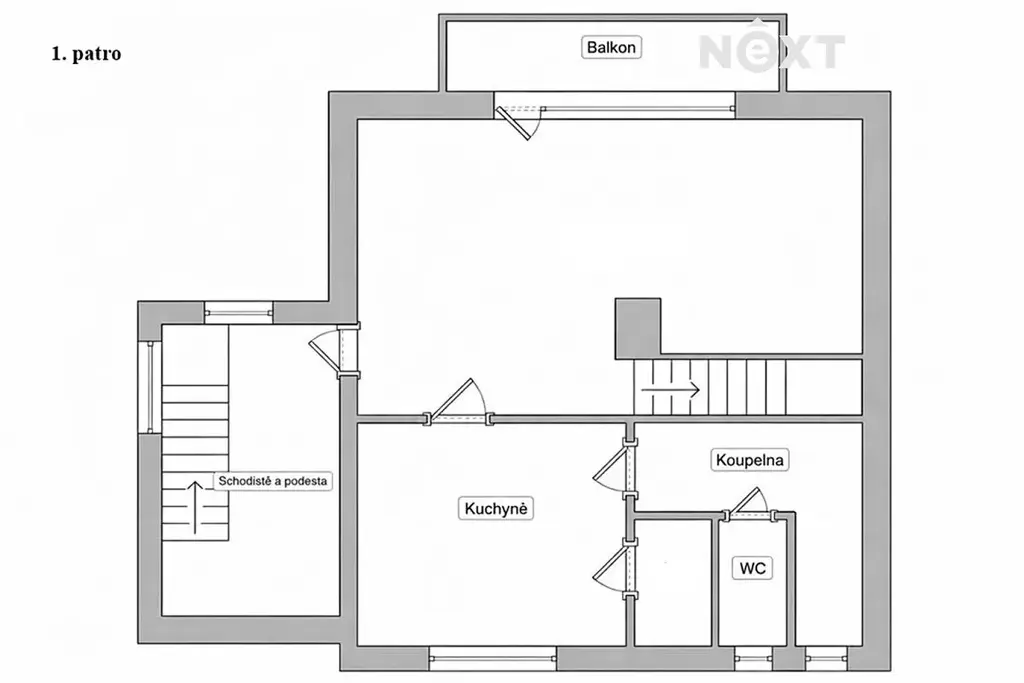
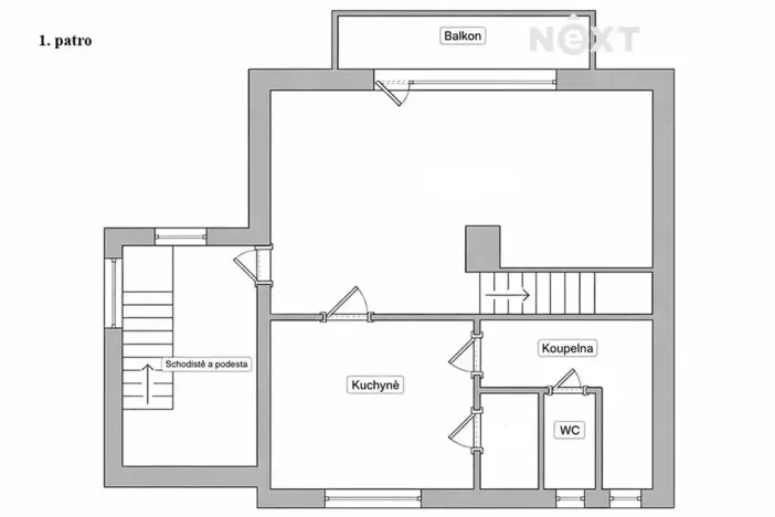
V prvním patře se nachází obývací pokoj se vstupem na balkon a krásným výhledem do zeleně, dále kuchyně, spíž a koupelna se sprchovým koutem a WC.

Ve druhém patře je prostorná ložnice s balkonem, kterou lze případně rozdělit na dvě části – ideální pro rodinu nebo návštěvy. Nechybí ani praktická půda pro uložení sezónních věcí.

Chata je napojena na elektřinu, má vlastní vydatný vrt na vodu a odpad je řešen septikem.

Ráno vás bude budit zpěv ptáků, snídani si vychutnáte na balkoně nebo v pergole a večer si užijete ničím nerušený klid. Ať už hledáte místo pro víkendový relax, letní grilování nebo únik z města, tady ho najdete.

Nemovitost nabízí skvělý potenciál – stačí drobné úpravy a vytvoříte si své vlastní útočiště přesně podle představ.

Zaujala vás tato příležitost? Ozvěte se mi a domluvte si prohlídku. Takové místo pro odpočinek se v nabídce dlouho neohřeje. Pro komunikaci uvádějte evidenční číslo zakázky N117344.

Makléř

Máte zájem o tento dům?

Tímto, v souladu s nařízením Evropského parlamentu a Rady (EU) 2016/679, v platném znění, prohlašuji, že mi je alespoň 16 let a uděluji tak svůj souhlas se zpracováním zadaných údajů (jméno, telefon, e-mail, ip adresa) společnosti B3 Technology, s.r.o., IČ: 07330600, se sídlem Novostavby 126/23, 435 11 Lom (správce dat), za účelem předání dotazu z tohoto formuláře Vámi vybranému inzerentovi a zpětného kontaktování mé osoby. Osobní údaje bude správce zpracovávat manuálně i automaticky přímo prostřednictvím svých zaměstnanců. Informace předané tímto formulářem budou uloženy v databázi správce maximálně po dobu 10 let. Odvolání souhlasu s uložením a zpracováním poskytnutých dat lze e-mailem na info@origo-reality.cz. V případě podezření na neoprávněné použití Vámi poskytnutých údajů máte právo předat podnět k šetření Úřadu pro ochranu osobních údajů. Více informací
Chystáte se prodat nemovitost?
Pomůžeme Vám!

Přihlášení k odběru

Nenechte si ujít nejnovější nabídky prodeje chat v Plzni.