Prodej rodinného domu, Třebovle, 85 m2 (ID: 2021891)

Třebovle

4 398 000 Kč
/za nemovitost
Hypotéka od 19 656 Kč /měs. Chci hypotéku

Parametry domu

AdresaTřebovle
ID19058
StavbaSmíšená
Stav objektuDobrý
VybavenoNe
Typ objektuPřízemní
Druh objektuSamostatný
Užitná plocha85 m2
Zastavěná plocha82 m2
Podlahová plocha155 m2
Plocha pozemku237 m2
Třída energetické náročnostiG - Mimořádně nehospodárná
Elektřina230V, 400V
OdpadVeřejná kanalizace
DopravaDálnice, Silnice, Autobus
VodaStudna
Bezbarierový přístup

Origo partneři v Třebovli

Popis

K prodeji nabízíme rodinný dům v obci Třebovle.

O obci Třebovle:
Třebovle je obec ležící v okrese Kolín. Obec je obklopena malebnou krajinou, která vybízí k procházkám a cykloturistice. V blízkosti se nacházejí lesy a pole, které nabízejí únik od shonu velkoměsta. Třebovle je snadno dostupná z Kolína i okolních obcí.

Dům je určen k celkové rekonstrukci.
- plastová okna
- elektrické přímotopy + krbová kamna
- ohřev vody: bojler
- aktuálně neobyvatelné podkroví
- nezateplená střecha s pálenými taškami
- možnost parkování na pozemku
- dům není zatížen zástavním právem ani jiným právním problémem

Dojezd do:
Kolína: 20 min
Český Brod: 13 min
Praha - Černý Most (metro B): 35 min

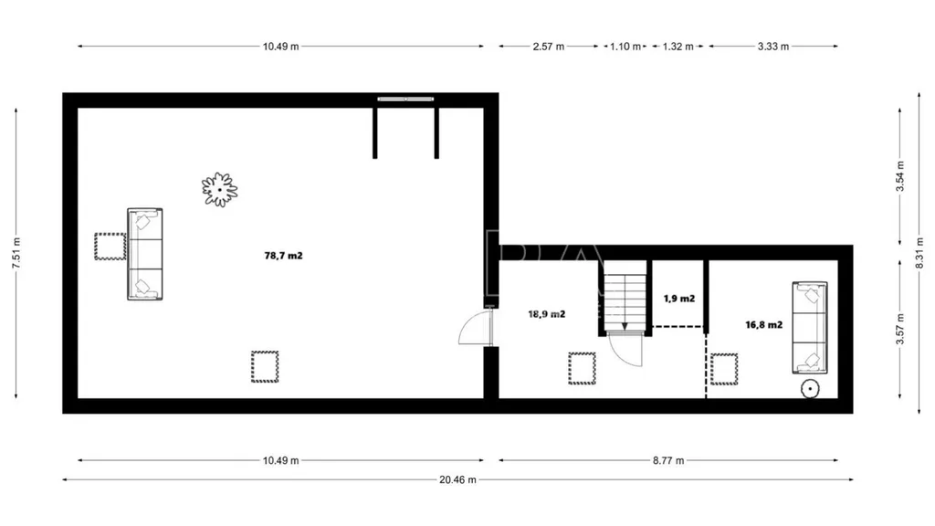
Orientační velikost místností a ostatních prostor:
Ložnice: 16,04 m2
Obývací pokoj + kuchyňský kout: 24,85 m2
Pokoj: 20,88 m2
Koupelna: 6,74 m2
Komora1: 3,81 m2
Komora2: 3,24 m2
Chodba: 9,36 m2
--------------------------
Celkem: 84,92 m2
+ podkroví: 38,6 m2
+ půda: 78,7 m2
+ technická místnost: 12,95 m2
+ kumbál: 5,6 m2
+ otevřená dílna: 13,39 m2

Makléř

Máte zájem o tento dům?

Tímto, v souladu s nařízením Evropského parlamentu a Rady (EU) 2016/679, v platném znění, prohlašuji, že mi je alespoň 16 let a uděluji tak svůj souhlas se zpracováním zadaných údajů (jméno, telefon, e-mail, ip adresa) společnosti B3 Technology, s.r.o., IČ: 07330600, se sídlem Novostavby 126/23, 435 11 Lom (správce dat), za účelem předání dotazu z tohoto formuláře Vámi vybranému inzerentovi a zpětného kontaktování mé osoby. Osobní údaje bude správce zpracovávat manuálně i automaticky přímo prostřednictvím svých zaměstnanců. Informace předané tímto formulářem budou uloženy v databázi správce maximálně po dobu 10 let. Odvolání souhlasu s uložením a zpracováním poskytnutých dat lze e-mailem na info@origo-reality.cz. V případě podezření na neoprávněné použití Vámi poskytnutých údajů máte právo předat podnět k šetření Úřadu pro ochranu osobních údajů. Více informací
Chystáte se prodat nemovitost?
Pomůžeme Vám!

Přihlášení k odběru

Nenechte si ujít nejnovější nabídky prodeje rodinných domů v Třebovli.