Prodej rodinného domu, Pečky, Dobřichovská, 99 m2 (ID: 2020918)

Dobřichovská, Pečky

3 990 000 Kč
/za nemovitost
Konečná cena včetně Kupní smlouvy, advokátní úschovy a zpracování výhodného úvěru.
Hypotéka od 17 833 Kč /měs. Chci hypotéku

Parametry domu

AdresaDobřichovská, Pečky
ID18645
StavbaSmíšená
Stav objektuPřed rekonstrukcí
VybavenoNe
Typ objektuPřízemní
Druh objektuŘadový
Užitná plocha99 m2
Zastavěná plocha154 m2
Podlahová plocha220 m2
Plocha pozemku261 m2
Plocha zahrady168 m2
Třída energetické náročnostiG - Mimořádně nehospodárná
Elektřina230V, 400V
PlynPlynovod
OdpadVeřejná kanalizace
KomunikaceAsfaltová
DopravaVlak, Silnice, Autobus
VodaVodovod, Studna
Sklep
Bezbarierový přístup

Origo partneři v Pečkách

Popis

Nabízím k prodeji rodinný dům v obci Pečky, necelých pět minut pěšky od vlakového a autobusového nádraží. Velmi dobré spojení do Prahy. Autem na Černý Most za půl hodiny a vlakem do centra Prahy za 1 hodinu. Za 20 minut jste na nádraží v Kolíně.

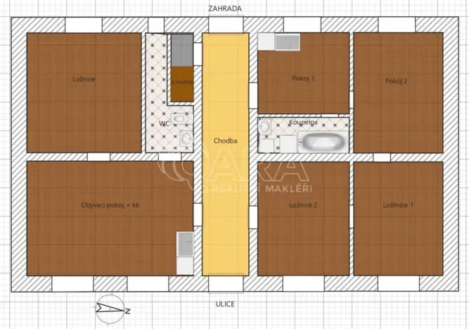
Tento dům smíšené konstrukce je v řadové zástavbě a nabízí dostatek místností pro velkou rodinu. Celková zastavěná plocha domu činí 154 m, zatímco užitná plocha je 99 m. Součástí parcely je také zahrada za domem o celkové výměře 261 m. Na zahradě je meruňka a ořech. Na hranici pozemku je studna s užitkovou vodou a je používaná napůl se sousedy. Další prostory najdete na půdě, která má v ploše přes 100 m a její prostor tak můžete využít pro další zvětšení domu, například sklad či jiné prostory.

Dům je před rekonstrukcí, což poskytuje nové možnosti pro úpravy dle individuálních představ budoucího majitele. U domu se nachází sklep s plochou 7 m.

Dům je připojen na obecní vodovod a na kanalizaci. Také na plynovod a elektřinu s napětím 230 V. Internetové přípojka na VDSL, což zajišťuje rychlé a spolehlivé připojení.

Vytápění je řešeno prostřednictvím WAW topných těles, zatímco teplá voda v koupelně se ohřívá po staru v kotli na tuhá paliva. V koupelně je k dispozici vana.

Nemovitost se nachází v příjemném prostředí a při rekonstrukci má potenciál stát se útulným domovem podle individuálních představ.

Pro tento dům najdete další informace na internetové stránce https://jiri.kuna.cz/dum-v-peckach

V případě zájmu o prohlídku mě neváhejte kontaktovat.
Energetický štítek v kategorii G.
Uvedené velikosti a rozměry nejsou potvrzeny plány, proto jsou uvedené údaje bez záruky přesnosti. Rozměry budovy a vnitřních prostor byly určeny odhadem.

Makléř

Máte zájem o tento dům?

Tímto, v souladu s nařízením Evropského parlamentu a Rady (EU) 2016/679, v platném znění, prohlašuji, že mi je alespoň 16 let a uděluji tak svůj souhlas se zpracováním zadaných údajů (jméno, telefon, e-mail, ip adresa) společnosti B3 Technology, s.r.o., IČ: 07330600, se sídlem Novostavby 126/23, 435 11 Lom (správce dat), za účelem předání dotazu z tohoto formuláře Vámi vybranému inzerentovi a zpětného kontaktování mé osoby. Osobní údaje bude správce zpracovávat manuálně i automaticky přímo prostřednictvím svých zaměstnanců. Informace předané tímto formulářem budou uloženy v databázi správce maximálně po dobu 10 let. Odvolání souhlasu s uložením a zpracováním poskytnutých dat lze e-mailem na info@origo-reality.cz. V případě podezření na neoprávněné použití Vámi poskytnutých údajů máte právo předat podnět k šetření Úřadu pro ochranu osobních údajů. Více informací
Chystáte se prodat nemovitost?
Pomůžeme Vám!

Přihlášení k odběru

Nenechte si ujít nejnovější nabídky prodeje rodinných domů v Pečkách.