Prodej rodinného domu, Přelouč, Gagarinova, 161 m2 (ID: 2020786)

Gagarinova, Přelouč

7 500 000 Kč
/za nemovitost
Hypotéka od 33 520 Kč /měs. Chci hypotéku

Parametry domu

AdresaGagarinova, Přelouč
IDProdej domu Gagarino
StavbaCihlová
Stav objektuPřed rekonstrukcí
VybavenoNe
Typ objektuPatrový
Druh objektuŘadový
Užitná plocha161 m2
Zastavěná plocha89 m2
Podlahová plocha161 m2
Plocha pozemku333 m2
Plocha zahrady218 m2
Třída energetické náročnostiG - Mimořádně nehospodárná
PlynPlynovod
OdpadVeřejná kanalizace
KomunikaceBetonová
DopravaVlak, Silnice, Autobus
VodaVodovod
Garáž
Sklep
Bezbarierový přístup

Origo partneři v Přelouči

Popis

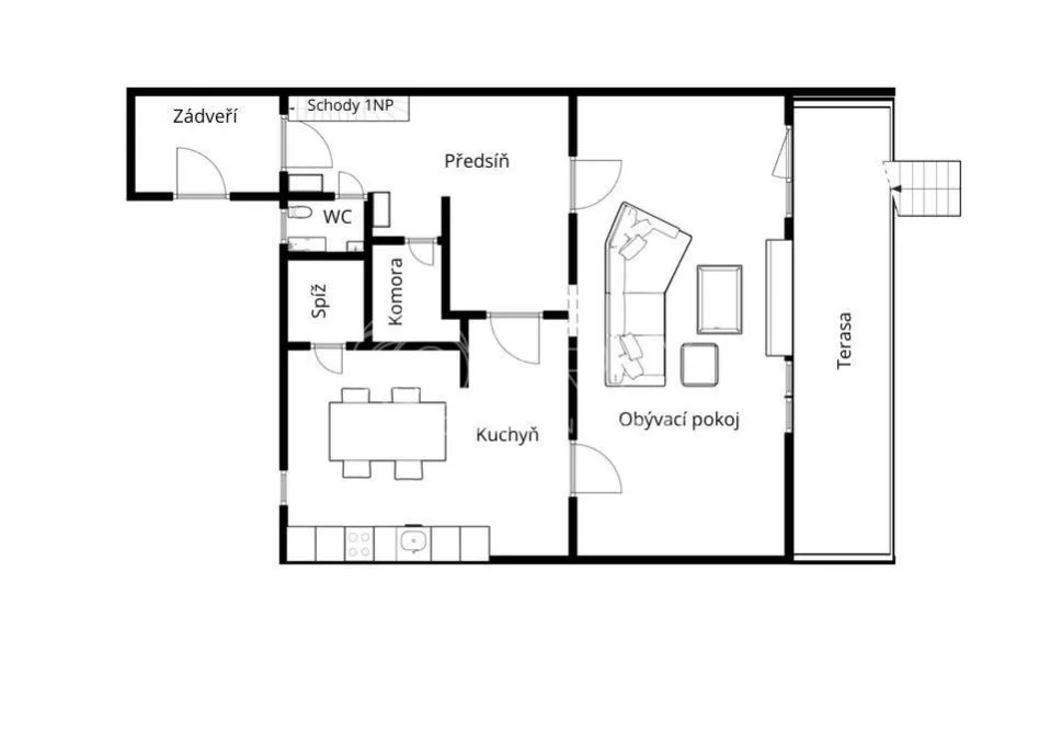
Nabízíme k prodeji řadový rodinný dům o dispozici 4+1, situovaný na adrese Gagarinova Č. p. 1213, Přelouč, okres Pardubice. Tento dvoupodlažní dům má zastavěnou plochu 89 m a užitnou plochu 161 m, což poskytuje dostatek prostoru pro rodinné bydlení. Celková plocha parcely činí 333 m, zahrada má pak výměru 218 m.

Vytápění objektu je zajištěno plynovým kotlem a kotlem na tuhá paliva, přičemž topení je rozvedeno do radiátorů. Odpad je napojen na kanalizaci a přívod vody zajišťuje vodovod.

Nemovitost je kompletně podsklepena, s plochou sklepa 66 m, což poskytuje dostatek úložného prostoru. Součástí domu je také garáž o výměře 23 m, ideální pro bezpečné parkování.

Ve druhém patře se nachází tři prostorné pokoje, z nichž dva jsou propojené balkonem, což poskytuje příjemné výhledy a možnost relaxace na čerstvém vzduchu. Obývací pokoj je propojen s terasou o výměře 21 m, ze které se dostanete přímo na zahradu. Tato zahrada je vynikajícím místem pro rodinné oslavy či odpočinek a nabízí prostor pro pěstování rostlin nebo zahradničení.

Dům je připraven na rekonstrukci, což umožňuje novému majiteli přizpůsobit si interiér podle vlastních představ a potřeb. Konečná úprava domu může být skvělou příležitostí pro realizaci vlastního stylu bydlení.

Dům se nachází v klidné lokalitě, která nabízí pohodlné spojení s okolní infrastrukturou, a to včetně vlakového a autobusového spojení.

V případě zájmu o prohlídku nás neváhejte kontaktovat.

Makléř

Máte zájem o tento dům?

Tímto, v souladu s nařízením Evropského parlamentu a Rady (EU) 2016/679, v platném znění, prohlašuji, že mi je alespoň 16 let a uděluji tak svůj souhlas se zpracováním zadaných údajů (jméno, telefon, e-mail, ip adresa) společnosti B3 Technology, s.r.o., IČ: 07330600, se sídlem Novostavby 126/23, 435 11 Lom (správce dat), za účelem předání dotazu z tohoto formuláře Vámi vybranému inzerentovi a zpětného kontaktování mé osoby. Osobní údaje bude správce zpracovávat manuálně i automaticky přímo prostřednictvím svých zaměstnanců. Informace předané tímto formulářem budou uloženy v databázi správce maximálně po dobu 10 let. Odvolání souhlasu s uložením a zpracováním poskytnutých dat lze e-mailem na info@origo-reality.cz. V případě podezření na neoprávněné použití Vámi poskytnutých údajů máte právo předat podnět k šetření Úřadu pro ochranu osobních údajů. Více informací
Chystáte se prodat nemovitost?
Pomůžeme Vám!

Přihlášení k odběru

Nenechte si ujít nejnovější nabídky prodeje rodinných domů v Přelouči.