Prodej bytu 2+kk, Plzeň - Jižní Předměstí, Karlova, 51 m2

Karlova, Plzeň, okres plzeň-město, Plzeň 3

4 290 000 Kč
/za nemovitost
Hypotéka od 19 174 Kč /měs. Chci hypotéku

Parametry bytu

AdresaKarlova, Plzeň, okres plzeň-město, Plzeň 3
ID260034
StavbaCihlová
Stav objektuVelmi dobrý
Patro4. z 4
VybavenoČástečně
VlastnictvíOsobní
Užitná plocha51 m2
Podlahová plocha51 m2
Třída energetické náročnostiG - Mimořádně nehospodárná
Elektřina230V
PlynPlynovod
OdpadVeřejná kanalizace
TopeníLokální plynové
DopravaVlak, Dálnice, Silnice, MHD
VodaVodovod
Výtah

Origo partneři v Plzni

Stěhovací služby

Popis

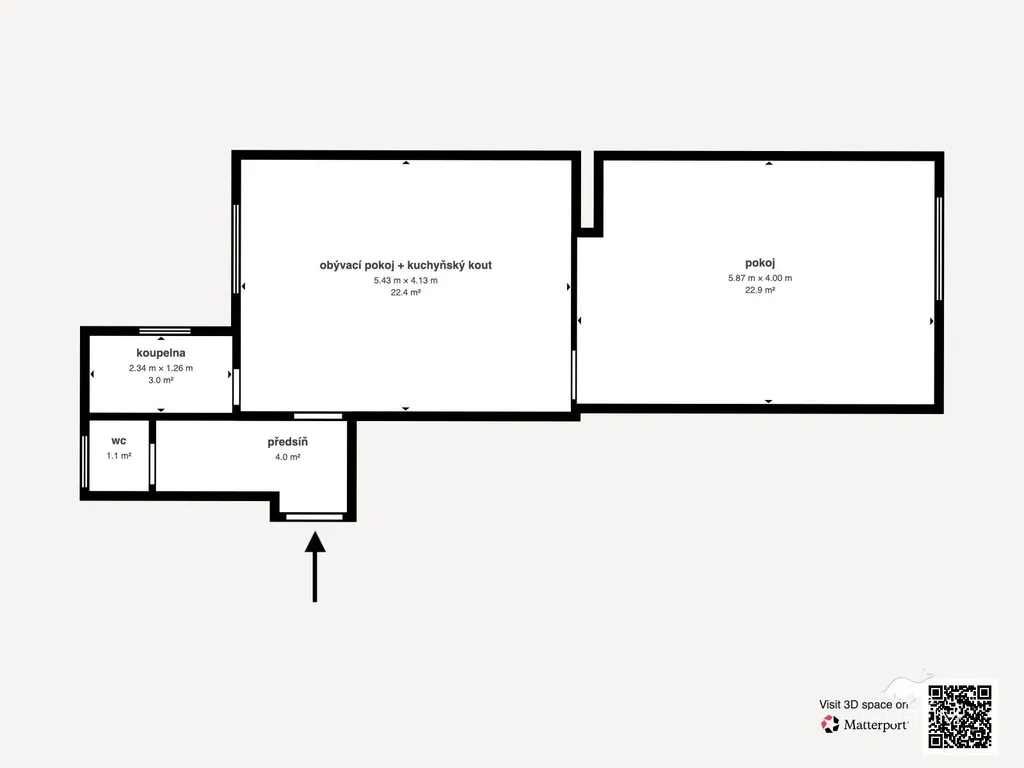
Představuji k prodeji byt o dispozici 2+kk nacházející se na adrese Karlova 1037/38, Plzeň.

Podívejte se na samostatnou stránku bytu – odkaz ve videoprohlídce.
Kompletní představu o prostorovém uspořádání bytu získáte prohlédnutím 3D virtuální prohlídky zde v inzerci.

Lokalita:
Dům s bytovou jednotkou se nachází v širším centru Plzně, které se vyznačuje bohatou občanskou vybaveností. V bezprostředním okolí se nacházejí školy, školky, restaurace, kavárny, obchody i další služby pro každodenní život a například na náměstí je to pouhých 5 minut chůze. Velkou výhodou je také výborná dostupnost MHD, včetně blízkosti centrálního autobusového nádraží, což zajišťuje pohodlné spojení do okolních měst nebo na dálkové trasy.

Byt:
Bytová jednotka o výměře 51 m² je situována ve 3. patře, které je zároveň posledním podlažím domu. Dispozice bytu zahrnuje vstupní chodbu, obývací pokoj s kuchyňským koutem, samostatnou ložnici, koupelnu a oddělené WC. Byt se prodává včetně kuchyňské linky s elektrickým sporákem a vybavením koupelny, jinak je ponechán nezařízený, což novému majiteli umožňuje upravit si interiér dle vlastních představ.

Technické informace:
Byt je napojen na veřejný vodovod a kanalizaci. Vytápění a ohřev vody jsou řešeny vlastním plynovým kotlem umístěným přímo v bytě.

Bytový dům:
Jedná se o menší cihlový bytový dům o čtyřech nadzemních podlažích ve velmi dobrém technickém stavu. Dům prošel úpravami, disponuje novou fasádou a plastovými okny s dvojskly. Součástí domu je také vnitroblok, který mohou obyvatelé využívat například k posezení či odpočinku.

Tento byt doporučuji především díky jeho dobrému technickému stavu bez nutnosti okamžitých investic, praktické dispozici a atraktivní lokalitě.

Pro koupi bytu zajistím kompletní realitní a právní servis.
Kontaktujte mě pro domluvení prohlídky:
Jan Štěpánek
TAURUM reality

Uvedené výměry jsou orientační.

Makléř

Máte zájem o tento byt?

Tímto, v souladu s nařízením Evropského parlamentu a Rady (EU) 2016/679, v platném znění, prohlašuji, že mi je alespoň 16 let a uděluji tak svůj souhlas se zpracováním zadaných údajů (jméno, telefon, e-mail, ip adresa) společnosti B3 Technology, s.r.o., IČ: 07330600, se sídlem Novostavby 126/23, 435 11 Lom (správce dat), za účelem předání dotazu z tohoto formuláře Vámi vybranému inzerentovi a zpětného kontaktování mé osoby. Osobní údaje bude správce zpracovávat manuálně i automaticky přímo prostřednictvím svých zaměstnanců. Informace předané tímto formulářem budou uloženy v databázi správce maximálně po dobu 10 let. Odvolání souhlasu s uložením a zpracováním poskytnutých dat lze e-mailem na info@origo-reality.cz. V případě podezření na neoprávněné použití Vámi poskytnutých údajů máte právo předat podnět k šetření Úřadu pro ochranu osobních údajů. Více informací
Chystáte se prodat nemovitost?
Pomůžeme Vám!

Přihlášení k odběru

Nenechte si ujít nejnovější nabídky prodeje bytů 2+kk v Plzni.