Pronájem bytu 2+kk, Bílov, 59 m2

Bílov

15 000 Kč
/za měsíc
bez záloh na služby a energie
Získejte výhodnou HYPOTÉKU Chci hypotéku

Parametry bytu

AdresaBílov
ID135248
StavbaCihlová
Stav objektuNovostavba
Patro2. z 3
VlastnictvíOsobní
Užitná plocha59 m2
Podlahová plocha59 m2
Třída energetické náročnostiB - Velmi úsporná
Elektřina230V
OdpadVeřejná kanalizace
TopeníJiné
DopravaSilnice, Autobus
Balkon
Parkování

Origo partneři v Bílově

Popis

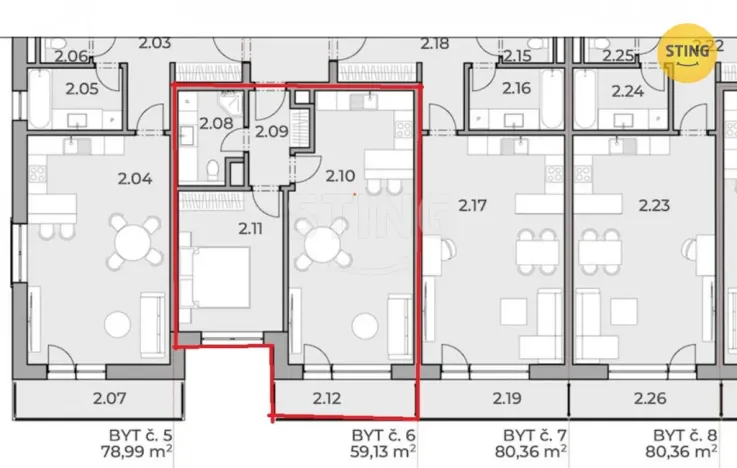
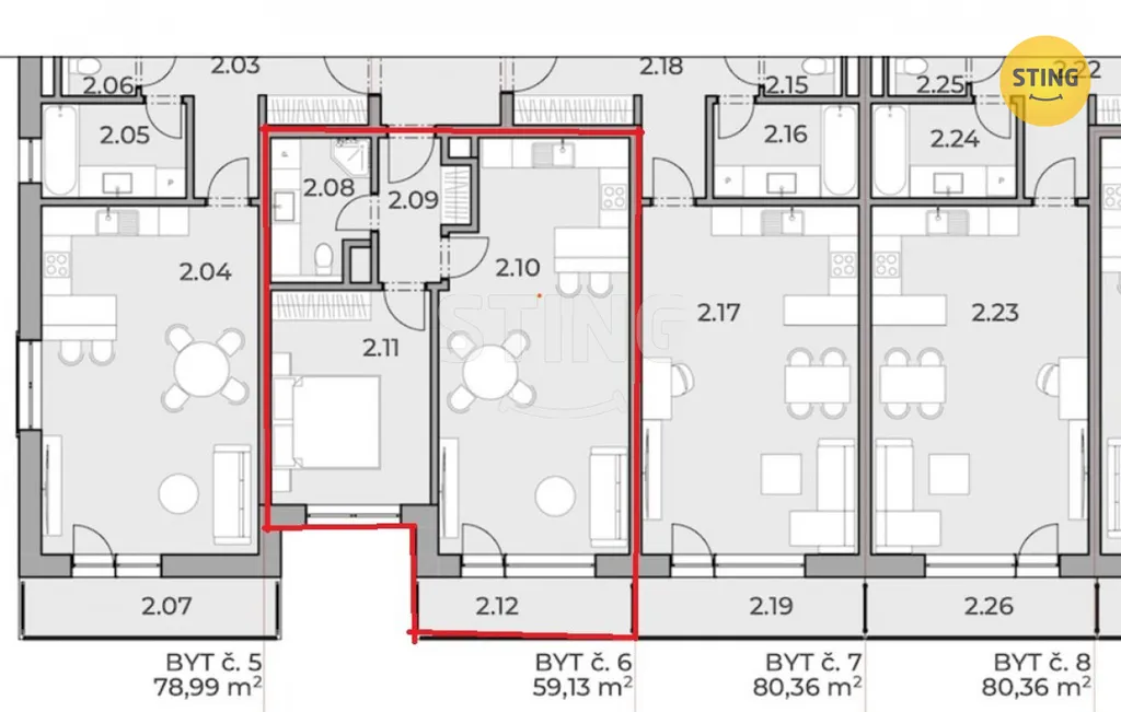
Nabízíme k pronájmu právě dokončovaný krásný a světlý byt s dispozicí 2+kk, který se nachází v rezidenci Bílov, vzdálené jen 3,5 km od Bílovce. Jedná se o novostavbu bytového domu, tento byt bude pro vás připraven k nastěhování od 1.5.2026. Je umístěn ve druhém nadzemním podlaží a jeho celková užitná plocha včetně balkonu je 59 m2.
Bytová jednotka zahrnuje zádveří, ložnici, koupelnu se sprchovým koutem, umyvadlem a WC a dále obývací pokoj, jehož součástí je kuchyňský kout. Z tohoto pokoje je východ na prostorný balkon orientovaný na jihozápad, což zaručuje téměř celodenní dostatek světla a slunce. Kuchyňská linka bude vybavena vestavěnými spotřebiči.
Vytápění je zajištěno centrálním tepelným čerpadlem Regulus a podlahové topení je regulovatelné samostatně pro každý byt. Ohřev TUV je centrální s měřičem spotřeby v každém bytě. Dům je napojen na vodovodní řád, kanalizaci a elektřinu.
Součástí pronájmu bytu je možnost využívání společných prostor kolárny a dále jednoho parkovacího stání na přilehlém parkovišti. Velmi lákavý je i přístup všech obyvatel rezidence na společnou komunitní zahradu s altánem a dětským zázemím, která se nachází za domem.
Z domu je to 1,5 km k nájezdu na dálnici D1 a po ní pak cca 30 km do centra Ostravy a 20 km do Nového Jičína. Výborná je i dostupnost do průmyslové zóny Mošnov a do Kopřivnice. V obci je prodejna COOP, mateřská škola, knihovna a restaurace se sportovišti. Kompletní občanská vybavenost je v blízkém Bílovci. Fotografie s vybavením jsou vizualizační.
K měsíčnímu nájemnému 15.000 Kč je nutno ještě připočítat zálohy na služby ve výši cca 3.000 Kč měsíčně (ty budou placeny společně s nájemným a zatím nejsou přesně stanoveny), zálohy na elektřinu (k jejímu odběru se nájemce přihlásí sám u dodavatele), kauci ve výši 2 měsíčních nájmů a provizi realitní kanceláře ve výši jednoho měsíčního nájmu.

Makléř

Máte zájem o tento byt?

Tímto, v souladu s nařízením Evropského parlamentu a Rady (EU) 2016/679, v platném znění, prohlašuji, že mi je alespoň 16 let a uděluji tak svůj souhlas se zpracováním zadaných údajů (jméno, telefon, e-mail, ip adresa) společnosti B3 Technology, s.r.o., IČ: 07330600, se sídlem Novostavby 126/23, 435 11 Lom (správce dat), za účelem předání dotazu z tohoto formuláře Vámi vybranému inzerentovi a zpětného kontaktování mé osoby. Osobní údaje bude správce zpracovávat manuálně i automaticky přímo prostřednictvím svých zaměstnanců. Informace předané tímto formulářem budou uloženy v databázi správce maximálně po dobu 10 let. Odvolání souhlasu s uložením a zpracováním poskytnutých dat lze e-mailem na info@origo-reality.cz. V případě podezření na neoprávněné použití Vámi poskytnutých údajů máte právo předat podnět k šetření Úřadu pro ochranu osobních údajů. Více informací
Chystáte se prodat nemovitost?
Pomůžeme Vám!

Přihlášení k odběru

Nenechte si ujít nejnovější nabídky pronájmu bytů 2+kk v Bílově (okr. Nový Jičín).