Pronájem kanceláře, Plzeň - Jižní Předměstí, Goldscheiderova, 60 m2

Goldscheiderova, Plzeň, Jižní Předměstí

13 500 Kč
/za měsíc
+provize RK 15500,-Kč, + zálohy na energie
Získejte výhodnou HYPOTÉKU Chci hypotéku

Parametry nemovitosti

AdresaGoldscheiderova, Plzeň, Jižní Předměstí
ID1002
StavbaCihlová
Stav objektuVelmi dobrý
VybavenoAno
Typ objektuPatrový
Lokalita objektuOkraj obce
Užitná plocha60 m2
Zastavěná plocha64 m2
Podlahová plocha65 m2
Třída energetické náročnostiG - Mimořádně nehospodárná
Elektřina230V
OdpadVeřejná kanalizace
TelekomunikaceTelefon, Internet, Kabelové rozvody
DopravaDálnice, MHD, Autobus
VodaVodovod
Parkování

Origo partneři v Plzni

Stěhovací služby

Popis

Výhradně Vám zprostředkuji pronájem kancelářských prostor, které se nachází v plzeňské městské části Bory, ulice Goldscheiderova. Výhodou spatřuji umístění prostor v těsné blízkosti evropské silnice první třídy E53 spojující Plzeň s dálnicí D5 a s následnou snadnou dostupností do Německa. Pohodlné parkování v objektu nebo před objektem.

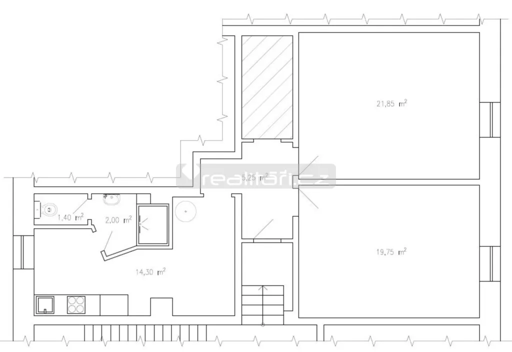
Kanceláře se nachází v budově, v uzavřeném areálu, kde sídlí další firmy. K dispozici nabízím prostory o celkové výměře 64,55 m2. Z toho kancelář č. 1 má výměru 21,85 m2 a kancelář č. 2 výměru 19,75 m2. Dále je zde kuchyňka a sociální zázemí. (viz půdorys prostor).

Vytápění kanceláří je zajištěno dálkovým vytápěním. Ohřev vody zajišťuje elektrický bojler. Rozvod kabelů po kancelářích. Internet si nájemce zajišťuje vlastním nákladem.

Přístupová cesta je zpevněná, asfaltová, osvětlená.

Rozpis plateb: nájemné 13.500,-Kč/měsíčně, režie: vytápění, elektřina a voda dle spotřeby nájemce, jistota: 2x nájemné (jednorázově), provize RK: je 15.500,-K (jednorázově).

Ihned k nastěhování.

Prohlídku a bližší informace u makléřky Michaely Bastlové.

Makléř

Máte zájem o tuto nemovistost?

Tímto, v souladu s nařízením Evropského parlamentu a Rady (EU) 2016/679, v platném znění, prohlašuji, že mi je alespoň 16 let a uděluji tak svůj souhlas se zpracováním zadaných údajů (jméno, telefon, e-mail, ip adresa) společnosti B3 Technology, s.r.o., IČ: 07330600, se sídlem Novostavby 126/23, 435 11 Lom (správce dat), za účelem předání dotazu z tohoto formuláře Vámi vybranému inzerentovi a zpětného kontaktování mé osoby. Osobní údaje bude správce zpracovávat manuálně i automaticky přímo prostřednictvím svých zaměstnanců. Informace předané tímto formulářem budou uloženy v databázi správce maximálně po dobu 10 let. Odvolání souhlasu s uložením a zpracováním poskytnutých dat lze e-mailem na info@origo-reality.cz. V případě podezření na neoprávněné použití Vámi poskytnutých údajů máte právo předat podnět k šetření Úřadu pro ochranu osobních údajů. Více informací
Chystáte se prodat nemovitost?
Pomůžeme Vám!

Přihlášení k odběru

Nenechte si ujít nejnovější nabídky pronájmu kanceláří v Plzni.