Soccer reality

Prodej bytu 3+kk, Přezletice, Hrušková, 72 m2

Hrušková, Přezletice

11 490 000 Kč
/za nemovitost
Hypotéka od 51 353 Kč /měs. Chci hypotéku

Parametry bytu

AdresaHrušková, Přezletice
ID00189
StavbaCihlová
Stav objektuVelmi dobrý
Patro2. z 2
VybavenoČástečně
VlastnictvíOsobní
Užitná plocha72 m2
Třída energetické náročnostiA - Mimořádně úsporná
Ukazatel energetické náročnosti47 kWh/m2 za rok
Sklep
Terasa
Parkování

Origo partneři v Přezleticích

Popis

Bytový dům dokončen v roce 2022 v rámci projektu Ctěnický Háj. Na samotné hranici Prahy (městská část Praha – Vinoř) a Přezletic. Projekt se nachází přímo vedle Ctěnického háje, ulice Hrušková a Pod Vinoří.

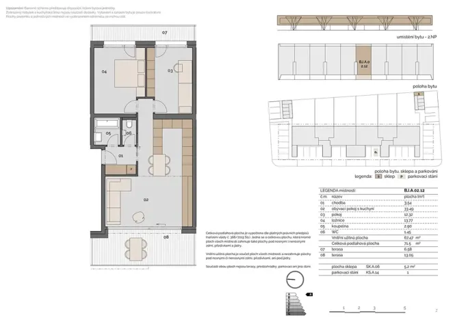
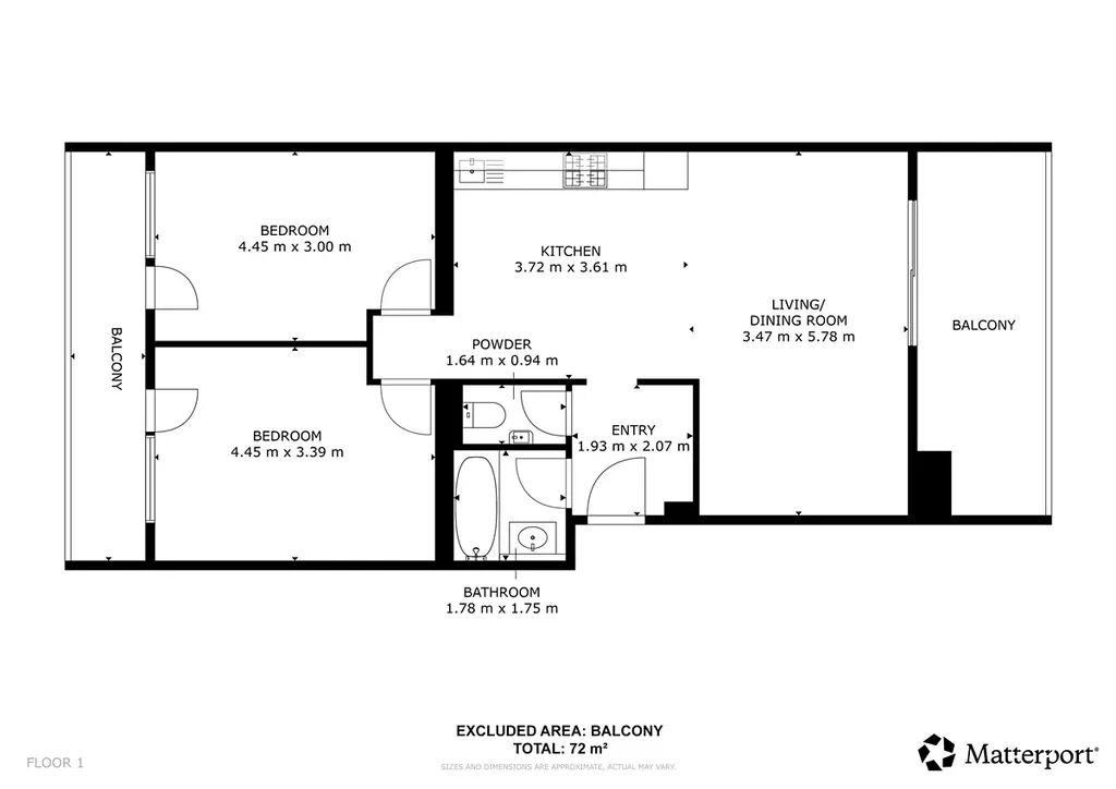
Byt je umístěn ve 2NP dvoupodlažní zděné Budovy energetické třídy A o dispozici 3+kk o celkové ploše 72m2 bez teras a sklepa. Netradičně pro 2 jednotky, vždy jeden společný vchod. Orientace ložnice na severovýchod, obývací pokoj a kuchyň na jih, jihozápad. Na obě strany budovy situovány kryté terasy o ploše 20,6m2, u obývací pokoje přes celou šíři bytu prosklený HS portál na terasu o ploše 13,6m2 s výhledem do přírody a Ctěnického háje. Opravdové soukromí. Bytový dům celkem 16 bytových jednotek.

Dispozice: vstupní chodba (prostor pro vestavěnou šatní skříň a pračku), koupelna s vanou, samostatné WC, obývací pokoj s prostorem pro obývací část a prostorově oddělenou kuchyň se sezením, dvě ložnice s terasou. Součástí bytu je prostorná sklepní 5,2m2 kóje a jedno kryté parkovací stání (širší 3,4m) v části jen dvou parkovacích stání, přímo vedle vchodu k bytu.
Součástí domu je kočárkárna pro parking dětských kol a kočárků.

Infrastruktura: plnohodnotné veřejné komunikace, veřejné osvětlení, elektro, vodovod, kanalizace, projekt nakládá s dešťovou vodou v místě, urbanistický koncept principu trvale udržitelného rozvoje, park, dětské hřiště, sadové úpravy, les, příroda, cyklostezka, park, Ctěnický potok a rybník, zámek Ctěnice.

MHD a doprava v přímém napojení, do 10 min. chůzí, do 20 min metro "C" Letňany.
Občanská vybavenost Vinoře, moderní mateřská školka a škola přímo v Přezleticích.

Vytápění lokální elektrické podlahové, el. topné kabely s vlastním ovládáním pro každou místnost.
Ohřev TUV centrálně kompaktním tepelným čerpadlem vzduch/ voda v kombinaci s centrálním zásobníkem TUV.
Vlastní rekuperační jednotka typu WAFE 201, systém řízeného větrání s regulací CO2 a rekuperací odpadního tepla vč. ovládání pomocí webového rozhraní. Jednoduše vyměnitelné filtry dle Vaší potřeby.

Elektroměr pro každou jednotku zvlášť. Dálkově odečítané vodoměry, dodavatel VHS Benešov.
Předpis záloh vč. společných nákladů na provoz Budovy zahrnující TUV a zálohy na vodné/stočné stanoveny na 5.144,-/měs. . Skutečnost z vyúčtování roku 2025 je u typu 3kk od 4.350,- / měs. do 5.850,-/měs. podle spotřeby vody a počtu osob od 3 do 4. Skutečná spotřeba el. energie (vč. složky na vytápění) je okolo 2.500,- / měs. .
Společenství vlastníků jednotek domu č.p. 651, Přezletice, správu zajištuje správce firma Blažek FM.

V domě je realizována přípojka optického vlákna firmy CZ.NET, konektivita do lokality přiváděna vzduchem a distribuována optikou. Další varianty dle pokrytí vzduchem jiných providerů přes instalaci vlastních routerů v domácnosti.

Makléř

Máte zájem o tento byt?

Tímto, v souladu s nařízením Evropského parlamentu a Rady (EU) 2016/679, v platném znění, prohlašuji, že mi je alespoň 16 let a uděluji tak svůj souhlas se zpracováním zadaných údajů (jméno, telefon, e-mail, ip adresa) společnosti B3 Technology, s.r.o., IČ: 07330600, se sídlem Novostavby 126/23, 435 11 Lom (správce dat), za účelem předání dotazu z tohoto formuláře Vámi vybranému inzerentovi a zpětného kontaktování mé osoby. Osobní údaje bude správce zpracovávat manuálně i automaticky přímo prostřednictvím svých zaměstnanců. Informace předané tímto formulářem budou uloženy v databázi správce maximálně po dobu 10 let. Odvolání souhlasu s uložením a zpracováním poskytnutých dat lze e-mailem na info@origo-reality.cz. V případě podezření na neoprávněné použití Vámi poskytnutých údajů máte právo předat podnět k šetření Úřadu pro ochranu osobních údajů. Více informací
Chystáte se prodat nemovitost?
Pomůžeme Vám!

Přihlášení k odběru

Nenechte si ujít nejnovější nabídky prodeje bytů 3+kk v Přezleticích.