Prodej bytu 3+kk, Praha - Nusle, Rostislavova, 80 m2

Rostislavova, Praha, Nusle

11 500 000 Kč
/za nemovitost
Hypotéka od 51 398 Kč /měs. Chci hypotéku

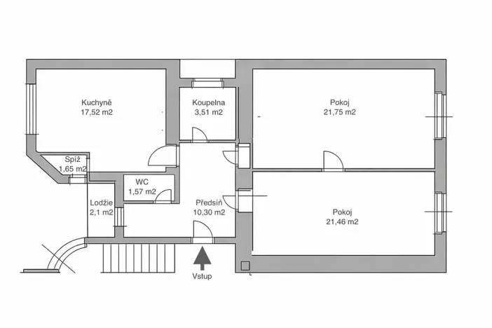
Parametry bytu

AdresaRostislavova, Praha, Nusle
IDN00276
StavbaCihlová
Stav objektuPřed rekonstrukcí
Patro5. z 6
Lokalita objektuKlidná část obce
VlastnictvíOsobní
Užitná plocha80 m2
Podlahová plocha80 m2
Třída energetické náročnostiG - Mimořádně nehospodárná

Origo partneři v Praze 4

Stěhovací služby

Výkup a prodej starého nábytku

Popis

Nabízím k prodeji prostorný byt o dispozici 2+1 s možností úpravy na 3+kk, o celkové ploše 80 m², který se nachází ve 4. patře cihlového domu s výtahem v atraktivní lokalitě Praha 4 – Nusle.

Byt je před rekonstrukcí a nabízí tak ideální příležitost k vytvoření bydlení podle vlastních představ nebo jako zajímavou investici. Rekonstrukce byla částečně zahájena, je však potřeba ji dokončit.

Aktuální stav bytu:
• byt je před rekonstrukci
• ložnice – nově vyštukované zdi a sádrokartonový podhled
• koupelna – nyní obyvatelná, připravena na nové rozvody vody, stěny bez omítek
• ostatní místnosti – před rekonstrukcí
• plastová okna
• orientace na východ a západ
• samostatné vstupy do pokojů z chodby


Dispozice bytu umožňuje jednoduchou úpravu na moderní 3+kk.
Vytápění je nyní přes plynové vafky.

Lokalita nabízí:
• výborné spojení MHD do centra Prahy
• obchody, restaurace, služby v docházkové vzdálenosti
• školy a školky v okolí
• parkování v modré zóně v okolí domu

Dům je po rekonstrukci, k bytu patří také sklepní komora v suterénu domu.

Pro více informací mě neváhejte kontaktovat.

Makléř

Máte zájem o tento byt?

Tímto, v souladu s nařízením Evropského parlamentu a Rady (EU) 2016/679, v platném znění, prohlašuji, že mi je alespoň 16 let a uděluji tak svůj souhlas se zpracováním zadaných údajů (jméno, telefon, e-mail, ip adresa) společnosti B3 Technology, s.r.o., IČ: 07330600, se sídlem Novostavby 126/23, 435 11 Lom (správce dat), za účelem předání dotazu z tohoto formuláře Vámi vybranému inzerentovi a zpětného kontaktování mé osoby. Osobní údaje bude správce zpracovávat manuálně i automaticky přímo prostřednictvím svých zaměstnanců. Informace předané tímto formulářem budou uloženy v databázi správce maximálně po dobu 10 let. Odvolání souhlasu s uložením a zpracováním poskytnutých dat lze e-mailem na info@origo-reality.cz. V případě podezření na neoprávněné použití Vámi poskytnutých údajů máte právo předat podnět k šetření Úřadu pro ochranu osobních údajů. Více informací
Chystáte se prodat nemovitost?
Pomůžeme Vám!

Přihlášení k odběru

Nenechte si ujít nejnovější nabídky prodeje bytů 3+kk v Praze 4.