Prodej bytu 4+kk, Praha, Tolstého, 145 m2

Tolstého, Praha 10

20 400 000 Kč
/za nemovitost
Včetně právního servisu.
Hypotéka od 91 176 Kč /měs. Chci hypotéku

Parametry bytu

AdresaTolstého, Praha 10
ID11333
StavbaCihlová
Stav objektuVelmi dobrý
Patro5. z 5
Lokalita objektuKlidná část obce
VlastnictvíOsobní
Užitná plocha145 m2
Třída energetické náročnostiG - Mimořádně nehospodárná
OdpadVeřejná kanalizace
DopravaMHD

Origo partneři v Praze 10

Stěhovací služby

Výkup a prodej starého nábytku

Popis

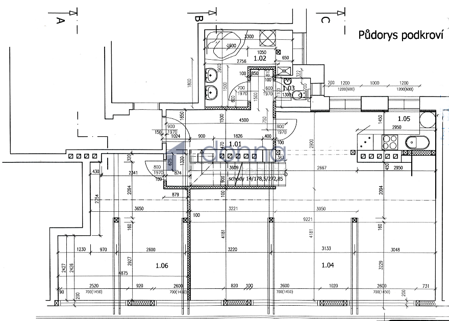
Nabízíme k prodeji zajímavý byt 4+kk s podlahovou plochou 145m2, situovaný v atraktivní lokalitě Vršovic - Praha 10, ulice Tolstého.

Tento dvouúrovňový byt je umístěný ve 4. podkrovním patře s mezonetem, v cihlovém domě bez výtahu a nabízí zajímavé bydlení v klidném udržovaném domě pouze se šestnácti bytovými jednotkami.

Spodní patro tvoří vstupní chodba s šatní skříní, světlá členitá ložnice, koupelna s vanou a dvěma umyvadly a samostatná toaleta. Hlavní obytnou plochou je velký otevřený prostor propojující obývací pokoj s jídelní částí, prakticky navržen je i oddělený kuchyňský kout s moderní kuchyňskou linkou a spotřebiči nabízející dostatek místa pro kulinářské umění. Z této části také vedou schody do horního patra.
Horní mezonetové patro nabízí 2 samostatné pokoje se střešními okny dodávající přirozené prosvětlení.

Dispozice bytu nabízí praktické rozdělení jednotlivých zón i příjemnou míru soukromí. Zajímavost mu dodávají dřevěné trámy, zkosené stěny nebránící pohybu a dobře vyřešené osvětlení celého prostoru. Celoroční pohodlí - topení a ohřev vody zajišťuje vlastní elektrokotel s radiátory.

Osobní vlastnictví.
Měsíční náklady: 2 800 Kč včetně fondu oprav.
Zálohy na elektřinu: 6 000 Kč.
Bonus: příjem z pronájmu společných prostor.

Vršovice patří mezi dlouhodobě velmi vyhledávanou lokalitu nabízející kombinaci městského života a zeleně. Samozřejmostí je veškerá občanská vybavenost - obchody, restaurace, školy a dalších služby, což činí život v této lokalitě velmi pohodlným. Skvělá dostupnost městské dopravy (MHD) zajišťuje rychlé spojení s centrem města.

V případě zájmu o prohlídku nás neváhejte kontaktovat.

Makléř

Máte zájem o tento byt?

Tímto, v souladu s nařízením Evropského parlamentu a Rady (EU) 2016/679, v platném znění, prohlašuji, že mi je alespoň 16 let a uděluji tak svůj souhlas se zpracováním zadaných údajů (jméno, telefon, e-mail, ip adresa) společnosti B3 Technology, s.r.o., IČ: 07330600, se sídlem Novostavby 126/23, 435 11 Lom (správce dat), za účelem předání dotazu z tohoto formuláře Vámi vybranému inzerentovi a zpětného kontaktování mé osoby. Osobní údaje bude správce zpracovávat manuálně i automaticky přímo prostřednictvím svých zaměstnanců. Informace předané tímto formulářem budou uloženy v databázi správce maximálně po dobu 10 let. Odvolání souhlasu s uložením a zpracováním poskytnutých dat lze e-mailem na info@origo-reality.cz. V případě podezření na neoprávněné použití Vámi poskytnutých údajů máte právo předat podnět k šetření Úřadu pro ochranu osobních údajů. Více informací
Chystáte se prodat nemovitost?
Pomůžeme Vám!

Přihlášení k odběru

Nenechte si ujít nejnovější nabídky prodeje bytů 4+kk v Praze 10.