Prodej bytu 1+kk, Kutná Hora, Nádražní, 16 m2 (ID: 2007641)

Nádražní, Kutná Hora-Vnitřní Město

1 749 000 Kč
/za nemovitost
včetně provize, včetně právního servisu
Hypotéka od 7 817 Kč /měs. Chci hypotéku

Parametry bytu

AdresaNádražní, Kutná Hora-Vnitřní Město
ID24181
StavbaCihlová
Stav objektuVelmi dobrý
Patro1.
Lokalita objektuCentrum obce
VlastnictvíOsobní
Užitná plocha16 m2
Podlahová plocha16 m2
Třída energetické náročnostiG - Mimořádně nehospodárná
Elektřina230V
OdpadVeřejná kanalizace
TopeníLokální elektrické
DopravaVlak, Dálnice, Silnice, MHD, Autobus
VodaVodovod

Origo partneři v Kutné Hoře

Popis

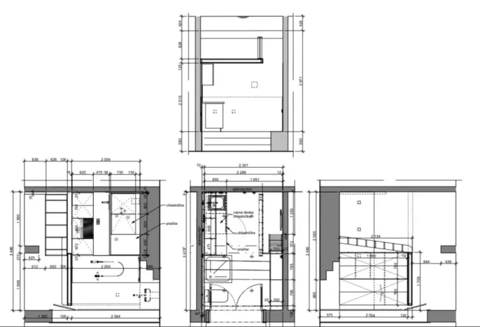
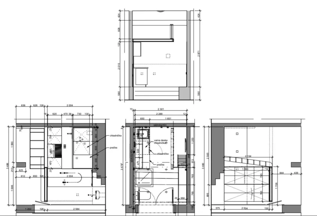
Hotová ubytovací jednotka s výnosovým potenciálem, moderním a efektivním způsobem využitelnosti.

Nabízíme k prodeji nově dokončenou ubytovací jednotku v historickém centru města Kutná Hora, na adrese Nádražní 631/3 – Vnitřní Město.

Jednotka je vedena v katastru nemovitostí jako jiný nebytový prostor a je plně připravena k okamžitému spuštění krátkodobých pronájmů a nebo může sloužit jako kancelář s mezipatrem na spaní.

Dispozice a standard
Celková plocha cca
– cca 8,5 m² hlavní obytná část,
– cca 7,5 m² galerie / spací prostor se sníženým stropem (cca 125 cm)

Kompletně nově dokončeno,
nové elektrické spotřebiče
– lednice, vestavěná mikrovlnná trouba Whirlpool.

Připraveno bez dalších investic ke krátkodobému pronájmu a nebo máme zájemce o pronájem dlouhodobý za 9000 Kč za měsíc.

Tato jednotka se nachází na rohu ulice Sokolská a Nádražní, takže máte na dosah historické centrum Kutné Hory, které patří mezi turisticky stabilní lokality s celoroční poptávkou a také vlak nebo autobus, který je jen 1 minutu chůze.

Proč tato investice dává smysl?
– Nízké pořizovací i provozní náklady
– malometrážní jednotky mají nejvyšší procentuální výnos
– Turisticky silná lokalita (UNESCO)
– Možnost osobního využití mezi pronájmy
– Okamžitý start bez rekonstrukce

Tato jednotka představuje efektivní nástroj pro investory hledající vyšší zhodnocení než u tradičních nájmů nebo konzervativních finančních produktů.

Nemovitost je připravena k okamžitému užívání a díky své kvalitní realizaci a současnému designu pro toho kdo hledá praktické a funkční řešení pro podnikatelské účely či kreativní činnost.

Makléř

Máte zájem o tento byt?

Tímto, v souladu s nařízením Evropského parlamentu a Rady (EU) 2016/679, v platném znění, prohlašuji, že mi je alespoň 16 let a uděluji tak svůj souhlas se zpracováním zadaných údajů (jméno, telefon, e-mail, ip adresa) společnosti B3 Technology, s.r.o., IČ: 07330600, se sídlem Novostavby 126/23, 435 11 Lom (správce dat), za účelem předání dotazu z tohoto formuláře Vámi vybranému inzerentovi a zpětného kontaktování mé osoby. Osobní údaje bude správce zpracovávat manuálně i automaticky přímo prostřednictvím svých zaměstnanců. Informace předané tímto formulářem budou uloženy v databázi správce maximálně po dobu 10 let. Odvolání souhlasu s uložením a zpracováním poskytnutých dat lze e-mailem na info@origo-reality.cz. V případě podezření na neoprávněné použití Vámi poskytnutých údajů máte právo předat podnět k šetření Úřadu pro ochranu osobních údajů. Více informací
Chystáte se prodat nemovitost?
Pomůžeme Vám!

Přihlášení k odběru

Nenechte si ujít nejnovější nabídky prodeje bytů 1+kk v Kutné Hoře.

Podobné nabídky