Prodej bytu 3+kk, Strakonice - Strakonice II, Na Ohradě, 88 m2

Na Ohradě, Strakonice II

8 260 000 Kč
Hypotéka od 36 917 Kč /měs. Chci hypotéku

Parametry bytu

AdresaNa Ohradě, Strakonice II
IDNa Ohradě A55
StavbaSkeletová
VybavenoČástečně
Lokalita objektuCentrum obce
VlastnictvíOsobní
Užitná plocha88 m2
Třída energetické náročnostiB - Velmi úsporná

Origo partneři v Strakonicích

Výkup a prodej starého nábytku

Popis

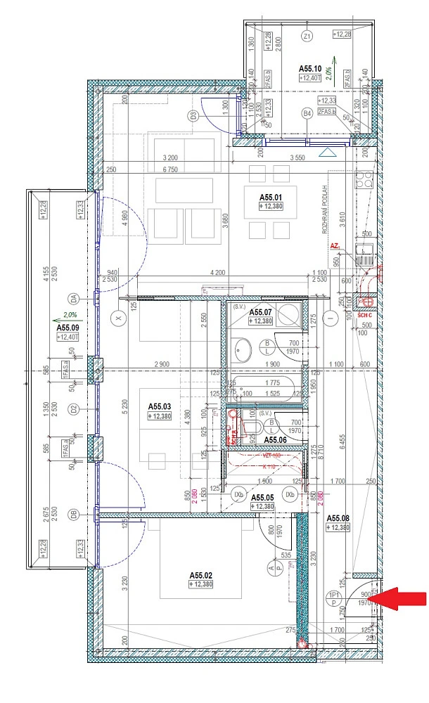
Nabízíme k prodeji byt ve výjimečné stavbě s dispozicí 3+kk a celkové ploše včetně teras 109 m², situovaný v 5. nadzemním podlaží moderního rezidenčního domu na jedné z nejlepších adres v centru města. Byt nabízí dvě prostorné terasy o výměře 8,3 m² a 12,8 m², které rozšiřují obytný prostor a poskytují příjemné místo k odpočinku. Velké prosklení zaručuje po celý den přirozeně prosvětlený interiér s možností regulace pomocí předokenních žaluzií a vytváří velmi příjemnou atmosféru pro komfortní městské bydlení.

Dispozice bytu tvoří velkorysý obývací pokoj s kuchyňským koutem o výměře 29 m², který je přirozeným srdcem domácnosti. Z chodby s úložnými prostory je přístupný další pokoj, ložnice, koupelna a samostatné WC. Vstup do ložnice je možný také přímo z obývacího pokoje.

Dominantou obytného prostoru je elegantní kuchyňská linka v nadčasovém, minimalistickém designu. Lesklé bílé lakované plochy v kombinaci s pracovní deskou v dekoru přírodního dřeva vytváří harmonický celek, který působí svěže, vzdušně a zároveň velmi reprezentativně.

Kuchyň je navržena s důrazem na praktičnost i estetiku – nabízí velkorysé množství úložných prostor a komfortní pracovní plochu. Samozřejmostí jsou vestavěné spotřebiče (elektrická trouba, indukční varná deska, myčka nádobí, mikrovlnná trouba a lednice s mrazákem), které jsou citlivě zakomponovány do celku.

Na kuchyň plynule navazuje jídelní část s přímým vstupem na terasu, což zajišťuje dostatek denního světla a vytváří ideální prostor pro každodenní život i společenské chvíle.

Podlahy v obytných místnostech jsou řešeny v kvalitním dekoru dřeva (švýcarská laminátová podlaha), který interiéru dodává teplo a nadčasovou eleganci. V bytě jsou plastová okna s izolačním dvojsklem, bezfalcové interiérové dveře s obložkovými zárubněmi a vstupní protipožární dveře.

Koupelna a WC jsou obloženy velkoformátovou kalibrovanou keramikou (600 × 300 mm) v elegantním pískovcovém odstínu s pololeskem. Sprchový kout je řešen dlažbou ve spádu s nerezovým odvodňovacím žlábkem.

Podlahová plocha bytu: 83,0 m²
Celková plocha bytu: 87,9 m²
Terasy: 8,3 m² a 12,8 m²
Celková plocha včetně teras: 109,0 m²

Oceněná architektura a výjimečná lokalita
Rezidenční dům se nachází v samotném centru města a po dokončení byl oceněn prestižní cenou PRESTA – Prestižní stavba Jižních Čech, udělovanou architektonicky a stavebně mimořádným projektům. V docházkové vzdálenosti se nachází kompletní občanská vybavenost – obchody a služby, školy a školky i zdravotnická zařízení. Pouhých 10 minut chůze od domu je sportovní areál Na Křemelce. Přímo před objektem se nachází zastávka MHD.

Kvalitní technologie a nadstandardní provedení
Dům je postaven jako kombinovaný železobetonový stěnový systém a skelet s moderním kontaktním zateplením ETICS s probarvenou omítkou, což zajišťuje vysokou energetickou efektivitu a dlouhou životnost. Součástí domu je moderní výtah OTIS s rekuperací energie. Mezibytové stěny jsou železobetonové, bytové příčky sádrokartonové s výplní z minerální vaty. Použité materiály a technologie kladou důraz na kvalitu, komfort a dlouhodobou udržitelnost.

Byt je vybaven kompletními telekomunikačními rozvody, STA, domovními telefony a datovými zásuvkami. Vytápění je zajištěno deskovými radiátory, koupelna a WC jsou napojeny na podtlakové větrání.

K bytu náleží sklepní kóje.

Makléř

Máte zájem o tento byt?

Tímto, v souladu s nařízením Evropského parlamentu a Rady (EU) 2016/679, v platném znění, prohlašuji, že mi je alespoň 16 let a uděluji tak svůj souhlas se zpracováním zadaných údajů (jméno, telefon, e-mail, ip adresa) společnosti B3 Technology, s.r.o., IČ: 07330600, se sídlem Novostavby 126/23, 435 11 Lom (správce dat), za účelem předání dotazu z tohoto formuláře Vámi vybranému inzerentovi a zpětného kontaktování mé osoby. Osobní údaje bude správce zpracovávat manuálně i automaticky přímo prostřednictvím svých zaměstnanců. Informace předané tímto formulářem budou uloženy v databázi správce maximálně po dobu 10 let. Odvolání souhlasu s uložením a zpracováním poskytnutých dat lze e-mailem na info@origo-reality.cz. V případě podezření na neoprávněné použití Vámi poskytnutých údajů máte právo předat podnět k šetření Úřadu pro ochranu osobních údajů. Více informací
Chystáte se prodat nemovitost?
Pomůžeme Vám!

Přihlášení k odběru

Nenechte si ujít nejnovější nabídky prodeje bytů 3+kk v Strakonicích.