Prodej bytu 4+kk, Třebíč - Týn, Lavického, 98 m2

Lavického, Třebíč, Týn

6 890 000 Kč
/za nemovitost
Hypotéka od 30 794 Kč /měs. Chci hypotéku

Parametry bytu

AdresaLavického, Třebíč, Týn
IDN58
StavbaCihlová
Stav objektuVelmi dobrý
Patro4. z 4
Typ objektuPatrový
VlastnictvíOsobní
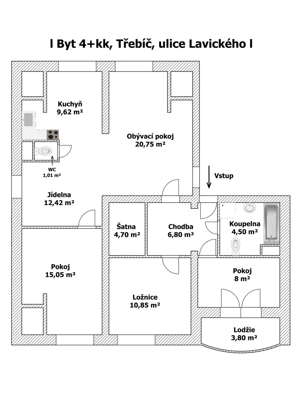
Užitná plocha98 m2
Podlahová plocha98 m2
Třída energetické náročnostiB - Velmi úsporná
Balkon
Sklep
Výtah
Parkování

Origo partneři v Třebíči

Popis

Hledáte komfortní rodinné bydlení nebo zajímavou investiční příležitost?

Nabízíme vám útulný byt o dispozici 4+kk v klidné části Třebíče.

Byt disponuje praktickým uspořádáním – součástí je světlý obývací prostor s kuchyňským koutem a jídelnou, dále ložnice, dětské pokoje, šatna, balkon a dvě samostatná WC, což výrazně zvyšuje komfort bydlení. K bytu náleží také sklep.

Základní informace
Dispozice: 4+kk
Podlahová plocha: 98 m²
Lokalita: Třebíč, ul. Lavického
🧱 Sklep: 3,20 m² (prostorný)
Parkování: bezproblémové přímo před domem

Dispozice a vybavení
️ Obývací pokoj s odděleným kuchyňským koutem a prostornou jídelnou
️ Ložnice + další 2 pokoje (dětské/pracovna)
Praktická šatna s dostatečným úložným prostorem hned vedle ložnice
Balkon pro relaxaci s nádherným výhledem
2 samostatná WC – vyšší komfort pro rodinu


Kuchyně
Kuchyňská linka je plně vybavena vestavěnými spotřebiči:
️ Myčka
️ Trouba
️ Lednice
️ Mrazák

Investiční potenciál
Možnost přestavby na 2 samostatné bytové jednotky:
1+1
2+1
Ideální pro rodinné bydlení nebo i na pronájem s investičním potenciálem

Lokalita
Klidná část města
Dobrá dostupnost služeb a občanské vybavenosti
Pohodlné parkování přímo u domu

Vybavení bytu je možné ponechat dle dohody.

Zaujala vás tato nabídka?
Neváhejte nás kontaktovat pro více informací nebo domluvení prohlídky. Rádi vám byt osobně představíme.

Skvělá příležitost pro rodinné bydlení i investici v Třebíči!

Makléř

Máte zájem o tento byt?

Tímto, v souladu s nařízením Evropského parlamentu a Rady (EU) 2016/679, v platném znění, prohlašuji, že mi je alespoň 16 let a uděluji tak svůj souhlas se zpracováním zadaných údajů (jméno, telefon, e-mail, ip adresa) společnosti B3 Technology, s.r.o., IČ: 07330600, se sídlem Novostavby 126/23, 435 11 Lom (správce dat), za účelem předání dotazu z tohoto formuláře Vámi vybranému inzerentovi a zpětného kontaktování mé osoby. Osobní údaje bude správce zpracovávat manuálně i automaticky přímo prostřednictvím svých zaměstnanců. Informace předané tímto formulářem budou uloženy v databázi správce maximálně po dobu 10 let. Odvolání souhlasu s uložením a zpracováním poskytnutých dat lze e-mailem na info@origo-reality.cz. V případě podezření na neoprávněné použití Vámi poskytnutých údajů máte právo předat podnět k šetření Úřadu pro ochranu osobních údajů. Více informací
Chystáte se prodat nemovitost?
Pomůžeme Vám!

Přihlášení k odběru

Nenechte si ujít nejnovější nabídky prodeje bytů 4+kk v Třebíči.