Prodej bytu 2+1, Chlumec, Stradovská, 64 m2

Stradovská, Chlumec

3 990 000 Kč
/za nemovitost
Včetně provize a právních služeb
Hypotéka od 17 833 Kč /měs. Chci hypotéku

Parametry bytu

AdresaStradovská, Chlumec
ID644
StavbaCihlová
Stav objektuVelmi dobrý
Patro6.
VlastnictvíDružstevní
Užitná plocha64 m2
Třída energetické náročnostiD - Méně úsporná
Elektřina230V
OdpadVeřejná kanalizace
VodaVodovod
Zdroj topeníÚstřední dálkové
Zdroj teplé vodyCentrální dálkový ohřev
Balkon
Sklep
Výtah
Bezbarierový přístup
Převod do OV

Origo partneři v Chlumci

Okna a dveře

Pojištění a finance

Popis

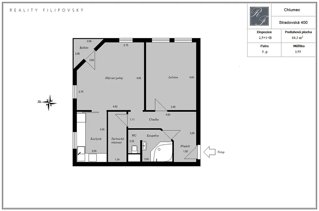
Dovoluji si Vám nabídnout krásný zrekonstruovaný byt 2,5+1+balkón, 64,29 m2, v pátém patře novostavby z roku 2003 v ul. Stradovská v Chlumci u Ústí nad Labem.

Byt se nachází na fantastickém místě prakticky v přírodě, a navíc disponuje doslova dech beroucím panoramatickým výhledem. To mu propůjčuje velmi pozitivní atmosféru a pocit vzdušnosti celého místa, který lze jen těžko něčím nahradit.

Jednotka je aktuálně v družstevním vlastnictví s možným výhledem budoucího převodu do osobního vlastnictví. K této věci Vám podám podrobnější informace telefonicky, nebo při prohlídce.

Velmi se mi líbí logické a nekomplikované uspořádání bytu s prostornou ložnicí, ve které zbylo místo i na pracovní kout, s obývacím pokojem s jídelním koutem a vstupem na balkón volně propojeným s kuchyní, kterou je možné uzavřít posuvnými dveřmi. Skvělá je technická místnost s pračkou, sušičkou a úložnými prostory a ani v koupelně rozhodně nebudete trpět stísněným pocitem. Vstupní chodba je pak vybavena dalšími vestavnými úložnými prostory a zvládne i příchod početnější návštěvy. K bytu náleží velkorysá sklepní kóje s výměrou 5,07m2.

Dům jako takový je v perfektním technickém stavu.
Chlumec je žádanou lokalitou, která je charakteristická svou klidnou atmosférou bez nežádoucích sociálních jevů s výbornou dostupností do Ústí nad Labem, Teplic a také na dálnici D8 s nájezdem Praha a Drážďany vzdáleným 3 minuty jízdy autem. V Praze jste za 45 minut a v Drážďanech za slabých 30 minut. Stanice MHD je vzdálena cca 4 minuty chůze. Obec disponuje veškerou občanskou vybaveností, včetně kvalitní základní školy.

Jedná se o jedinečnou příležitost, jak získat bydlení v bezprostředním kontaktu s přírodou, s výhledem, který se nikdy neomrzí a současně na dosah veškeré občanské vybavenosti.

Makléř

Máte zájem o tento byt?

Tímto, v souladu s nařízením Evropského parlamentu a Rady (EU) 2016/679, v platném znění, prohlašuji, že mi je alespoň 16 let a uděluji tak svůj souhlas se zpracováním zadaných údajů (jméno, telefon, e-mail, ip adresa) společnosti B3 Technology, s.r.o., IČ: 07330600, se sídlem Novostavby 126/23, 435 11 Lom (správce dat), za účelem předání dotazu z tohoto formuláře Vámi vybranému inzerentovi a zpětného kontaktování mé osoby. Osobní údaje bude správce zpracovávat manuálně i automaticky přímo prostřednictvím svých zaměstnanců. Informace předané tímto formulářem budou uloženy v databázi správce maximálně po dobu 10 let. Odvolání souhlasu s uložením a zpracováním poskytnutých dat lze e-mailem na info@origo-reality.cz. V případě podezření na neoprávněné použití Vámi poskytnutých údajů máte právo předat podnět k šetření Úřadu pro ochranu osobních údajů. Více informací
Chystáte se prodat nemovitost?
Pomůžeme Vám!
Theleadway banner

Přihlášení k odběru

Nenechte si ujít nejnovější nabídky prodeje bytů 2+1 v Chlumci (okr. Ústí nad Labem).