Prodej rodinného domu, Vrbno nad Lesy, 140 m2 (ID: 2001922)

Vrbno nad Lesy

4 450 000 Kč
/za nemovitost
Hypotéka od 19 889 Kč /měs. Chci hypotéku

Parametry domu

AdresaVrbno nad Lesy
ID12180
StavbaKamenná
Stav objektuPřed rekonstrukcí
VybavenoNe
Typ objektuPatrový
Druh objektuSamostatný
Lokalita objektuCentrum obce
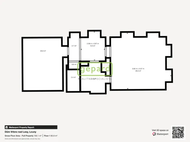
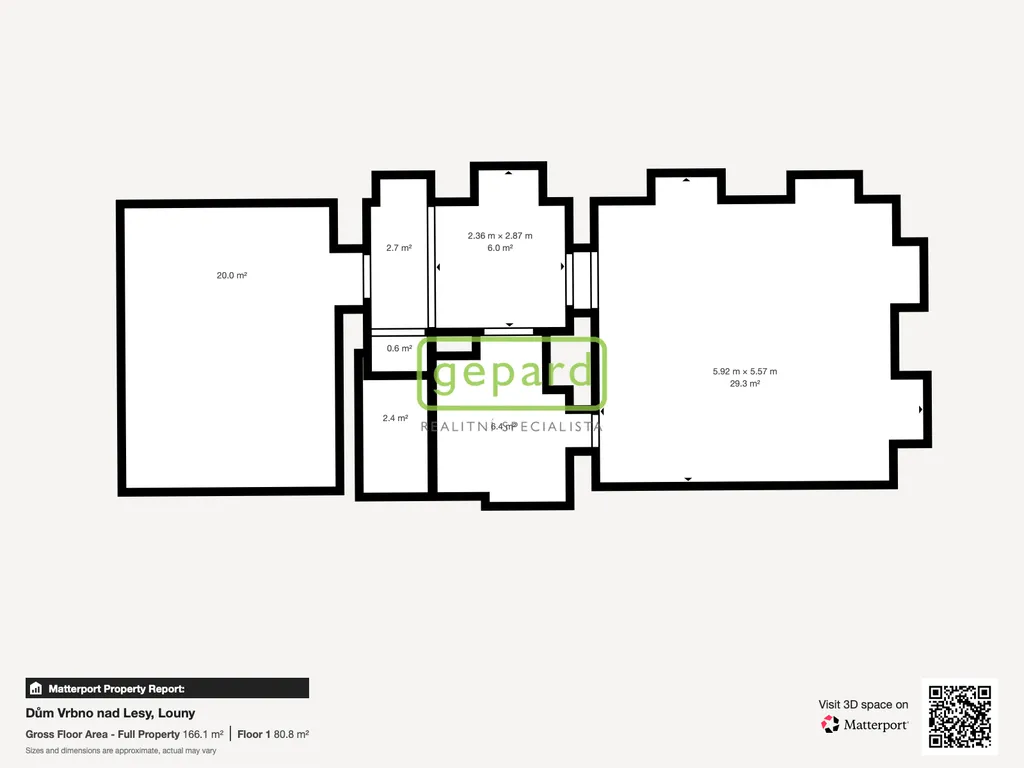
Užitná plocha140 m2
Zastavěná plocha188 m2
Plocha pozemku1585 m2
Elektřina230V
PlynPlynovod
OdpadSeptik
KomunikaceAsfaltová
DopravaVlak, Dálnice, Silnice, Autobus
Převod do OV

Origo partneři v Vrbně nad Lesy

Okna a dveře

Pojištění a finance

Popis

Ve výhradním zastoupení nabízíme k prodeji bývalý statek v obci Vrbno nad Lesy. Dům bude po rekonstrukci ideální místo k bydlení, ale i podnikání. Jako sídlo firmy, nebo menší výrobní prostor. Možnost využití je opravdu široká.

Rodinný dům nabízený k prodeji je vzácně zachovalý v jeho původní podobě závěrečné stavební etapy z přelomu 18. a 19. století. Hmoty zdiva a půdorysné uspořádání pochází z období ještě staršího. Statek je vhodný k bydlení, uměleckořemeslné činnosti i k hospodaření. Tvoří jej seskupení několika objektů a rozsáhlý pozemek, který je obehnán historickou kamennou zdí. Uliční frontu tvoří fasáda hlavního obytného dvoupodlažního objektu. Uvnitř se nachází čtyři obytné místnosti, předsíň, schodiště a černá kuchyň. V místnostech, které historicky sloužily jako zásobnice potravin jsou zachovalé původní archaické štěrbinové větráky. Prostory v přízemí jsou zaklenuty valenými klenbami, v patře jsou rovné stropy s fabionem a profilovanou římsou. Podlahy ve schodišťové prostoře jsou dlážděny velkými pískovcovými kameny. V místnostech jsou dřevěná prkna. Kamenná stavba byla zbavena vlhkosti odstraněním novodobých betonových přizdívek. Statika objektu je stabilní. Dům se vyznačuje neopakovatelnou historickou atmosférou i přesto, že dvorní strana fasády byla zbavena historické štukové výzdoby. Historická výzdoba uliční fronty je však zachovalá včetně masivní hlavní římsy a okenních otvorů. Nad patrovou římsou jsou umístěné busty tří významných osobností českých dějin: Jana Žižky z Trocnova, Karla Havlíčka Borovského a mistra Jana Husa. Z levé strany statek sousedí s rozsáhlým statkem jehož hlavní objekt byl přestavěn na počátku 20. století a z pravé strany rovněž s rozsáhlým statkem, který byl v nedávné době zrekonstruován a je rodištěm karosáře Oldřicha Uhlíka (1.11.1888 - 13.8.1964), zakladatele firmy Karosa.

V areálu statku nabízeného k prodeji se dále nachází rozsáhlá stodola s renovovanou střešní krytinou na opraveném historickém krovu. Část stodoly je podsklepena. Dále jsou zde historické chlívky pro domácí zvířata se zachovalými vrátky a půdním prostorem na slámu, a tzv. vejminek – domek pro předchozího hospodáře tedy rodiče. Vejminek je přízemní budova v původním stavu skládající se ze dvou místností, situovaná do uliční fronty. Součástí pozemku je studna s vlastní nezávadnou vodou.

V domě je zavedena voda z vodovodního řadu a na pozemku je plyn. Samotný dům je stará poctivá práce, kdy obvodní stěny domu jsou 90 cm široké, což zaručuje výborné termoizolační vlastnosti.

Velikou výhodou je poloha obce, cesta na letiště trvá pouhých 35 minut a za 45 minut jste téměř v centru Prahy. Nájezd na dálnic D7 je vzdálený méně než 4 kilometry.
První a posledních 7 fotografií jsou vizualizace pro lepší představu, jak by mohl tento krásný dům vypadat.

Nyní se již pohodlně usaďte a užijte si naší virtuální prohlídku a pro více informací, nebo domluvení prohlídky mě neváhejte kontaktovat.

Makléř

Máte zájem o tento dům?

Tímto, v souladu s nařízením Evropského parlamentu a Rady (EU) 2016/679, v platném znění, prohlašuji, že mi je alespoň 16 let a uděluji tak svůj souhlas se zpracováním zadaných údajů (jméno, telefon, e-mail, ip adresa) společnosti B3 Technology, s.r.o., IČ: 07330600, se sídlem Novostavby 126/23, 435 11 Lom (správce dat), za účelem předání dotazu z tohoto formuláře Vámi vybranému inzerentovi a zpětného kontaktování mé osoby. Osobní údaje bude správce zpracovávat manuálně i automaticky přímo prostřednictvím svých zaměstnanců. Informace předané tímto formulářem budou uloženy v databázi správce maximálně po dobu 10 let. Odvolání souhlasu s uložením a zpracováním poskytnutých dat lze e-mailem na info@origo-reality.cz. V případě podezření na neoprávněné použití Vámi poskytnutých údajů máte právo předat podnět k šetření Úřadu pro ochranu osobních údajů. Více informací
Chystáte se prodat nemovitost?
Pomůžeme Vám!
Theleadway banner

Přihlášení k odběru

Nenechte si ujít nejnovější nabídky prodeje rodinných domů v Vrbně nad Lesy.