Soccer reality

Prodej bytu 4+kk, Odolena Voda, Školní, 100 m2 (ID: 2000399)

Školní, Odolena Voda, Dolínek

Cena na vyžádání
/za nemovitost
Získejte výhodnou HYPOTÉKU Chci hypotéku

Parametry bytu

AdresaŠkolní, Odolena Voda, Dolínek
ID0057
StavbaCihlová
Stav objektuNovostavba
Patro1.
VlastnictvíDružstevní
Užitná plocha100 m2
Převod do OV
Parkování

Origo partneři v Odoleně Vodě

Popis

Prodej novostavby družstevního bytu, 4+kk 100m² + předzahrádka cca 30 m² +2× parkovací stání.

Na začátku platíte pouze cenu za převod členského podílu: 3 590 000,-Kč.
Zbývající anuita: 7 880 000,-Kč se splácí v měsíčních splátkách: 41 710,-Kč a bydlíte. Nedokládáte příjmy.


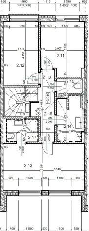
Nabízíme k prodeji nový družstevní mezonetový byt o dispozici 4+kk o velikosti 100 m² + předzahrádka o výměře cca 30 m², který je situovaný v 1. NP a 2.NP cihlové novostavby družstevního bydlení v Rezidenci U Školy, Odolena Voda.

Byt je dokončený po kolaudaci, je provedena příprava pro kuchyňskou linku, hotové koupelny včetně sanity, dlažby, interiérové dveře, rekuperační jednotka, podlahové vytápění, plastová okna. V ceně bytu je vinylová podlaha, možnost vlastního výběru s případným doplatkem rozdílu ceny za m².
Podlahové vytápění zajištěné tepelným čerpadlem, budova vystavena jako mimořádně úsporná, energetická náročnost PENB je ve třídě A.

Příslušenství bytu je 1x koupelna s vanou a WC, 1x koupelna se sprchovým koutem,
2x samostatné WC, 2x technická místnost, předzahrádka přístupná s terasy z obývacího pokoje, 2x parkovací stání před domem.
Kolaudace 2025.

Jedná se formu družstevního bydlení (družstevní byt) bez nutnosti prokazovat příjmy – po zaplacení za převod členského podílu cenu bytu dále splácíte formou měsíční anuitní splátky, spojené s poplatky za byt měsíční platbou včetně poplatků a záloha na služby: 47 931,-Kč.
Po splacení anuity lze byt převést do osobního vlastnictví, a to i formou mimořádné splátky.

Podrobnosti ke splátkám a družstvu zašleme na vyžádání.

Makléř

Máte zájem o tento byt?

Tímto, v souladu s nařízením Evropského parlamentu a Rady (EU) 2016/679, v platném znění, prohlašuji, že mi je alespoň 16 let a uděluji tak svůj souhlas se zpracováním zadaných údajů (jméno, telefon, e-mail, ip adresa) společnosti B3 Technology, s.r.o., IČ: 07330600, se sídlem Novostavby 126/23, 435 11 Lom (správce dat), za účelem předání dotazu z tohoto formuláře Vámi vybranému inzerentovi a zpětného kontaktování mé osoby. Osobní údaje bude správce zpracovávat manuálně i automaticky přímo prostřednictvím svých zaměstnanců. Informace předané tímto formulářem budou uloženy v databázi správce maximálně po dobu 10 let. Odvolání souhlasu s uložením a zpracováním poskytnutých dat lze e-mailem na info@origo-reality.cz. V případě podezření na neoprávněné použití Vámi poskytnutých údajů máte právo předat podnět k šetření Úřadu pro ochranu osobních údajů. Více informací
Chystáte se prodat nemovitost?
Pomůžeme Vám!

Přihlášení k odběru

Nenechte si ujít nejnovější nabídky prodeje bytů 4+kk v Odoleně Vodě.