Prodej rodinného domu, Přelouč, 97 m2

Přelouč, Klenovka

5 290 000 Kč
/za nemovitost
Hypotéka od 23 643 Kč /měs. Chci hypotéku

Parametry domu

AdresaPřelouč, Klenovka
ID1171
StavbaCihlová
Stav objektuVe výstavbě
Druh objektuSamostatný
Lokalita objektuKlidná část obce
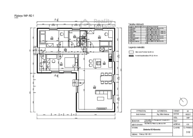
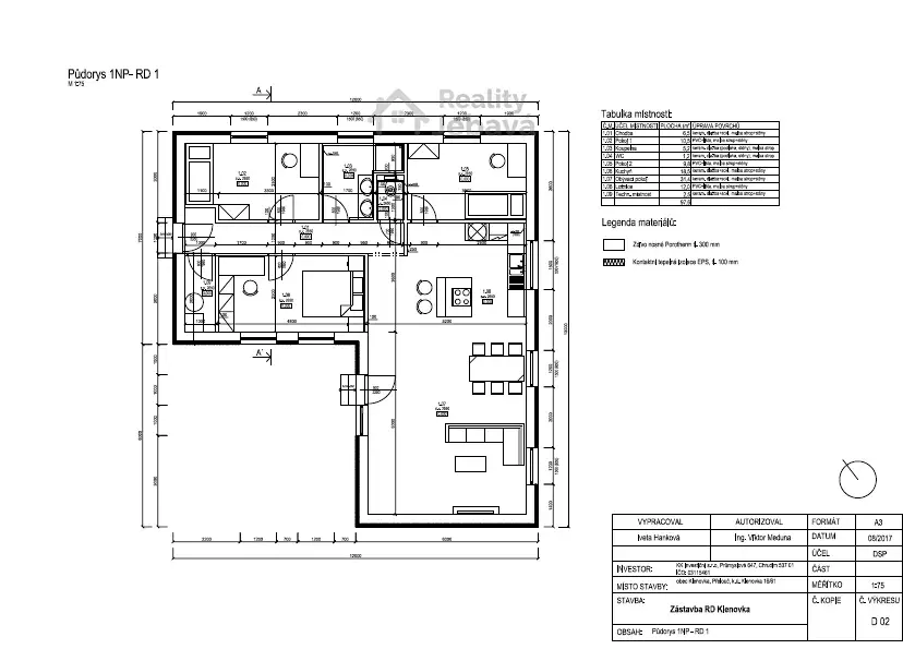
Užitná plocha97 m2
Zastavěná plocha156 m2
Podlahová plocha822 m2
Plocha pozemku822 m2
Plocha zahrady665 m2
Elektřina230V, 400V
OdpadVeřejná kanalizace
KomunikaceAsfaltová
VodaVodovod
Bezbarierový přístup

Origo partneři v Přelouči

Popis

Připravujeme k prodeji hrubou stavbu zděného bezbariérového bungalovu o dispozici 4+kk, který bude umístěn na pozemku o velikosti 822 m² v obci Klenovka, části města Přelouč. Jedná se o třetí etapu výstavby v této oblíbené lokalitě. Dokončení hrubé stavby je plánováno na prosinec 2026 a cena zahrnuje i samotný pozemek.
Pozemek má pravidelný tvar, je rovinatý a kompletně zasíťovaný – k dispozici je vodovod, elektřina a splašková kanalizace, které jsou již zkolaudované. Velkou výhodou je, že za tímto pozemkem není plánována další výstavba, což budoucím majitelům poskytne dostatek soukromí.
Rodinný dům je navržen jako moderní bezbariérový bungalov, který nabízí pohodlné a praktické bydlení pro všechny generace. Další předností této nabídky je možnost, aby si budoucí majitelé přizpůsobili dům svým představám – ať už jde o úpravu dispozice, výběr materiálů nebo finální design interiéru. Po dohodě lze dům dokončit i v provedení „na klíč“, což zájemcům přinese komfortní řešení bez starostí.
Stavební povolení je již vydáno a pozemek lze v případě zájmu zakoupit také samostatně, bez hrubé stavby rodinného domu. Více našich realizací najdete na přiložených fotografiích.
Klenovka se nachází přibližně 3 km od centra Přelouče a 12 km od Pardubic. Díky vlakovému spojení je možné dostat se do Prahy za zhruba 40 minut. Lokalita tak nabízí klidné a komfortní bydlení s výbornou dostupností do okolních měst.
Pro více informací a sjednání prohlídky kontaktujte naši realitní kancelář.

Makléř

Máte zájem o tento dům?

Tímto, v souladu s nařízením Evropského parlamentu a Rady (EU) 2016/679, v platném znění, prohlašuji, že mi je alespoň 16 let a uděluji tak svůj souhlas se zpracováním zadaných údajů (jméno, telefon, e-mail, ip adresa) společnosti B3 Technology, s.r.o., IČ: 07330600, se sídlem Novostavby 126/23, 435 11 Lom (správce dat), za účelem předání dotazu z tohoto formuláře Vámi vybranému inzerentovi a zpětného kontaktování mé osoby. Osobní údaje bude správce zpracovávat manuálně i automaticky přímo prostřednictvím svých zaměstnanců. Informace předané tímto formulářem budou uloženy v databázi správce maximálně po dobu 10 let. Odvolání souhlasu s uložením a zpracováním poskytnutých dat lze e-mailem na info@origo-reality.cz. V případě podezření na neoprávněné použití Vámi poskytnutých údajů máte právo předat podnět k šetření Úřadu pro ochranu osobních údajů. Více informací
Chystáte se prodat nemovitost?
Pomůžeme Vám!

Přihlášení k odběru

Nenechte si ujít nejnovější nabídky prodeje rodinných domů v Přelouči.