Prodej bytu 3+kk, Praha - Smíchov, U dvou srpů, 89 m2 (ID: 1996957)

U dvou srpů, Praha, Smíchov

16 990 000 Kč
/za nemovitost
včetně provize, včetně právního servisu
Hypotéka od 75 935 Kč /měs. Chci hypotéku

Parametry bytu

AdresaU dvou srpů, Praha, Smíchov
ID2026059
StavbaCihlová
Stav objektuPo rekonstrukci
Patro3.
VybavenoČástečně
VlastnictvíOsobní
Užitná plocha89 m2
Třída energetické náročnostiG - Mimořádně nehospodárná
TopeníÚstřední plynové
KomunikaceAsfaltová
TelekomunikaceTelefon, Internet
DopravaSilnice, MHD
Garáž
Sklep
Terasa
Výtah

Origo partneři v Praze

Stěhovací služby

Výkup a prodej starého nábytku

Popis

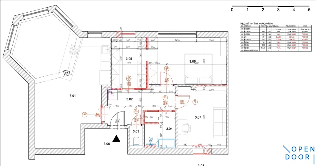
Nabízíme k prodeji výjimečný a nadčasově architektonicky a technologicky řešený byt o podlahové ploše 89 m² ve 2. patře bytového domu v klidné rezidenční části Prahy 5 v ulici U dvou srpů.

Dominantou bytu je velkorysý obytný prostor (38,6 m²) s velkou sedací soupravou zhotovenou na míru, propojující obývací část, jídelnu a kuchyni s ostrůvkem. Kuchyňská linka, také vyrobená na míru, s vestavěnými high-end spotřebiči (varná deska, lednice s mrazákem, myčka nádobí, trouba, vinotéka) tvoří elegantní centrum celého bytu. Ložnice (15,5 m²) poskytuje klid a soukromí má vestavěné skříně a je důmyslně propojená se samostatnou šatnou (7,5 m²) s dalšími vestavěnými systémy. Pracovna / druhý pokoj nabízí přímý vstup na terasu o velikosti cca 14 m². Tento prostor je ideální pro home office s možností relaxace na čerstvém vzduchu, dětský pokoj nebo jako klidná soukromá zóna. Ve všech pokojích je sound system (multiroom) a v celém bytě smart osvětlení (systém Philips Hue). Koupelna je provedena v luxusním tmavém dekoru s velkoformátovými obklady, walk-in sprchovým koutem a designovým podsvíceným zrcadlem. Toaleta samostatně. K bytu náleží jedno parkovací místo ve dvougaráži v přízemí domu a dále zděný sklep.

Byt prošel kompletní rekonstrukcí a interiér je laděn do nadčasového industriálního stylu s důrazem na kvalitní materiály, detail a funkční řešení prostoru. Ohřev vody a vytápění otopnými tělesy zajištuje kondenzační plynový kotel. Pro zvýšení komfortu nechybí ani elektrické podlahové vytápění. Byt má nová hliníková okna s trojskly.

Tato nemovitost představuje ideální volbu pro náročného klienta hledajícího promyšlený a vysoce komfortní byt s nejmodernějšími technologiemi.

Lokalita nabízí jak klidné bydlení v zeleni – dům je zasazen do zeleného svahu – a nachází se pár kroků od parku Klamovka, tak skvělou dopravní dostupnost (ulice Plzeňská, páteřní tramvaje č. 9,10, 15, 16, a další). Kompletní občanská vybavenost v docházkové vzdálenosti.

Makléř

Máte zájem o tento byt?

Tímto, v souladu s nařízením Evropského parlamentu a Rady (EU) 2016/679, v platném znění, prohlašuji, že mi je alespoň 16 let a uděluji tak svůj souhlas se zpracováním zadaných údajů (jméno, telefon, e-mail, ip adresa) společnosti B3 Technology, s.r.o., IČ: 07330600, se sídlem Novostavby 126/23, 435 11 Lom (správce dat), za účelem předání dotazu z tohoto formuláře Vámi vybranému inzerentovi a zpětného kontaktování mé osoby. Osobní údaje bude správce zpracovávat manuálně i automaticky přímo prostřednictvím svých zaměstnanců. Informace předané tímto formulářem budou uloženy v databázi správce maximálně po dobu 10 let. Odvolání souhlasu s uložením a zpracováním poskytnutých dat lze e-mailem na info@origo-reality.cz. V případě podezření na neoprávněné použití Vámi poskytnutých údajů máte právo předat podnět k šetření Úřadu pro ochranu osobních údajů. Více informací
Chystáte se prodat nemovitost?
Pomůžeme Vám!

Přihlášení k odběru

Nenechte si ujít nejnovější nabídky prodeje bytů 3+kk v Praze.