Pronájem rodinného domu, Dlouhý Újezd, 170 m2 (ID: 1992097)

Dlouhý Újezd

30 000 Kč
/za měsíc
energie + provize RK + kauce 100.000,-Kč
Získejte výhodnou HYPOTÉKU Chci hypotéku

Parametry domu

AdresaDlouhý Újezd
IDOB02126
StavbaCihlová
Stav objektuNovostavba
VybavenoČástečně
Typ objektuPatrový
Druh objektuSamostatný
Lokalita objektuKlidná část obce
Užitná plocha170 m2
Zastavěná plocha138 m2
Podlahová plocha983 m2
Plocha pozemku983 m2
Plocha zahrady845 m2
Třída energetické náročnostiC - Úsporná
Ukazatel energetické náročnosti79 kWh/m2 za rok
Elektřina230V, 400V
PlynPlynovod
OdpadVeřejná kanalizace, ČOV pro celý objekt
TopeníLokální tuhá paliva, Ústřední plynové
KomunikaceAsfaltová
TelekomunikaceInternet
DopravaSilnice, Autobus
VodaVodovod
Terasa
Výtah

Origo partneři v Dlouhém Újezdu

Stěhovací služby

Popis

Dovolujeme si Vám nabídnout k pronájmu nadstandardní novostavbu rodinného domu (kolaudovanou v roce 2023) se zahradou v obci Dlouhý Újezd.

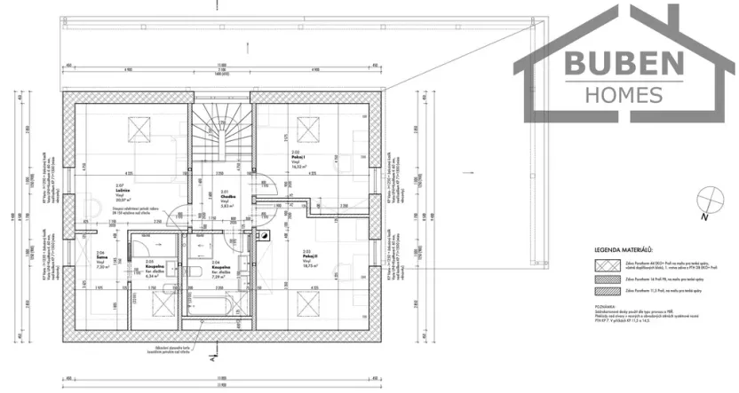
Předmětem pronájmu je patrová stavba dispozici 5+kk s technickou místností o celkové užitné ploše 170 m2 (85 m2 každé podlaží). Zastavěná plocha je o výměře 138 m2, výměrová plocha zahrady činí 845 m2.

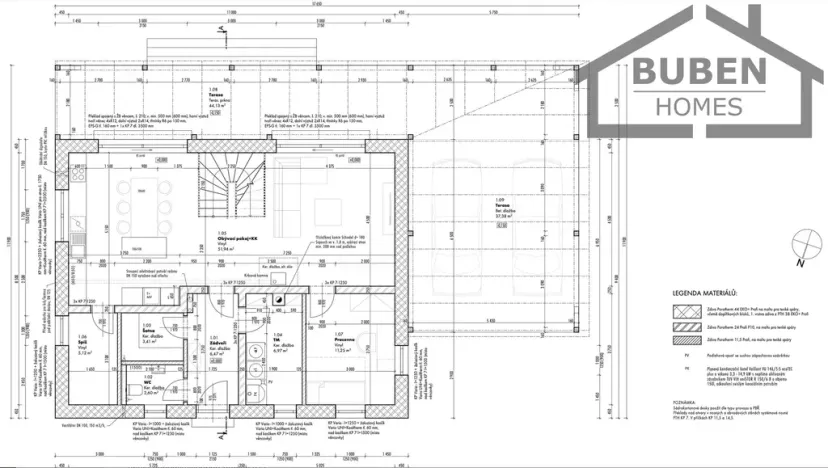
Přízemí domu tvoří vstupní chodba, samostatné WC, šatna, technická místnost, prostorná obývací hala s kuchyní se spíží, se vstupem na terasu a pracovna. V patře jsou vybudované tři prostorné ložnice (jedna se samostatnou koupelnou s WC - sprchový kout) a druhá koupelna s WC (vana, sprchový kout).

Dům se pronajímá včetně kvalitní kuchyňské linky s vestavěnými spotřebiči (horkovzdušná trouba, digestoř, sklokeramická varná deska, myčka, lednice).

Objekt  je napojen na veřejný vodovod, elektřinu, odpad je sveden do ČOV (s přepadem do veřejné kanalizace). Je vytápěn podlahově, plynovým kondenzačním kotlem, dále je možnost vytápění krbovými kamny v obývacím pokoji. Komfort a soukromí zajišťuji venkovní hliníkové rolety.

Majitel na vlastní náklady, zajistí výstavbu zastřešeného parkovacího stání pro dva automobily, navazujícího na dům a terasu.

Dům je situován ve velmi poklidné části obce. Dům je určen pouze pro rodinu, či pár. V obci se nachází, obecní úřad, potraviny, kulturní dům, pohostinství. Leží 3 km od okresního města Tachov s veškerou občanskou vybaveností.

Měsíční nájemné činí 30.000,-Kč + energie (voda, elektřina a plyn - přepis na nájemce + svoz odpadů).  Nutné složení vratné kauce ve výši 100.000,-Kč. Dále zájemce hradí provizi RK za zprostředkování pronájmu ve výši měsíčního nájemného + DPH.

Makléř

Máte zájem o tento dům?

Tímto, v souladu s nařízením Evropského parlamentu a Rady (EU) 2016/679, v platném znění, prohlašuji, že mi je alespoň 16 let a uděluji tak svůj souhlas se zpracováním zadaných údajů (jméno, telefon, e-mail, ip adresa) společnosti B3 Technology, s.r.o., IČ: 07330600, se sídlem Novostavby 126/23, 435 11 Lom (správce dat), za účelem předání dotazu z tohoto formuláře Vámi vybranému inzerentovi a zpětného kontaktování mé osoby. Osobní údaje bude správce zpracovávat manuálně i automaticky přímo prostřednictvím svých zaměstnanců. Informace předané tímto formulářem budou uloženy v databázi správce maximálně po dobu 10 let. Odvolání souhlasu s uložením a zpracováním poskytnutých dat lze e-mailem na info@origo-reality.cz. V případě podezření na neoprávněné použití Vámi poskytnutých údajů máte právo předat podnět k šetření Úřadu pro ochranu osobních údajů. Více informací
Chystáte se prodat nemovitost?
Pomůžeme Vám!

Přihlášení k odběru

Nenechte si ujít nejnovější nabídky pronájmu rodinných domů v Dlouhém Újezdu.