Prodej bytu 2+1, Trutnov, Marie Pujmanové, 50 m2

Marie Pujmanové, Trutnov, Kryblice

3 700 000 Kč
/za nemovitost
Hypotéka od 16 537 Kč /měs. Chci hypotéku

Parametry bytu

AdresaMarie Pujmanové, Trutnov, Kryblice
ID20333
StavbaCihlová
Stav objektuDobrý
Patro3. z 4
VlastnictvíOsobní
Užitná plocha50 m2
Podlahová plocha56 m2
Třída energetické náročnostiD - Méně úsporná
Ukazatel energetické náročnosti125 kWh/m2 za rok
Elektřina230V
PlynPlynovod
OdpadVeřejná kanalizace
KomunikaceAsfaltová
DopravaSilnice
VodaVodovod
Zdroj topeníCentrální dálkové
Sklep

Origo partneři v Trutnově

Popis

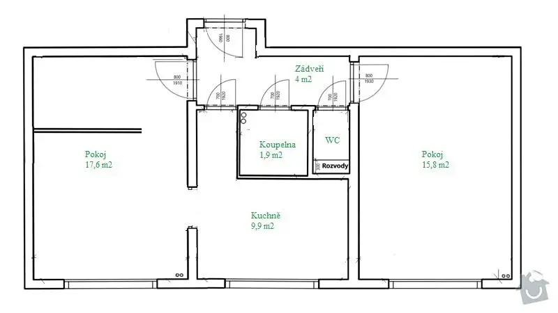
Nabízíme k prodeji byt s dispozicí 2+1 v osobním vlastnictví, nachází se v klidné a vyhledávané lokalitě Kryblice v Trutnově. Celková podlahová plocha bytu je 56 m².
Byt disponuje dvěma samostatnými neprůchozími pokoji, což zajišťuje dostatek soukromí pro jednotlivé členy domácnosti. Součástí bytu je také kuchyň vybavená kuchyňskou linkou. V bytě se dále nachází koupelna se sprchovým koutem, umyvadlem a samostatná toaleta.
K bytu náleží sklepní kóje o výměře 6,5 m², která poskytuje dostatek úložného prostoru.
Byt prošel částečnou rekonstrukcí přibližně před 10 lety. Dům je po revitalizaci fasády a má plastová okna, což přispívá k lepší energetické úspornosti a komfortu bydlení.
Lokalita Kryblice nabízí velmi dobrou občanskou vybavenost. V docházkové vzdálenosti se nachází mateřská a základní škola, obchody, restaurace, lékárna, zdravotní středisko i zastávky městské hromadné dopravy.
V blízkosti se nachází lesy a příroda vhodná pro procházky, sport i cykloturistiku. Výhodou je dobrá dostupnost do centra města Trutnov.
Byt je vhodný jak k vlastnímu bydlení, tak jako investice k pronájmu.
Pro více informací nebo domluvení osobní prohlídky mne neváhejte kontaktovat na uvedeném telefonním čísle.

Makléř

Máte zájem o tento byt?

Tímto, v souladu s nařízením Evropského parlamentu a Rady (EU) 2016/679, v platném znění, prohlašuji, že mi je alespoň 16 let a uděluji tak svůj souhlas se zpracováním zadaných údajů (jméno, telefon, e-mail, ip adresa) společnosti B3 Technology, s.r.o., IČ: 07330600, se sídlem Novostavby 126/23, 435 11 Lom (správce dat), za účelem předání dotazu z tohoto formuláře Vámi vybranému inzerentovi a zpětného kontaktování mé osoby. Osobní údaje bude správce zpracovávat manuálně i automaticky přímo prostřednictvím svých zaměstnanců. Informace předané tímto formulářem budou uloženy v databázi správce maximálně po dobu 10 let. Odvolání souhlasu s uložením a zpracováním poskytnutých dat lze e-mailem na info@origo-reality.cz. V případě podezření na neoprávněné použití Vámi poskytnutých údajů máte právo předat podnět k šetření Úřadu pro ochranu osobních údajů. Více informací
Chystáte se prodat nemovitost?
Pomůžeme Vám!

Přihlášení k odběru

Nenechte si ujít nejnovější nabídky prodeje bytů 2+1 v Trutnově.