Prodej bytu 3+kk, Praha - Nusle, Boleslavova, 58 m2

Boleslavova, Praha, Nusle

12 500 000 Kč
/za nemovitost
Hypotéka od 55 867 Kč /měs. Chci hypotéku

Parametry bytu

AdresaBoleslavova, Praha, Nusle
ID00217
StavbaCihlová
Stav objektuPo rekonstrukci
Patro1. z 3
VybavenoČástečně
Lokalita objektuKlidná část obce
VlastnictvíOsobní
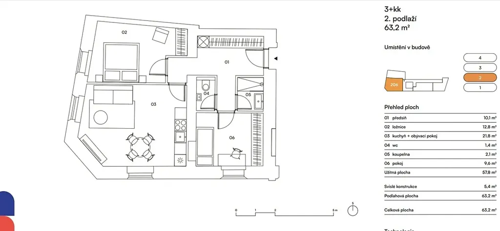
Užitná plocha58 m2
Podlahová plocha63 m2
Třída energetické náročnostiG - Mimořádně nehospodárná
Výtah

Origo partneři v Praze 4

Stěhovací služby

Výkup a prodej starého nábytku

Popis

Exkluzivně nabízíme byt o dispozici 3+kk v butikovém rezidenčním projektu s 15 jedinečnými jednotkami a nápaditým interiérem společných prostor. Jedná se o rezidenční projekt Boleslavova 3 s výhledy na park Fidlovačka i celé Nuselské údolí.

Jednotka je umístněná v přízemí bytové domu a skládá se z:
- vstupní hala s vestavnou skříní
- koupelna
- hlavní obytná místnost s kuchyňskou linkou vybavenou všemi spotřebiči
- ložnice s vestavnou skříní
- druhá ložnice s vestavnou skříní

Ke standardu patří kuchyně na míru, kvalitní LVT podlaha s dekorem i vlastnostmi dřeva, velkoformátová dlažba a obklady kombinované s mozaikou v neutrálních zemitých tónech, sanita Laufen a Kartell by Laufen, chromované baterie Grohe Essence včetně podomítkové, vstupní dveře vyrobené truhlářem na zakázku.
- rekuperace
- každá obytná místnost disponuje samostatně regulovaným
elektrickým podlahovým vytápěním
- centrální vypínač světel
- dřevěná okna

Sklep není. Parkování modré zóny.

Lokalita:
Nejbližší tramvajová zastávka se nachází hned pod parkem Fidlovačka, jen 200 metrů od projektu. Během několika minut se svezete na náplavku k Vltavě i do úplného centra Prahy. Za 7 minut dojdete na stanici metra Vyšehrad a stejně rychle se autem napojíte na městskou dopravní tepnu. Cestování v blízké době zpříjemní plánovaná výstavba nové linky metra D. Milovníky aktivního životního stylu potěší cyklostezka, která vás zavede na trasy po celém městě.

Makléř

Máte zájem o tento byt?

Tímto, v souladu s nařízením Evropského parlamentu a Rady (EU) 2016/679, v platném znění, prohlašuji, že mi je alespoň 16 let a uděluji tak svůj souhlas se zpracováním zadaných údajů (jméno, telefon, e-mail, ip adresa) společnosti B3 Technology, s.r.o., IČ: 07330600, se sídlem Novostavby 126/23, 435 11 Lom (správce dat), za účelem předání dotazu z tohoto formuláře Vámi vybranému inzerentovi a zpětného kontaktování mé osoby. Osobní údaje bude správce zpracovávat manuálně i automaticky přímo prostřednictvím svých zaměstnanců. Informace předané tímto formulářem budou uloženy v databázi správce maximálně po dobu 10 let. Odvolání souhlasu s uložením a zpracováním poskytnutých dat lze e-mailem na info@origo-reality.cz. V případě podezření na neoprávněné použití Vámi poskytnutých údajů máte právo předat podnět k šetření Úřadu pro ochranu osobních údajů. Více informací
Chystáte se prodat nemovitost?
Pomůžeme Vám!

Přihlášení k odběru

Nenechte si ujít nejnovější nabídky prodeje bytů 3+kk v Praze 4.