Soccer reality

Prodej bytu 3+kk, Praha - Hloubětín, Laponská, 66 m2

Laponská, Praha 9 - Hloubětín

12 380 000 Kč

včetně provize RK
Hypotéka od 55 331 Kč /měs. Chci hypotéku

Parametry bytu

AdresaLaponská, Praha 9 - Hloubětín
ID00021
StavbaSmíšená
Stav objektuNovostavba
VybavenoČástečně
VlastnictvíOsobní
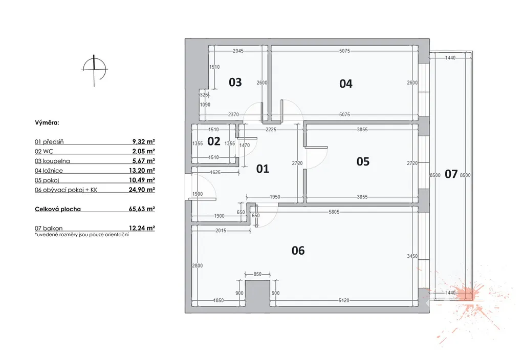
Užitná plocha66 m2
Třída energetické náročnostiB - Velmi úsporná
Ukazatel energetické náročnosti47 kWh/m2 za rok

Origo partneři v Praze 9

Stěhovací služby

Výkup a prodej starého nábytku

Popis

Jsou byty, které splní očekávání. A pak jsou byty, které je dokážou překonat. Právě mezi ně patří tento výjimečný byt v moderním projektu Lappi Hloubětín, dokončeném v roce 2024. Nabízí kombinaci novostavby, promyšleného komfortu, prostoru a velmi příjemné atmosféry, díky které se domov stává místem, kam se každý den vracíte opravdu rádi.

Byt o dispozici 3+kk s podlahovou plochou 70,2 m² se nachází v ulici Laponská v oblíbené části Hloubětína. Interiér působí vzdušně, čistě a harmonicky. Vše je zde stále jako nové – kuchyňská linka i nábytek a stejně jako samotný byt i celý dům jsou ještě v záruce. Díky tomu skýtá bydlení tady nejen moderní vzhled, ale i příjemný pocit jistoty a kvality novostavby.

Dominantou bytu je velkorysý balkon o velikosti 12 m² s krásným otevřeným výhledem a dostatkem prostoru pro pohodlné posezení i odpočinek. Balkon je zasklený a doplněný elegantními plisé roletami, takže se z něj stává příjemné místo pro ranní kávu, večerní relaxaci i klidné chvíle během dne téměř po celý rok. V bytě je navíc připravena instalace pro předokenní rolety, které mohou komfort bydlení ještě zvýšit.

V interiéru panuje velmi příjemný klid. Kvalitní trojskla výborně izolují zvukově i tepelně, takže byt působí tichým a harmonickým dojmem. O zdravé vnitřní prostředí se stará rekuperace, která zajišťuje stálý přísun čerstvého vzduchu. Elegantním a zároveň praktickým detailem jsou elektricky ovládané závěsy, které bytu dodávají nádech moderního a komfortního domova.

Součástí prodeje je také sklepní kóje a garážové stání v podzemním podlaží domu. Samotný dům nabízí vysoký standard bydlení – společné prostory jsou vybaveny kamerovým systémem, k dispozici jsou dva výtahy a nechybí ani wifi připojení až do druhého podzemního podlaží. Obyvatelé domu mohou využívat také kolárnu, kočárkárnu a praktickou myčku na kola a kočárky. Budova je navržena jako nízkoenergetická, což přispívá k příjemnému a modernímu bydlení.

Velkou předností je také samotné okolí domu. V bezprostřední blízkosti najdete obchody, kavárnu, pizzerii, sushi restauraci i praktické výdejní boxy pro online nákupy. Rodiny potěší mateřská škola a také dětské hřiště určené pouze pro místní obyvatele, které vytváří bezpečné a přátelské prostředí pro dětské hry i sousedská setkávání.
Milovníci pohybu ocení cyklostezku podél Rokytky, která je ideální pro procházky, běh, jízdu na kole nebo příjemný odpočinek v zeleni.

Dopravní dostupnost je víc než dobrá. Přímo u domu se nachází tramvajová zastávka Nový Hloubětín. Nedaleko jsou stanice metra linky B Hloubětín a Kolbenova. Cestování autem zpříjemňuje rychlé napojení na dálnice D10 a D11 i Pražský okruh.

Tento byt nabízí moderní, klidné a velmi komfortní bydlení v kvalitní novostavbě, kde se propojuje promyšlený design, technologie a příjemné okolí. Je to místo, které si Vás získá atmosférou i prostorem a dodá Vám pocit skutečného domova.

Těším se na prohlídku, při níž Vám byt ráda představím.

Makléř

Máte zájem o tento byt?

Tímto, v souladu s nařízením Evropského parlamentu a Rady (EU) 2016/679, v platném znění, prohlašuji, že mi je alespoň 16 let a uděluji tak svůj souhlas se zpracováním zadaných údajů (jméno, telefon, e-mail, ip adresa) společnosti B3 Technology, s.r.o., IČ: 07330600, se sídlem Novostavby 126/23, 435 11 Lom (správce dat), za účelem předání dotazu z tohoto formuláře Vámi vybranému inzerentovi a zpětného kontaktování mé osoby. Osobní údaje bude správce zpracovávat manuálně i automaticky přímo prostřednictvím svých zaměstnanců. Informace předané tímto formulářem budou uloženy v databázi správce maximálně po dobu 10 let. Odvolání souhlasu s uložením a zpracováním poskytnutých dat lze e-mailem na info@origo-reality.cz. V případě podezření na neoprávněné použití Vámi poskytnutých údajů máte právo předat podnět k šetření Úřadu pro ochranu osobních údajů. Více informací
Chystáte se prodat nemovitost?
Pomůžeme Vám!

Přihlášení k odběru

Nenechte si ujít nejnovější nabídky prodeje bytů 3+kk v Praze 9.