Prodej rodinného domu, Břežany, 127 m2 (ID: 1984940)

Břežany

Cena na vyžádání
/za nemovitost
dohodou, cena k jednání
Získejte výhodnou HYPOTÉKU Chci hypotéku

Parametry domu

AdresaBřežany
ID53368
StavbaCihlová
Stav objektuNovostavba
Druh objektuRohový
Užitná plocha127 m2
Plocha pozemku429 m2
Třída energetické náročnostiB - Velmi úsporná
Ukazatel energetické náročnosti68 kWh/m2 za rok
Elektřina230V
PlynPlynovod
OdpadVeřejná kanalizace
KomunikaceDlážděná
TelekomunikaceInternet
DopravaAutobus
VodaVodovod
Topné tělesoPodlahové vytápění
Zdroj topeníPlynový kondenzační kotel
Zdroj teplé vodyPlynový kondenzační kotel
Garáž
Bezbarierový přístup
Parkování

Origo partneři v Břežanech

Popis

Exkluzivní nabídka vydařené novostavby rodinného domu 5+kk s garáží a zahradou v Břežanech, okres Znojmo.
Jedná se o polorohový dům v klidné ulici s výhledem na jihozápad, který je právě dokončen a během března 2026 bude zkolaudován. K dispozici je prostorná garáž pro 1 vůz a dále 2 parkovací místa před garáží. Dům má velmi promyšlenou a praktickou dispozici s velmi citlivě vybranými kvalitními materiály a vkusně zvolenými barvami podlah, dveří, oken a drobných zařizovacích předmětů. Tento dům vyhovuje moderním standardům dnešního rodinného bydlení.

Dům disponuje energetickou třídou B, což zaručuje nízké provozní náklady. Je zcela dokončen, jen předzahrádka a zahrada již čekají na realizaci novým majitelem.

Celková plocha pozemku 429 m2, zahrada cca 350 m2, užitná plocha domu 127 m2.

Dům je zděný (ytong) se sedlovou střechou, nepodsklepený a zateplený.
Vybavení: plastová okna s trojskly, podlahové topení v celém domě včetně garáže, plynový kondenzační kotel zn. IMMERGAS, bojler 160 l, fotovoltaika na ohřev vody, příprava na předokenní žaluzie a klimatizaci, videotelefon, rekuperace vzduchu, sanitární výbava a zařizovací předměty zn. Ravak, Gelco a Hansgrohe, příprava na kabelový internet.

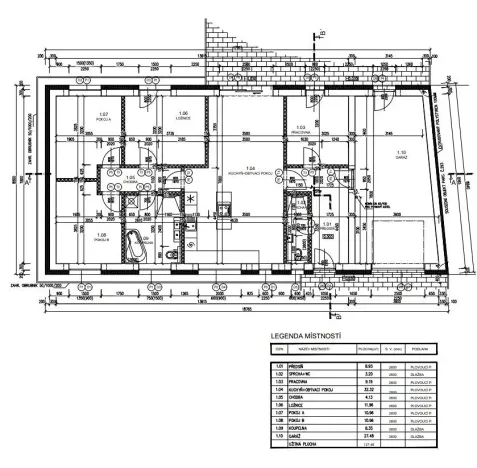
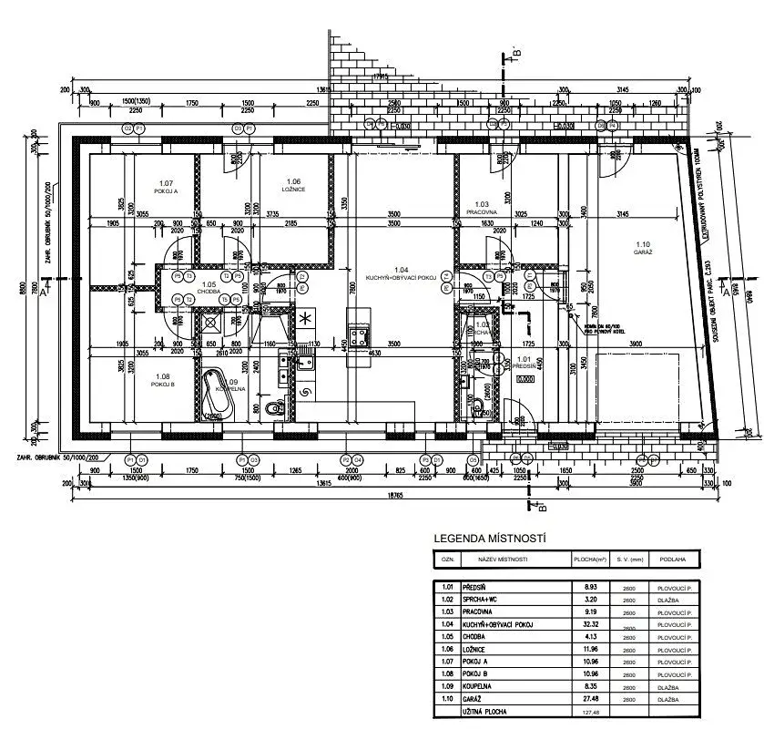
Výměry místností:
garáž s vraty na dálkové ovládání 27,48 m2 s umyvadlem/výlevkou a přípravou na pračku a sušičku, předsíň 8,93 m2, 1. koupelna s WC, umyvadlem a sprchovým koutem 3,20 m2, pracovna/šatna 9,19 m2, obývací pokoj s kuchyňským koutem 32,32 m2, chodba 4,13 m2, ložnice 11,96 m2, pokoj 10,96 m2, pokoj 10,96 m2, 2. koupelna s WC, vanou, sprchovým koutem a dvojumyvadlem 8,35 m2.
Zahrada s budoucí terasou je přístupná z garáže, z ložnice i z obývacího pokoje.

Veškeré IS – elektřina 220/380V, obecní vodovod, plyn, kanalizace.
Dešťová voda je svedena do retenční nádrže na zahradě (možnost zalévání).
Dům je k dispozici ihned, není zatížen žádným zástavním právem, možnost financovat hypotečním úvěrem.
V případě koupě domu na firmu, možný odpočet DPH.

Nabízíme Vám šanci získat svůj vlastní útulný domov, který se může stát místem plným klidu, lásky a pohody.
Buďte rychlí, tato příležitost nemusí trvat dlouho!

Dostupnost z Břežan do Brna je 30 min. autem, 25 min. do Znojma a 20 min od Městys Pohořelice.
V obci je veškerá občanská vybavenost - obecní úřad, pošta, mateřská školka, základní škola, restaurace, cukrárna, obchod - potraviny, rybník. Bližší informace v RK.

Makléř

Máte zájem o tento dům?

Tímto, v souladu s nařízením Evropského parlamentu a Rady (EU) 2016/679, v platném znění, prohlašuji, že mi je alespoň 16 let a uděluji tak svůj souhlas se zpracováním zadaných údajů (jméno, telefon, e-mail, ip adresa) společnosti B3 Technology, s.r.o., IČ: 07330600, se sídlem Novostavby 126/23, 435 11 Lom (správce dat), za účelem předání dotazu z tohoto formuláře Vámi vybranému inzerentovi a zpětného kontaktování mé osoby. Osobní údaje bude správce zpracovávat manuálně i automaticky přímo prostřednictvím svých zaměstnanců. Informace předané tímto formulářem budou uloženy v databázi správce maximálně po dobu 10 let. Odvolání souhlasu s uložením a zpracováním poskytnutých dat lze e-mailem na info@origo-reality.cz. V případě podezření na neoprávněné použití Vámi poskytnutých údajů máte právo předat podnět k šetření Úřadu pro ochranu osobních údajů. Více informací
Chystáte se prodat nemovitost?
Pomůžeme Vám!

Přihlášení k odběru

Nenechte si ujít nejnovější nabídky prodeje rodinných domů v Břežanech (okr. Znojmo).