Prodej rodinného domu, Bohutice, 248 m2

Bohutice

Cena na vyžádání
/za nemovitost
cena k jednání, včetně provize, včetně právního servisu
Získejte výhodnou HYPOTÉKU Chci hypotéku

Parametry domu

AdresaBohutice
ID02528
StavbaSmíšená
Stav objektuDobrý
VybavenoAno
Typ objektuPatrový
Druh objektuSamostatný
Lokalita objektuKlidná část obce
Užitná plocha248 m2
Podlahová plocha275 m2
Plocha pozemku438 m2
Třída energetické náročnostiG - Mimořádně nehospodárná
Elektřina230V, 400V
PlynPlynovod
OdpadVeřejná kanalizace
TopeníÚstřední plynové, Ústřední tuhá paliva, Jiné
KomunikaceAsfaltová
DopravaVlak, Silnice, Autobus
VodaVodovod
Garáž
Sklep
Lodžie
Výtah

Origo partneři v Bohuticích

Popis

Nabízím k prodeji prostorný dům s garáží, zahradou se samostatným vjezdem a zastřešenou terasou. Dům se nachází v klidné části obce Bohutice a poskytuje skvělé rodinné bydlení s dostatkem prostoru uvnitř i venku.
Díky dispozici 6+1 a vnitřní ploše přes 300 m² nabízí nemovitost pohodlné zázemí i pro vícečlennou rodinu. Velkým benefitem je modernizované 1. nadzemní podlaží, kde vznikl svěží a příjemně sjednocený interiér — nové podlahy, dveře, koupelna i kuchyně.
Západní orientace domu zaručuje příjemné odpolední světlo a klidnou atmosféru při posezení na terase nebo dvou lodžiích.
________________________________________
Hlavní přednosti
• velkorysý prostor – tři podlaží, celkem cca 309 m²
• modernizovaný interiér v 1. NP – kuchyně, koupelna, podlahy, dveře
• zahrada s dostatkem soukromí a vlastním vjezdem – ideální pro rodinné posezení i parkování
• zastřešená terasa na zahradě
• dům je kompletně podsklepený – spousta úložného prostoru, dílna i technické zázemí
• dvě lodžie
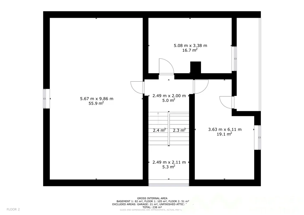
• možnost dalšího rozšíření obytné plochy v podkroví (půda 55,9 m²)
________________________________________
Vnitřní uspořádání
Suterén – praktický prostor pro vše, co doma potřebujete
Kompletně podsklepený dům nabízí několik sklepů, dílnu, technické zázemí i garáž. Ideální pro skladování, domácí výrobu, sportovní vybavení nebo hobby.
1. nadzemní podlaží – modernizované rodinné centrum
Hlavní obytná část po rekonstrukci:
prostorný obývací pokoj se vstupem na lodžii, světlá kuchyně, tři neprůchozí obytné místnosti, koupelna s bezbariérovým sprchovým koutem.
Prostor je praktický, útulný a připravený k okamžitému užívání.
Podkroví – klidná zóna
Dvě samostatné místnosti, lodžie s výhledem do zahrad a na Pálavu, velká půda vhodná pro další obytnou vestavbu, ateliér nebo domácí pracovnu.
________________________________________
Exteriér
Součástí nemovitosti je zahrada s vlastním vjezdem a dostatkem soukromí, která poskytuje příjemnou relaxační atmosféru.
Velkým bonusem je zastřešená terasa — ideální pro rodinná setkání, grilování, odpočinek.

Pokud hledáte dům, který nabízí opravdový prostor, modernizovaný interiér, příjemnou zahradu a klidné místo pro život, tato nemovitost v Bohuticích je výbornou volbou. Kombinace praktických a komfortních prvků vytváří ideální podmínky pro pohodové rodinné bydlení.

Makléř

Máte zájem o tento dům?

Tímto, v souladu s nařízením Evropského parlamentu a Rady (EU) 2016/679, v platném znění, prohlašuji, že mi je alespoň 16 let a uděluji tak svůj souhlas se zpracováním zadaných údajů (jméno, telefon, e-mail, ip adresa) společnosti B3 Technology, s.r.o., IČ: 07330600, se sídlem Novostavby 126/23, 435 11 Lom (správce dat), za účelem předání dotazu z tohoto formuláře Vámi vybranému inzerentovi a zpětného kontaktování mé osoby. Osobní údaje bude správce zpracovávat manuálně i automaticky přímo prostřednictvím svých zaměstnanců. Informace předané tímto formulářem budou uloženy v databázi správce maximálně po dobu 10 let. Odvolání souhlasu s uložením a zpracováním poskytnutých dat lze e-mailem na info@origo-reality.cz. V případě podezření na neoprávněné použití Vámi poskytnutých údajů máte právo předat podnět k šetření Úřadu pro ochranu osobních údajů. Více informací
Chystáte se prodat nemovitost?
Pomůžeme Vám!

Přihlášení k odběru

Nenechte si ujít nejnovější nabídky prodeje rodinných domů v Bohuticích.