Prodej domu na klíč, Zahnašovice, 100 m2

Zahnašovice

Cena na vyžádání
/za nemovitost
cena u makléře
Získejte výhodnou HYPOTÉKU Chci hypotéku

Parametry domu

AdresaZahnašovice
ID223-NP02990
StavbaCihlová
Stav objektuNovostavba
Typ objektuPatrový
Druh objektuŘadový
Lokalita objektuKlidná část obce
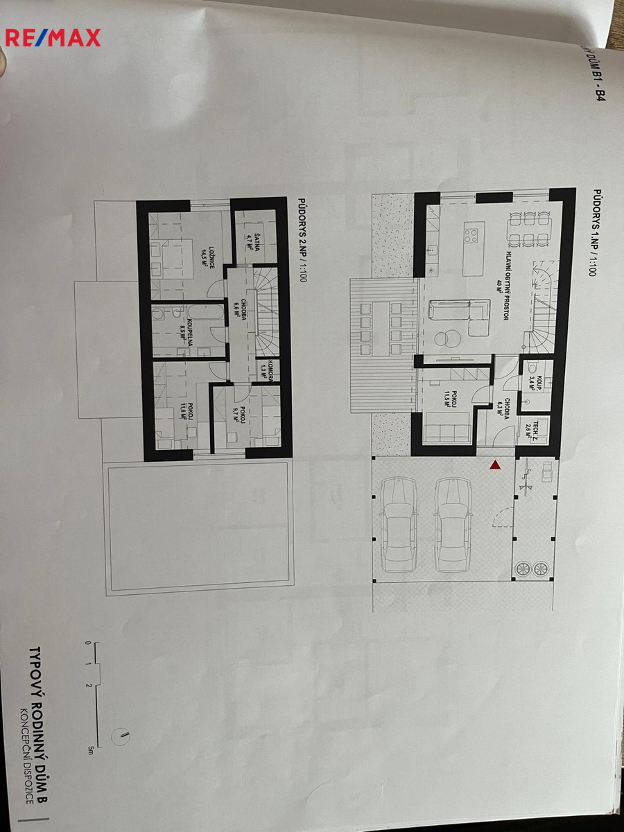
Užitná plocha100 m2
Plocha pozemku200 m2
Třída energetické náročnostiB - Velmi úsporná
Elektřina120V, 230V
OdpadVeřejná kanalizace
VodaVodovod
Garáž
Převod do OV
Parkování

Origo partneři v Zahnašovicích

Popis

Nabízíme k prodeji moderní novostavby rodinných domů na klíč v moderním rezidenčním projektu komorní zástavby samostatných a řadových domů v klidné lokalitě obce.
Zahnašovice.

Projekt spojuje nadčasovou architekturu, funkční dispozici a dostatek soukromí. Domy jsou navrženy s důrazem na komfortní rodinné bydlení a efektivní využití prostoru.

Dispozice domu dle domluvy. Jedná se o přímého developera, jenž plánuje zahájit stavbu na podzim. Z toho důvodu je možná individuální konzultace výstavby. Dům bude prodáván včetně pozemku.
Hlavní výhody:

✔ moderní architektura
✔ vlastní zahrada
✔ parkování na pozemku
✔ energeticky úsporné řešení
✔ klidná lokalita s dobrou dostupností

Cena: 10.000.000 RD včetně pozemku, Mezonet-řadovka- 10.000 včetně pozemku.


Projekt je ideální pro rodiny hledající kombinaci moderního bydlení, soukromí a příjemného okolí.

Pro více informací o standardech, ceně a možnostech financování mě neváhejte kontaktovat

Makléř

Máte zájem o tento dům?

Tímto, v souladu s nařízením Evropského parlamentu a Rady (EU) 2016/679, v platném znění, prohlašuji, že mi je alespoň 16 let a uděluji tak svůj souhlas se zpracováním zadaných údajů (jméno, telefon, e-mail, ip adresa) společnosti B3 Technology, s.r.o., IČ: 07330600, se sídlem Novostavby 126/23, 435 11 Lom (správce dat), za účelem předání dotazu z tohoto formuláře Vámi vybranému inzerentovi a zpětného kontaktování mé osoby. Osobní údaje bude správce zpracovávat manuálně i automaticky přímo prostřednictvím svých zaměstnanců. Informace předané tímto formulářem budou uloženy v databázi správce maximálně po dobu 10 let. Odvolání souhlasu s uložením a zpracováním poskytnutých dat lze e-mailem na info@origo-reality.cz. V případě podezření na neoprávněné použití Vámi poskytnutých údajů máte právo předat podnět k šetření Úřadu pro ochranu osobních údajů. Více informací
Chystáte se prodat nemovitost?
Pomůžeme Vám!

Přihlášení k odběru

Nenechte si ujít nejnovější nabídky prodeje domů na klíč v Zahnašovicích.