Prodej bytu 3+kk, Holubice, 67 m2

Holubice

8 400 000 Kč
/za nemovitost
včetně provize, včetně právního servisu
Hypotéka od 37 543 Kč /měs. Chci hypotéku

Parametry bytu

AdresaHolubice
ID110054
StavbaCihlová
Stav objektuVelmi dobrý
Patro3. z 3
Lokalita objektuKlidná část obce
VlastnictvíOsobní
Užitná plocha67 m2
Podlahová plocha85 m2
Třída energetické náročnostiB - Velmi úsporná
Ukazatel energetické náročnosti61 kWh/m2 za rok
Elektřina230V
PlynPlynovod
OdpadVeřejná kanalizace
TelekomunikaceTelefon
DopravaDálnice, Silnice, Autobus
VodaVodovod
Topné tělesoRadiátory
Zdroj topeníCentrální dálkové
Zdroj teplé vodyCentrální dálkový ohřev
Sklep
Lodžie
Výtah
Parkování

Origo partneři v Holubicích

Popis

Hledáte bydlení, které spojuje klid venkova s výbornou dostupností do Brna?
Právě pro vás nabízíme ke koupi světlý a velmi prakticky řešený byt o dispozici 3+kk v obci Holubice.

Byt se nachází ve 3 podlažním bytovém domě a nabízí komfortní prostor jak pro pár, tak pro rodinu.

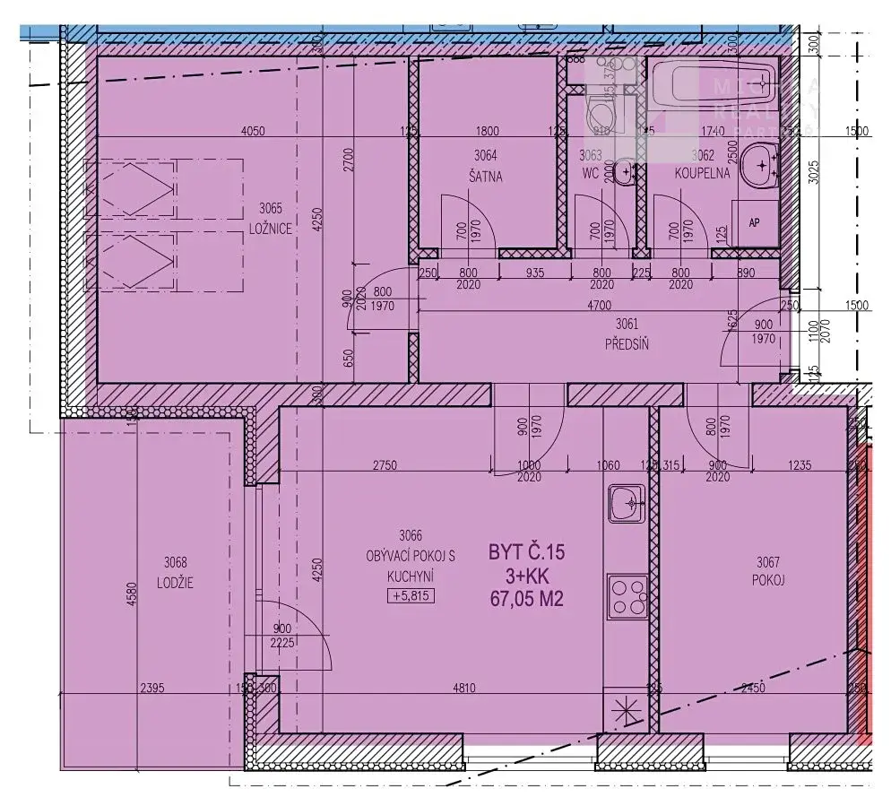
Dispozice a výměry:

Celková podlahová plocha bytu: 67 m²

+ Lodžie 11,3 m²
+ Sklep 6,3 m²
+ 2 vyhrazená parkovací stání před domem (v ceně)

Jednotlivé místnosti:
Předsíň – 7,77 m²
Koupelna – 4,35 m²
Samostatné WC – 1,82 m²
Šatna – 4,50 m²
Ložnice – 17,21 m²
Obývací pokoj s kuchyní – 20,99 m²
Pokoj – 10,41 m²

Dispozice je velmi praktická – nabízí samostatnou šatnu, oddělené WC a dostatečně prostorný obývací prostor s přímým vstupem na lodžii.

Hlavní benefity bytu:
- Kuchyňská linka na míru včetně spotřebičů
- Klimatizace pro maximální komfort v letních měsících
- Nadstandardní lodžie o velikosti 11,3 m²
- Lodžie vybavena pergolou s elektronicky zatahovatelnými roletami
- Orientace lodžie do volného prostranství
- Prostorný sklep (6,3 m²)
- 2 vlastní parkovací místa přímo před domem

Lodžie je skutečným prodloužením obytného prostoru – ideální místo pro ranní kávu, rodinné posezení i večerní relax.

Lokalita – Holubice:
Obec Holubice nabízí klidné rodinné bydlení s výbornou dostupností do Brna. V obci je základní občanská vybavenost a okolí nabízí dostatek zeleně i možností pro volnočasové aktivity.

Tento byt představuje ideální kombinaci:
- moderního standardu,
- nadstandardní venkovní plochy,
- praktické dispozice,
- bezstarostného parkování.
Pokud hledáte komfortní bydlení bez nutnosti dalších investic, tento byt je pro Vás připraven.

V případě bližších informací nebo dohodnutí termínu prohlídky neváhejte kontaktovat realitního makléře - Lukáš Michna
MICHNA REALITY & PARTNEŘI, s.r.o.

Makléř

Máte zájem o tento byt?

Tímto, v souladu s nařízením Evropského parlamentu a Rady (EU) 2016/679, v platném znění, prohlašuji, že mi je alespoň 16 let a uděluji tak svůj souhlas se zpracováním zadaných údajů (jméno, telefon, e-mail, ip adresa) společnosti B3 Technology, s.r.o., IČ: 07330600, se sídlem Novostavby 126/23, 435 11 Lom (správce dat), za účelem předání dotazu z tohoto formuláře Vámi vybranému inzerentovi a zpětného kontaktování mé osoby. Osobní údaje bude správce zpracovávat manuálně i automaticky přímo prostřednictvím svých zaměstnanců. Informace předané tímto formulářem budou uloženy v databázi správce maximálně po dobu 10 let. Odvolání souhlasu s uložením a zpracováním poskytnutých dat lze e-mailem na info@origo-reality.cz. V případě podezření na neoprávněné použití Vámi poskytnutých údajů máte právo předat podnět k šetření Úřadu pro ochranu osobních údajů. Více informací
Chystáte se prodat nemovitost?
Pomůžeme Vám!

Přihlášení k odběru

Nenechte si ujít nejnovější nabídky prodeje bytů 3+kk v Holubicích (okr. Vyškov).