Pronájem skladu, Plzeň, 301 m2

Plzeň

Cena na vyžádání
/za měsíc
info v RK, elektřina na nájemce, + provize RK
Získejte výhodnou HYPOTÉKU Chci hypotéku

Parametry nemovitosti

AdresaPlzeň
ID00203
StavbaCihlová
Stav objektuDobrý
Patro1.
VybavenoNe
Typ objektuPřízemní
Druh objektuSamostatný
Lokalita objektuCentrum obce
Užitná plocha301 m2
Zastavěná plocha301 m2
Podlahová plocha381 m2
Plocha pozemku301 m2
Třída energetické náročnostiG - Mimořádně nehospodárná
Elektřina230V
OdpadVeřejná kanalizace
KomunikaceBetonová
DopravaSilnice

Origo partneři v Plzni

Stěhovací služby

Pojištění a finance

Popis

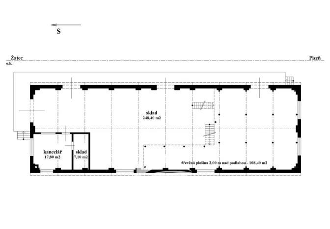
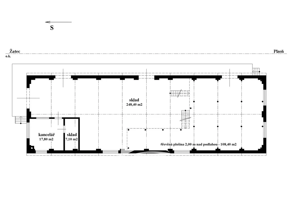
Nabízíme k pronájmu zděnou budovu blízko Jateční ulice v Plzni. Budova prošla částečnou rekonstrukcí, nová elektrika s velkým množstvím zásuvek, nové osvětlení, nová lepenka na střeše, vymalování, apod. Nabízí zděnou kancelář ( 17,8 m² ), sklad ( 7,1 m² ) a kromě skladové plochy na betonové podlaze ( 248,4 m² ) je zde možné jí navýšit v 1,5 m výšky o poschodí až 108,4 m² velké . Výška prostoru je 3,8 m. Vstupní vrata z rampy mají rozměry : výška 2,4 m a šířka 2,6 m . podél budovy s rampou je železniční vlečka. Kanalizace a voda v blízkosti objektu. Vhodné pro sklad nebo lehkou výrobu. Volné ihned, volejte makléři nebo napište na odpovědní formulář u inzerce.

Makléř

Máte zájem o tuto nemovistost?

Tímto, v souladu s nařízením Evropského parlamentu a Rady (EU) 2016/679, v platném znění, prohlašuji, že mi je alespoň 16 let a uděluji tak svůj souhlas se zpracováním zadaných údajů (jméno, telefon, e-mail, ip adresa) společnosti B3 Technology, s.r.o., IČ: 07330600, se sídlem Novostavby 126/23, 435 11 Lom (správce dat), za účelem předání dotazu z tohoto formuláře Vámi vybranému inzerentovi a zpětného kontaktování mé osoby. Osobní údaje bude správce zpracovávat manuálně i automaticky přímo prostřednictvím svých zaměstnanců. Informace předané tímto formulářem budou uloženy v databázi správce maximálně po dobu 10 let. Odvolání souhlasu s uložením a zpracováním poskytnutých dat lze e-mailem na info@origo-reality.cz. V případě podezření na neoprávněné použití Vámi poskytnutých údajů máte právo předat podnět k šetření Úřadu pro ochranu osobních údajů. Více informací
Chystáte se prodat nemovitost?
Pomůžeme Vám!
Theleadway banner

Přihlášení k odběru

Nenechte si ujít nejnovější nabídky pronájmu skladů v Plzni.