Prodej bytu 3+kk, České Budějovice, K Šindlovým Dvorům, 73 m2

K Šindlovým Dvorům, České Budějovice 2

8 170 000 Kč
/za nemovitost
Hypotéka od 36 515 Kč /měs. Chci hypotéku

Parametry bytu

AdresaK Šindlovým Dvorům, České Budějovice 2
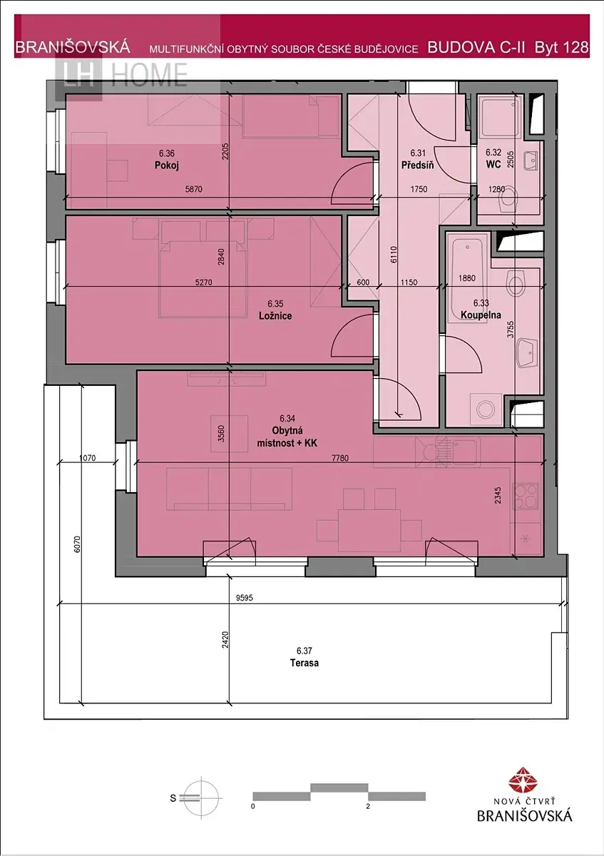
IDC-II 128
StavbaSmíšená
Stav objektuNovostavba
Patro6. z 6
VybavenoNe
Lokalita objektuKlidná část obce
VlastnictvíOsobní
Užitná plocha73 m2
Třída energetické náročnostiA - Mimořádně úsporná
Elektřina400V
OdpadVeřejná kanalizace
KomunikaceAsfaltová
TelekomunikaceInternet
DopravaVlak, Dálnice, Silnice, MHD, Autobus
VodaVodovod, Retenční nádrž na dešt’ovou vodu
Topné tělesoRadiátory
Zdroj topeníCentrální dálkové, Pára s výměníkem
Balkon
Výtah
Bezbarierový přístup

Origo partneři v Českých Budějovicích

Výkup a prodej starého nábytku

Popis

Ihned k nastěhování – prodej přímo od developera

V projektu Nová čtvrť Branišovská v Českých Budějovicích nabízíme k prodeji moderní byt 3+kk o podlahové ploše 73,8 m² s prostornou terasou o velikosti 27 m².
Byt se nachází v posledním, 6. patře novostavby, což zajišťuje dostatek soukromí i příjemné výhledy. Velkorysá terasa přirozeně rozšiřuje obytný prostor bytu a nabízí ideální místo pro odpočinek, ranní kávu nebo večerní posezení s rodinou a přáteli.

Standard bytu
• vinylové podlahy
• keramické obklady a dlažba v koupelně a na WC
• prostorný sprchový kout
• koupelnová skříňka s umyvadlem a zrcadlem
• topný žebřík
• závěsná toaleta
• bílé interiérové dveře s obložkami
• videotelefon v každém bytě
• předokenní žaluzie

Nízké provozní náklady zajišťuje energetická náročnost budovy třídy A.

Lokalita – Nová čtvrť Branišovská
Projekt se nachází v příjemném a klidném prostředí s dostatkem zeleně a zároveň nabízí skvělou dostupnost do centra Českých Budějovic.
Výhodou je také blízkost Jihočeské univerzity, díky které je byt vhodný i jako investice.
V okolí se nachází kompletní občanská vybavenost.

Bytový dům C
Součást moderního rezidenčního projektu s 136 bezbariérovými byty.
Každý byt disponuje balkonem, lodžií nebo terasou.

Možnost dokoupení:
• garážového stání
• sklepní kóje

K nastěhování: ihned

V případě zájmu nás neváhejte kontaktovat. Rádi vám poskytneme více informací o bytě, možnostech financování i aktuální nabídce jednotek v projektu.

Makléř

Máte zájem o tento byt?

Tímto, v souladu s nařízením Evropského parlamentu a Rady (EU) 2016/679, v platném znění, prohlašuji, že mi je alespoň 16 let a uděluji tak svůj souhlas se zpracováním zadaných údajů (jméno, telefon, e-mail, ip adresa) společnosti B3 Technology, s.r.o., IČ: 07330600, se sídlem Novostavby 126/23, 435 11 Lom (správce dat), za účelem předání dotazu z tohoto formuláře Vámi vybranému inzerentovi a zpětného kontaktování mé osoby. Osobní údaje bude správce zpracovávat manuálně i automaticky přímo prostřednictvím svých zaměstnanců. Informace předané tímto formulářem budou uloženy v databázi správce maximálně po dobu 10 let. Odvolání souhlasu s uložením a zpracováním poskytnutých dat lze e-mailem na info@origo-reality.cz. V případě podezření na neoprávněné použití Vámi poskytnutých údajů máte právo předat podnět k šetření Úřadu pro ochranu osobních údajů. Více informací
Chystáte se prodat nemovitost?
Pomůžeme Vám!

Přihlášení k odběru

Nenechte si ujít nejnovější nabídky prodeje bytů 3+kk v Českých Budějovicích.