Prodej bytu 3+kk, Ostrava, Nádražní, 101 m2

Nádražní, Moravská Ostrava a Přívoz

Cena na vyžádání
/za nemovitost
Informace u makléře
Získejte výhodnou HYPOTÉKU Chci hypotéku

Parametry bytu

AdresaNádražní, Moravská Ostrava a Přívoz
ID0034
StavbaSmíšená
Stav objektuPo rekonstrukci
Patro2. z 6
VybavenoNe
Lokalita objektuCentrum obce
VlastnictvíOsobní
Užitná plocha101 m2
Podlahová plocha101 m2
Třída energetické náročnostiG - Mimořádně nehospodárná
Elektřina230V
PlynPlynovod
OdpadVeřejná kanalizace
TelekomunikaceKabelová televize, Kabelové rozvody
DopravaMHD
VodaVodovod

Origo partneři v Ostravě

Popis

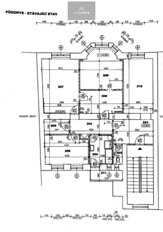
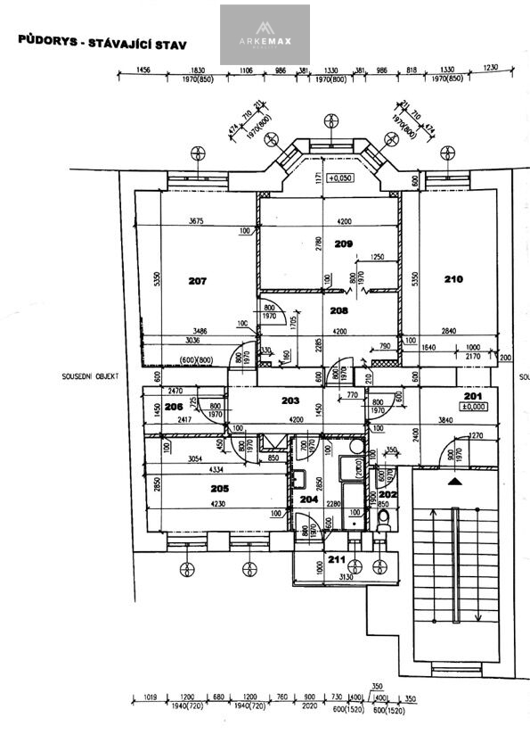
Nabízíme k prodeji byt o velikosti 3 + kk, nacházející se na adrese Ulice Nádražní, v části obce Moravská Ostrava. Tato nemovitost nabízí nejenom potenciál investice, ale také jedinečnou příležitost k získání atraktivního bydlení nebo možnosti pronájmu v jedné z nejžádanějších lokalit centra Ostravy. Byt je v osobním vlastnictví a nachází se v cihlovém domě staré části města. S celkovou plochou 101m² a po odstranění starých příček, máte možnost přizpůsobit si prostor dle vlastních představ. Okna s novými trojskly zajišťují dostatečné osvětlení a tepelný komfort. Díky druhému podlaží z celkových šesti je zde dostatek soukromí. Na každém podlaží se vždy nachází jen jedna bytová jednotka. Dům je vybaven veškerými potřebnými sítěmi včetně kabelové televize a kabelových rozvodů. Odpad je řešen přes kanalizaci, přívod vody zajišťuje dálkový vodovod a přívod plynu je prostřednictvím plynovodu. Elektřina je standardně 230 V. Dostupná doprava ve formě MHD je zde samozřejmostí, což zvyšuje atraktivitu nemovitosti pro širokou škálu potenciálních nájemců. Tato nemovitost nabízí nejenom výhodnou polohu v centru Ostravy, ale také potenciál k dlouhodobému investování s výhledem na návratnost. Jestliže hledáte zajímavou investiční příležitost s možností pronájmu či vlastního bydlení, tento byt může být právě pro vás. V případě zájmu o prohlídku nebo bližší informace nás neváhejte kontaktovat.

Makléř

Máte zájem o tento byt?

Tímto, v souladu s nařízením Evropského parlamentu a Rady (EU) 2016/679, v platném znění, prohlašuji, že mi je alespoň 16 let a uděluji tak svůj souhlas se zpracováním zadaných údajů (jméno, telefon, e-mail, ip adresa) společnosti B3 Technology, s.r.o., IČ: 07330600, se sídlem Novostavby 126/23, 435 11 Lom (správce dat), za účelem předání dotazu z tohoto formuláře Vámi vybranému inzerentovi a zpětného kontaktování mé osoby. Osobní údaje bude správce zpracovávat manuálně i automaticky přímo prostřednictvím svých zaměstnanců. Informace předané tímto formulářem budou uloženy v databázi správce maximálně po dobu 10 let. Odvolání souhlasu s uložením a zpracováním poskytnutých dat lze e-mailem na info@origo-reality.cz. V případě podezření na neoprávněné použití Vámi poskytnutých údajů máte právo předat podnět k šetření Úřadu pro ochranu osobních údajů. Více informací
Chystáte se prodat nemovitost?
Pomůžeme Vám!

Přihlášení k odběru

Nenechte si ujít nejnovější nabídky prodeje bytů 3+kk v Ostravě.