Prodej komerční nemovitosti, Chlistov, 426 m2

Chlistov, okres plzeňský kraj

1 590 000 Kč
/za nemovitost
Hypotéka od 7 106 Kč /měs. Chci hypotéku

Parametry nemovitosti

AdresaChlistov, okres plzeňský kraj
ID974856
StavbaCihlová
Stav objektuPřed rekonstrukcí
VybavenoNe
Typ objektuPatrový
VlastnictvíOsobní
Užitná plocha426 m2
Zastavěná plocha268 m2
Plocha pozemku812 m2
Plocha nebytových prostor107 m2
Třída energetické náročnostiG - Mimořádně nehospodárná
Elektřina230V
TopeníÚstřední tuhá paliva
DopravaSilnice, Autobus
VodaVodovod
Sklep

Origo partneři v Chlistově

Podlahy

Stěhovací služby

Popis

Představuji Vám k prodeji jedinečnou nemovitost a zároveň INVESTIČNÍ
PŘÍLEŽITOST – rodinný dům s podnikatelským potenciálem v turisticky oblíbeném Chlistově, v okrese Klatovy.

Ucelenou prezentaci domu můžete shlédnout na odkaze, který je součástí video prohlídky.

Základní parametry:
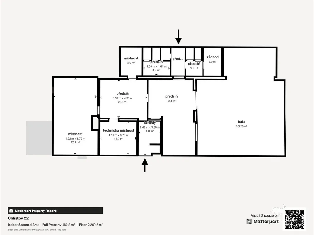
> 1. NP – 254 m² užitné plochy (v minulosti využíváno jako hospoda, sál s pódiem, toalety pro muže/ženy)
> Podkroví – 172 m² (2 pokoje, možnost rozšíření)
> Sklep – 28,6 m²
> Pozemek 812 m²
> Napojeno na vodovod a elektřinu (400 V) nutná aktualizace
> Odpad: nutno řešit ČOV/septik
> Energetický štítek není v tuto chvíli zpracován, proto je uvedena energetická třída G

Možnosti využití:
> Zřízení až 3 samostatných bytových jednotek (návrh půdorysu k dispozici)
> Provozovna, menší výroba nerušící okolí (územní plán umožňuje)
> Kombinace bydlení a podnikání (např. obchod, gastro, služby)

Výhody lokality:
> Centrum obce (obecní úřad, zastávka, moderní hřiště vše v pěší dostupnosti)
> Přírodní koupaliště, rybník, louky a lesy v okolí – turisticky atraktivní oblast
> Dojezd do Klatov cca 10 minut (kompletní občanská vybavenost)
> Oblíbená destinací turistů i chatařů, v lokalitě je kolem 80 chat celoroční návštěvnost

Územní plán určení plochy:
Plochy smíšené obytné – venkovské (SV)
1) Plochy jsou určeny pro bydlení venkovského charakteru spojené s hospodářským využitím pozemků a objektů
2) V plochách je přípustné umísťovat:
    obytné nízkopodlažní objekty
    garáže a další vedlejší objekty pro obsluhu tohoto území
    zařízení občanské vybavenosti a sportu
    veřejná prostranství
    zařízení dopravní a technické infrastruktury pro obsluhu těchto ploch
    pozemky pro individuální rekreaci splňující podmínky § 20, odst. 4 a 5 vyhlášky č. 501/2006 Sb.

Pokud hledáte spojení domova a podnikání v jednom, v obci obklopené přírodou a v dobré dojezdovosti do Klatov, pak mi zavolejte nebo napište, domluvíme si prohlídku.

Pro koupi domu Vám zajistím kompletní realitní a právní servis a v případě potřeby i výhodné financování hypotečním úvěrem.

Uvedené výměry jsou orientační.

Makléř

Máte zájem o tuto nemovistost?

Tímto, v souladu s nařízením Evropského parlamentu a Rady (EU) 2016/679, v platném znění, prohlašuji, že mi je alespoň 16 let a uděluji tak svůj souhlas se zpracováním zadaných údajů (jméno, telefon, e-mail, ip adresa) společnosti B3 Technology, s.r.o., IČ: 07330600, se sídlem Novostavby 126/23, 435 11 Lom (správce dat), za účelem předání dotazu z tohoto formuláře Vámi vybranému inzerentovi a zpětného kontaktování mé osoby. Osobní údaje bude správce zpracovávat manuálně i automaticky přímo prostřednictvím svých zaměstnanců. Informace předané tímto formulářem budou uloženy v databázi správce maximálně po dobu 10 let. Odvolání souhlasu s uložením a zpracováním poskytnutých dat lze e-mailem na info@origo-reality.cz. V případě podezření na neoprávněné použití Vámi poskytnutých údajů máte právo předat podnět k šetření Úřadu pro ochranu osobních údajů. Více informací
Chystáte se prodat nemovitost?
Pomůžeme Vám!

Přihlášení k odběru

Nenechte si ujít nejnovější nabídky prodeje komerčních nemovitostí v Chlistově (okr. Klatovy).

Podobné nabídky