Prodej skladu, Řetůvka, 95 m2

Řetůvka

2 197 000 Kč
/za nemovitost
včetně právních služeb, úschovy a provize RK, včetně právního servisu
Hypotéka od 9 819 Kč /měs. Chci hypotéku

Parametry nemovitosti

AdresaŘetůvka
ID00162
StavbaSmíšená
Stav objektuDobrý
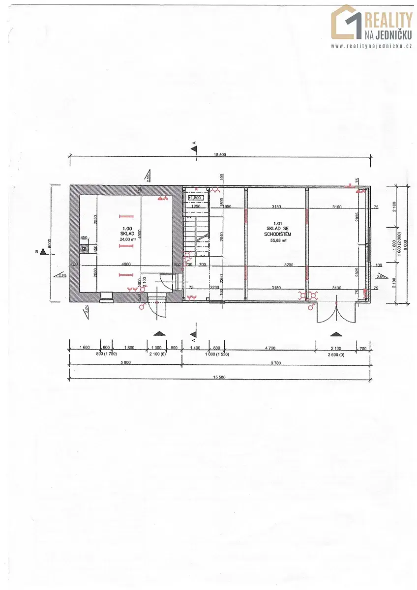
Užitná plocha95 m2
Třída energetické náročnostiG - Mimořádně nehospodárná
Elektřina230V, 400V
KomunikaceAsfaltová, Neupravená
DopravaSilnice, Autobus
Topné tělesoInfrapanel

Origo partneři v Řetůvce

Popis

Nabízíme Vám skladový nebo dílenský prostor k prodeji v atraktivní lokalitě Řetůvka 132, Řetůvka. Nemovitost s užitnou plochou 95 m² se nachází v dobře udržované smíšené budově. Budova je z části vyzděna cihlou a kamenem a z větší části je tvořena PUR panely. Plášť tvoří PUR panely o síle 80 mm, střecha je tvořena PUR panely o síle 50 mm. Kovová konstrukce budovy je realizována sloupy 100mmx10mm a svářenými jeklovými profily o síle 80mmx80mm. Podlahu tvoří odizolovaný beton. Elektřina je zavedena nově. V podkroví byla zahájena realizace kanceláře, kam vedou masivní kovové schody a které chybí k dotažení pár kroků. Prostor je vytápěn masivním infrazářičem. Zadní zděná část přízemí objektu nabízí realizaci šatny ,sprchy a toalety, ke kterým je třeba dořešit přívod vody a odvod odpadních vod. Stav nemovitosti je velmi dobrý, což zajišťuje komfortní a bezpečné prostředí pro Vaše potřeby. Sklad nebo dílna disponuje dostatečným prostorem pro uskladnění Vašich výrobků nebo materiálů , drobnou výrobu a je ideální pro podnikatele hledající praktické a funkční řešení. Využijte této skvělé příležitosti a zajistěte si prostor pro své podnikání na skvělém místě. Nechte se okouzlit tímto skvělým skladovým a výrobním prostorem! Jakékoli další informace Vám rád sdělí a na prohlídky Vás zve realitní specialista Mgr. Radek Procházka

Makléř

Máte zájem o tuto nemovistost?

Tímto, v souladu s nařízením Evropského parlamentu a Rady (EU) 2016/679, v platném znění, prohlašuji, že mi je alespoň 16 let a uděluji tak svůj souhlas se zpracováním zadaných údajů (jméno, telefon, e-mail, ip adresa) společnosti B3 Technology, s.r.o., IČ: 07330600, se sídlem Novostavby 126/23, 435 11 Lom (správce dat), za účelem předání dotazu z tohoto formuláře Vámi vybranému inzerentovi a zpětného kontaktování mé osoby. Osobní údaje bude správce zpracovávat manuálně i automaticky přímo prostřednictvím svých zaměstnanců. Informace předané tímto formulářem budou uloženy v databázi správce maximálně po dobu 10 let. Odvolání souhlasu s uložením a zpracováním poskytnutých dat lze e-mailem na info@origo-reality.cz. V případě podezření na neoprávněné použití Vámi poskytnutých údajů máte právo předat podnět k šetření Úřadu pro ochranu osobních údajů. Více informací
Chystáte se prodat nemovitost?
Pomůžeme Vám!

Přihlášení k odběru

Nenechte si ujít nejnovější nabídky prodeje skladů v Řetůvce.