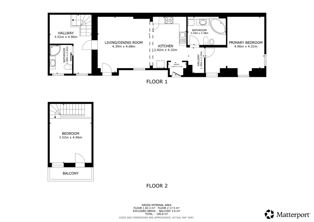
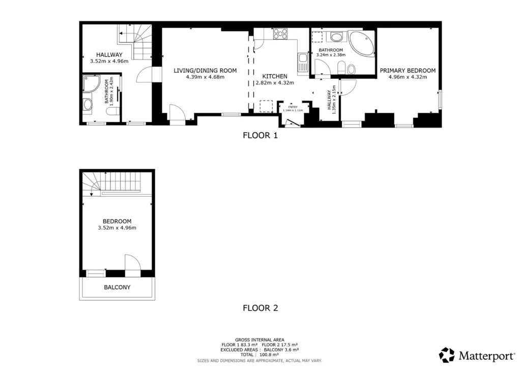
Prodej bytu 4+kk, Praha - Karlín, Sokolovská, 92 m2 (ID: 1967610)

Sokolovská, Praha 8

13 970 000 Kč
/za nemovitost
Hypotéka od 62 437 Kč /měs. Chci hypotéku

Parametry bytu

AdresaSokolovská, Praha 8
ID18875
StavbaSmíšená
Stav objektuVelmi dobrý
Patro1. z 4
VlastnictvíOsobní
Užitná plocha92 m2
Zastavěná plocha415 m2
Podlahová plocha92 m2
Třída energetické náročnostiD - Méně úsporná
Elektřina230V
PlynPlynovod
OdpadVeřejná kanalizace
KomunikaceDlážděná
TelekomunikaceTelefon, Internet
DopravaVlak, Dálnice, Silnice, MHD, Autobus
VodaVodovod
Balkon
Bezbarierový přístup

Origo partneři v Praze 8

Stěhovací služby

Výkup a prodej starého nábytku

Popis

V jedné z nejžádanějších částí Prahy – v samotném srdci Karlína – nabízíme výjimečný mezonetový byt 4+kk o celkové ploše 92,29 m² (včetně balkonu), situovaný v 1. a 2. nadzemním podlaží kompletně rekonstruovaného secesního činžovního domu.
Tady nejde jen o metry čtvereční.
Tady jde o atmosféru.
Byt je orientován do klidné dvorní části domu, mimo ruch ulice, což mu dodává téměř až překvapivé ticho a intimitu. Vstup do domu je z přední části, takže dvůr zůstává komorním prostorem s minimálním provozem – bezpečný, klidný, s možností krátkodobého parkování a po dohodě i pronájmu parkovacího stání.

Tento byt byl domovem umělců. A je to znát.
Interiér vznikal s citem, kreativitou a respektem k prostoru.
Ručně vyráběné mozaiky v kuchyni i na parapetech, práce se dřevem, krbová kamna, promyšlené detaily, které nepůsobí okázale, ale přirozeně. Velkorysá knihovna, chytré úložné prostory, světlo proudící do dvorního ticha – všechno dohromady vytváří harmonii, která se dnes hledá jen těžko.
Byt působí autenticky, živě a zároveň klidně.
Je to prostor, kde se tvoří, čte, hraje na piano, vaří s přáteli a večer sedí u krbových kamen.
Po dohodě je možné ponechat kompletní vybavení včetně piana – a převzít tak nejen byt, ale i jeho atmosféru.

Karlín není jen adresa. Je to komunita, energie, kombinace historie a moderního městského života.
Metro i tramvaj jsou dvě minuty chůze. Kavárny, restaurace, školy, školky, designové obchody i řeka s cyklostezkou – vše je doslova za rohem. Ráno běh podél Vltavy, dopoledne práce v centru, večer víno v oblíbeném bistru.
Zde bydlíte v centru dění, ale spíte v klidu dvora.

Dispozice bytu umožňuje stavební rozdělení na dvě jednotky 2+kk, což otevírá zajímavé investiční možnosti.
Díky lokalitě, dispozici i charakteru prostoru je byt ideální nejen pro rodinné bydlení, ale i pro krátkodobé či střednědobé pronajímání. Karlín dlouhodobě patří mezi nejžádanější pražské čtvrti jak mezi expaty, tak mezi turisty hledající autentické bydlení mimo hotelový standard.
Satelitní připojení, bezpečnostní kamerový systém v domě a bezproblémové SVJ bez dluhů jsou samozřejmostí.


Základní informace
4+kk, 92,29 m² včetně balkonu
osobní vlastnictví, možnost financování hypotékou
služby (4 osoby): 3 823 Kč
elektřina: 1 530 Kč
plyn: 2 260 Kč
dům po kompletní rekonstrukci
Tento byt není sterilní novostavba.
Je to prostor s příběhem. A ten může pokračovat.
Ozvěte se mi, rád Vám osobně představím Váš budoucí domov.

Makléř

Máte zájem o tento byt?

Tímto, v souladu s nařízením Evropského parlamentu a Rady (EU) 2016/679, v platném znění, prohlašuji, že mi je alespoň 16 let a uděluji tak svůj souhlas se zpracováním zadaných údajů (jméno, telefon, e-mail, ip adresa) společnosti B3 Technology, s.r.o., IČ: 07330600, se sídlem Novostavby 126/23, 435 11 Lom (správce dat), za účelem předání dotazu z tohoto formuláře Vámi vybranému inzerentovi a zpětného kontaktování mé osoby. Osobní údaje bude správce zpracovávat manuálně i automaticky přímo prostřednictvím svých zaměstnanců. Informace předané tímto formulářem budou uloženy v databázi správce maximálně po dobu 10 let. Odvolání souhlasu s uložením a zpracováním poskytnutých dat lze e-mailem na info@origo-reality.cz. V případě podezření na neoprávněné použití Vámi poskytnutých údajů máte právo předat podnět k šetření Úřadu pro ochranu osobních údajů. Více informací
Chystáte se prodat nemovitost?
Pomůžeme Vám!

Přihlášení k odběru

Nenechte si ujít nejnovější nabídky prodeje bytů 4+kk v Praze 8.