Molík reality

Prodej bytu 2+1, Litvínov, Vinohradská, 55 m2

Vinohradská, Horní Litvínov

2 450 000 Kč
/za nemovitost
Hypotéka od 10 950 Kč /měs. Chci hypotéku

Parametry bytu

AdresaVinohradská, Horní Litvínov
ID1240
StavbaCihlová
Stav objektuPo rekonstrukci
Patro3. z 4
VlastnictvíOsobní
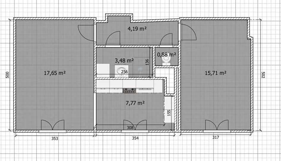
Užitná plocha55 m2
Podlahová plocha55 m2
Bezbarierový přístup

Origo partneři v Litvínově

Okna a dveře

Rekonstrukce

Popis

Nabízím k prodeji investiční byt o velikost 2+1 a výměře 55m2 v ulici Vinohradská 976, Litvínov. Jednotku vlastním 5 let, aktuálně obsazeno spolehlivým nájemníkem .

Byt se nachází ve třetím patře 4 podlažního domu. Dům, stejně jako okolní domy prošel v posledních letech revitalizací, tzn. zateplení, plastová okna, nová parkovací stání na zámkové dlažbě.

V kuchyni je kuchyňská linka s plynovým sporákem. Koupelna se sprchovým koutem, WC samostatné. Místností jsou světlé a prostorné, orientované na jih.

Dům se nachází v klidné lokalitě, 2 minuty chůze do obchodní zóny, kde nájemník nalezne kaufland, penny, dm, dr.max, action a další.

Byt přenechám za výnos 4,7 %. Přesná čísla dodám zájemci na vyžádání.

Nájemní smlouva je na dobu určitou, v případě zájmu lze tedy koupit také pro své vlastní bytové potřeby.

Neváhejte mě kontaktovat pro více informací..

Makléř

Máte zájem o tento byt?

Tímto, v souladu s nařízením Evropského parlamentu a Rady (EU) 2016/679, v platném znění, prohlašuji, že mi je alespoň 16 let a uděluji tak svůj souhlas se zpracováním zadaných údajů (jméno, telefon, e-mail, ip adresa) společnosti B3 Technology, s.r.o., IČ: 07330600, se sídlem Novostavby 126/23, 435 11 Lom (správce dat), za účelem předání dotazu z tohoto formuláře Vámi vybranému inzerentovi a zpětného kontaktování mé osoby. Osobní údaje bude správce zpracovávat manuálně i automaticky přímo prostřednictvím svých zaměstnanců. Informace předané tímto formulářem budou uloženy v databázi správce maximálně po dobu 10 let. Odvolání souhlasu s uložením a zpracováním poskytnutých dat lze e-mailem na info@origo-reality.cz. V případě podezření na neoprávněné použití Vámi poskytnutých údajů máte právo předat podnět k šetření Úřadu pro ochranu osobních údajů. Více informací
Chystáte se prodat nemovitost?
Pomůžeme Vám!

Přihlášení k odběru

Nenechte si ujít nejnovější nabídky prodeje bytů 2+1 v Litvínově.