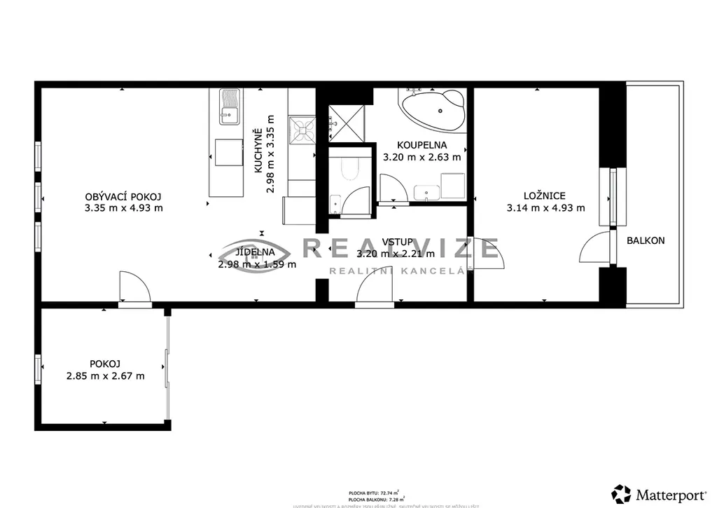
Prodej bytu 3+kk, České Budějovice, Rudolfovská tř., 66 m2 (ID: 1963945)

Rudolfovská tř., České Budějovice 3

6 690 000 Kč
/za nemovitost
včetně provize, včetně právního servisu
Hypotéka od 29 900 Kč /měs. Chci hypotéku

Parametry bytu

AdresaRudolfovská tř., České Budějovice 3
ID00716
StavbaCihlová
Stav objektuVelmi dobrý
Patro5. z 6
VybavenoAno
Lokalita objektuCentrum obce
VlastnictvíOsobní
Užitná plocha66 m2
Podlahová plocha73 m2
Třída energetické náročnostiC - Úsporná
Ukazatel energetické náročnosti93 kWh/m2 za rok
Elektřina230V
PlynPlynovod
OdpadVeřejná kanalizace
KomunikaceAsfaltová
TelekomunikaceInternet
DopravaVlak, Silnice, MHD, Autobus
VodaVodovod
Topné tělesoRadiátory
Zdroj topeníCentrální dálkové
Zdroj teplé vodyCentrální dálkový ohřev
Terasa
Výtah
Parkování

Origo partneři v Českých Budějovicích

Výkup a prodej starého nábytku

Pojištění a finance

Popis

Bydlení téměř v centru Českých Budějovic s výhledem na Černou věž, vlastním parkovacím místem v uzavřeném dvoře a terasou orientovanou do vnitrobloku pro relaxaci po práci. Tento byt 3+kk je právě na prodej a ideální příležitostí pro aktivní jednotlivce či páry, kteří chtějí bydlet v centru bez kompromisů a kvalitně.
Byt se nachází ve 4. patře (5) zděného bytového domu bez výtahu, což oceníte ve smyslu klidu v domě bez slyšitelného ježdění výtahu a s nízkými náklady na správu domu.
Koupelna disponuje rohovou vanou a sprchovým koutem, WC je samostatné. V ložnici je vestavěná prostorná skříň.
Střešní okna do ulice jsou dřevěná zn. Velux, v pokoji s terasou jsou okna plastová. Nabízí se s vybavením, které je vidět na fotkách, ale po dohodě s budoucím kupujícím je možné byt vyklidit.
Byt je vytápěn pomocí radiátorů přes centrální plynový kotel pro celý dům, který zajišťuje rovněž ohřev vody.
V koupelně je navíc podlahové topení (elektrický rošt) s vlastním ovladačem. Do budoucna se řeší možnost napojení na teplárnu.
K dispozici je společný sklep a kolárna.
Součástí kupní ceny je podíl na pozemku v uzavřeném dvoře, kde se nachází parkovací stání k bytu, což je v této lokalitě obrovskou výhodou.
Na náměstí Přemysla Otakara II. dojdete pohodlně za 5 minut.
Byt je volný ihned.
V případě zájmu vám zajistíme výhodné financování.
Pro více informací a termín prohlídky volejte makléřce.

Makléř

Máte zájem o tento byt?

Tímto, v souladu s nařízením Evropského parlamentu a Rady (EU) 2016/679, v platném znění, prohlašuji, že mi je alespoň 16 let a uděluji tak svůj souhlas se zpracováním zadaných údajů (jméno, telefon, e-mail, ip adresa) společnosti B3 Technology, s.r.o., IČ: 07330600, se sídlem Novostavby 126/23, 435 11 Lom (správce dat), za účelem předání dotazu z tohoto formuláře Vámi vybranému inzerentovi a zpětného kontaktování mé osoby. Osobní údaje bude správce zpracovávat manuálně i automaticky přímo prostřednictvím svých zaměstnanců. Informace předané tímto formulářem budou uloženy v databázi správce maximálně po dobu 10 let. Odvolání souhlasu s uložením a zpracováním poskytnutých dat lze e-mailem na info@origo-reality.cz. V případě podezření na neoprávněné použití Vámi poskytnutých údajů máte právo předat podnět k šetření Úřadu pro ochranu osobních údajů. Více informací
Chystáte se prodat nemovitost?
Pomůžeme Vám!
Theleadway banner

Přihlášení k odběru

Nenechte si ujít nejnovější nabídky prodeje bytů 3+kk v Českých Budějovicích.