Prodej bytu 3+kk, Šumperk, Žerotínova, 74 m2 (ID: 1962931)

Žerotínova, Šumperk

4 100 000 Kč
/za nemovitost
Hypotéka od 18 325 Kč /měs. Chci hypotéku

Parametry bytu

AdresaŽerotínova, Šumperk
ID0083-NP04528
StavbaCihlová
Stav objektuPo rekonstrukci
Patro3. z 3
VybavenoČástečně
Lokalita objektuOkraj obce
VlastnictvíOsobní
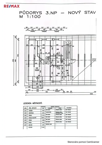
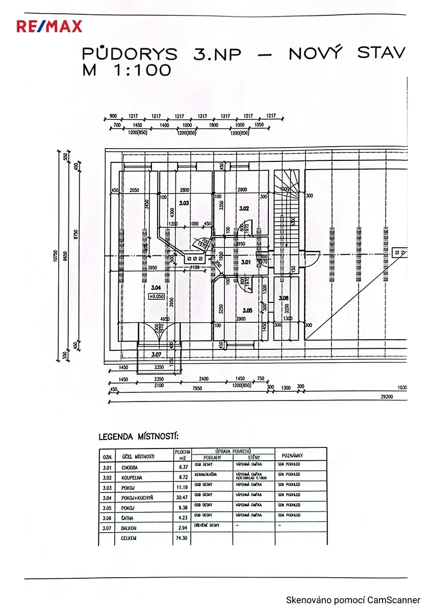
Užitná plocha74 m2
Plocha zahrady320 m2
Třída energetické náročnostiB - Velmi úsporná
Elektřina230V
OdpadVeřejná kanalizace
VodaVodovod
Parkování

Origo partneři v Šumperku

Popis

Exkluzivně nabízíme ke koupi atypický podkrovní byt na okraji města Šumperka s dispozicí 3+kk. Tento byt, resp celý půdní prostor, byl kompletně nově zbudován v roce 2011. Přestavba zahrnovala výměnu krovů, izolace, podlahy, kompletní instalace, mezibytové příčky, bytové příčky, okna, dveře, balkóny, střešní krytinu. Byt je plný velmi pozitivní energie a je velmi slunný, což lze korigovat zabudovanou klimatizací, kterou můžete rovněž v chladnějších dnech přitápět. Další příjemný zdroj tepla jsou vysoce výhřevná krbová kamna. Pro pohodlnou temperaci a vytápění je k dispozici ještě elektrokotel s teplovodním rozvodem. Byt samotný je uživatelsky velmi příjemný a má dobře řešenou dispozici, která nabízí mnoho úložných prostor jak na chodbách, tak v šatně. Dětský pokoj a obývací pokoj s balkónem jsou orientovány na jihozápad, nabízí krásné výhledy do přírody zalité sluncem. Kuchyně, ložnice a koupelna jsou orientovány do vnitrobloku na severovýchodní stranu.
Dům je plně obsazen vlastníky jednotlivých bytů a poskytuje bezproblémové soužití. Jednou z výhod je podíl na společném pozemku, kde jsou mimo zelené plochy i plochy parkovací. Po případné budoucí revitalizaci obálky domu již nebude nutné řešit žádné další opravy. Nyní společenství vlastníků nemá žádný úvěr ani jiné závazky, což snižuje už tak velmi nízké provozní náklady bytu. Před domem vede cyklostezka napojená na obec Dolní Studénky.
Zdarma zajistíme financování nákupu s výhodnou úrokovou sazbou. Neváhejte nás kontaktovat pro další informace a případnou prohlídku.

Makléř

Máte zájem o tento byt?

Tímto, v souladu s nařízením Evropského parlamentu a Rady (EU) 2016/679, v platném znění, prohlašuji, že mi je alespoň 16 let a uděluji tak svůj souhlas se zpracováním zadaných údajů (jméno, telefon, e-mail, ip adresa) společnosti B3 Technology, s.r.o., IČ: 07330600, se sídlem Novostavby 126/23, 435 11 Lom (správce dat), za účelem předání dotazu z tohoto formuláře Vámi vybranému inzerentovi a zpětného kontaktování mé osoby. Osobní údaje bude správce zpracovávat manuálně i automaticky přímo prostřednictvím svých zaměstnanců. Informace předané tímto formulářem budou uloženy v databázi správce maximálně po dobu 10 let. Odvolání souhlasu s uložením a zpracováním poskytnutých dat lze e-mailem na info@origo-reality.cz. V případě podezření na neoprávněné použití Vámi poskytnutých údajů máte právo předat podnět k šetření Úřadu pro ochranu osobních údajů. Více informací
Chystáte se prodat nemovitost?
Pomůžeme Vám!

Přihlášení k odběru

Nenechte si ujít nejnovější nabídky prodeje bytů 3+kk v Šumperku.