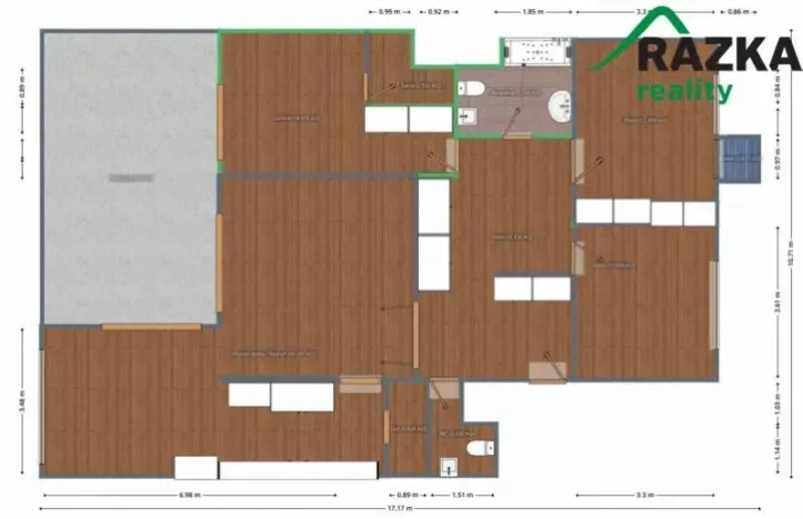
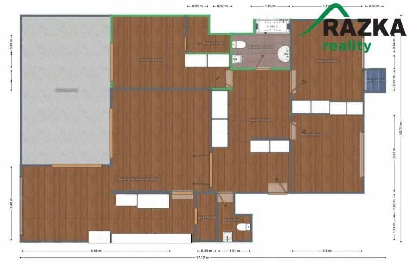
Prodej bytu 4+kk, Praha - Michle, Tigridova, 119 m2

Tigridova, Praha 1, Michle

19 900 000 Kč
/za nemovitost
sleva, cena k jednání
Hypotéka od 88 941 Kč /měs. Chci hypotéku

Parametry bytu

AdresaTigridova, Praha 1, Michle
IDPS062016
StavbaCihlová
Stav objektuVelmi dobrý
Patro2. z 4
Typ objektuPatrový
VlastnictvíOsobní
Užitná plocha119 m2
Podlahová plocha140 m2
Třída energetické náročnostiB - Velmi úsporná
Sklep
Terasa
Bezbarierový přístup

Origo partneři v Praze 1

Stěhovací služby

Výkup a prodej starého nábytku

Pojištění a finance

Popis

V exkluzivním zastoupení Vám nabízíme k prodeji nadstandardní byt 4+kk, o ploše 119 m2 s prostornou terasou o velikosti 21 m2, který se nachází ve 2. nadzemním podlaží moderní rezidenční budovy v klidné a vyhledávané lokalitě ulice Tigridova, Praha 4 Michle. Součástí nabídky je sklepní kóje (2,30 m2) a dvě parkovací stání v 1. podzemním podlaží domu.
Dispozice bytu zahrnuje tři samostatné pokoje, obývací prostor s kuchyňským koutem (moderní kuchyňská linka s vestavěnými spotřebiči), halu, šatnu, koupelnu s vanou, toaletou s bidetem, další samostatnou toaletu a také komoru.
Dominantou bytu je terasa, která rozšiřuje obytný prostor o další plnohodnotnou zónu pro volný čas a nabízí tak možnost relaxace, venkovního posezení, grilování nebo pěstování zeleně.
Byt je aktuálně nevybavený a připravený k dokončení interiéru dle individuálních představ nového majitele, který si tak může vytvořit bydlení přesně na míru dle svého vkusu. Komfort bydlení doplňují vestavěné skříně, které nabízejí dostatek úložného prostoru.
Michle patří mezi rezidenční lokality s výbornou dostupností do centra i administrativních částí Prahy 4 (Brumlovka). V okolí je kompletní občanská vybavenost (školy, školky, obchody, restaurace, kavárny i zdravotnická zařízení), zastávky MHD (autobus i tramvaj) i zeleň pro každodenní odpočinek včetně cyklostezek a sportovišť (Tyršův vrch).
Tato nemovitost nabízí ideální zázemí jak pro rodinné bydlení, tak i pro klienty hledající reprezentativní městský byt s investičním potenciálem.
Bytová jednotka je v osobním vlastnictví s možností financování hypotečním úvěrem, s jehož vyřízením Vám rádi zdarma pomůžeme.
Pro více informací o této nemovitosti nebo domluvení termínu prohlídky mne neváhejte kontaktovat.

Makléř

Máte zájem o tento byt?

Tímto, v souladu s nařízením Evropského parlamentu a Rady (EU) 2016/679, v platném znění, prohlašuji, že mi je alespoň 16 let a uděluji tak svůj souhlas se zpracováním zadaných údajů (jméno, telefon, e-mail, ip adresa) společnosti B3 Technology, s.r.o., IČ: 07330600, se sídlem Novostavby 126/23, 435 11 Lom (správce dat), za účelem předání dotazu z tohoto formuláře Vámi vybranému inzerentovi a zpětného kontaktování mé osoby. Osobní údaje bude správce zpracovávat manuálně i automaticky přímo prostřednictvím svých zaměstnanců. Informace předané tímto formulářem budou uloženy v databázi správce maximálně po dobu 10 let. Odvolání souhlasu s uložením a zpracováním poskytnutých dat lze e-mailem na info@origo-reality.cz. V případě podezření na neoprávněné použití Vámi poskytnutých údajů máte právo předat podnět k šetření Úřadu pro ochranu osobních údajů. Více informací
Chystáte se prodat nemovitost?
Pomůžeme Vám!
Theleadway banner

Přihlášení k odběru

Nenechte si ujít nejnovější nabídky prodeje bytů 4+kk v Praze 1.