Prodej výrobních prostor, Liberec, Malodoubská, 3613 m2 (ID: 1955805)

Malodoubská, Liberec VIII-Dolní Hanychov

Cena na vyžádání
/za nemovitost
Získejte výhodnou HYPOTÉKU Chci hypotéku

Parametry nemovitosti

AdresaMalodoubská, Liberec VIII-Dolní Hanychov
StavbaSmíšená
Stav objektuPo rekonstrukci
VybavenoAno
Lokalita objektuOkraj obce
Užitná plocha3613 m2
Třída energetické náročnostiG - Mimořádně nehospodárná
Elektřina230V, 400V
PlynPlynovod
OdpadVeřejná kanalizace
KomunikaceBetonová, Asfaltová
TelekomunikaceTelefon, Internet
DopravaVlak, Dálnice, Silnice, MHD, Autobus
VodaVodovod
Topné tělesoRadiátory, Jiné
Zdroj topeníPlynový kotel, Jiné
Zdroj teplé vodyPlynový kotel
Garáž
Výtah
Bezbarierový přístup
Parkování

Origo partneři v Liberci

Rekonstrukce

Úklidové služby

Popis

EXKLUZIVNÍ PRŮMYSLOVÝ AREÁL V LIBERCI

Nabízíme k prodeji multifunkční průmyslový areál strategicky umístěný blízko Liberecké průmyslové zóny JIH, mezi ulicemi Malodoubská, Dubice a Ještědská. Areál představuje ideální řešení pro výrobní, logistické či skladové aktivity s možností okamžitého užívání.

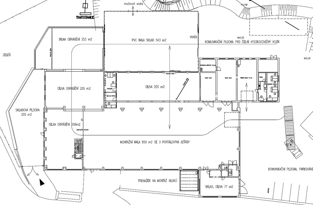
Celková užitná plocha objektů: 3 612,5 m²
• Administrativní budova: 851 m²
• Výrobní a skladové haly: 2 761,5 m²
• Výměra pozemků: 11 342 m²

STRATEGICKÁ LOKALITA A DOPRAVNÍ DOSTUPNOST
Silniční napojení:
• Dálnice D10 (Praha – Turnov) – přímé napojení
• Silnice I/35 (Mladá Boleslav – Liberec)
• Centrum Liberce – 10 minut autem
• Německo/Polské hranice – 25 km
Distribuční dosah:
• Praha – 100 km
• Mladá Boleslav – 50 km
• Zittau (DE) – 27 km
• Jelenia Góra (PL) – 75 km
Veřejná doprava:
• Tramvajová zastávka (ul. Ještědská) – 200 m
• Pravidelné spoje MHD
• Dostupnost z Jablonce nad Nisou, Turnova, Frýdlantu
Přístupnost areálu:
• 3 samostatné vjezdy z veřejných komunikací
• Nepřetržitý provoz 24/7 bez omezení
• Vhodné pro nákladní dopravu
TECHNICKÁ INFRASTRUKTURA
• Elektrická energie – NN a VN (vedení 110 kV přes areál)
• Trafostanice LB 0225 (vlastní, nekrytá) na parc. č. 33/1
• Kompletní oplocení areálu
• Zpevněné manipulační plochy
• Venkovní skladovací prostory
• Dostatečné parkovací kapacity pro osobní i nákladní vozidla

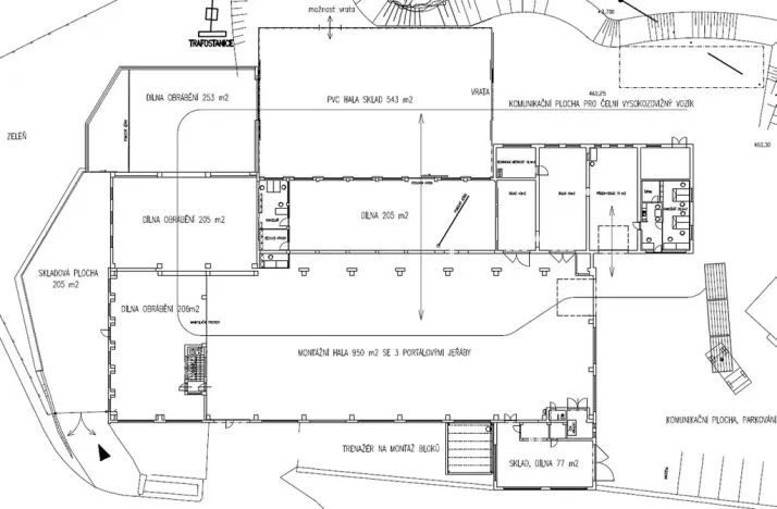
HLAVNÍ VÝROBNÍ HALA S MOSTNÍMI JEŘÁBY
Technické parametry:
Užitná plocha: 1 554,5 m²
Konstrukční řešení:
• Nosná konstrukce: montovaný železobetonový skelet
• Betonové průvlaky
• Obvodový plášť: zdivo z plynosilikátových tvárnic
• Základy: betonové patky s hydroizolací
• Střecha: zateplená, nová krytina a oplechování (2015)
Rozměry haly:
• Délka: 48 m
• Světlá výška ke střešním nosníkům: 8,4 m
• Výška k vrcholu střechy: 9,7 m
• Výška k jeřábovým konstrukcím: 7,5 m
Jeřábové vybavení:
• 2× mostní jeřáb nosnost 8 000 kg
• 1× mostní jeřáb nosnost 4 000 kg
• 1× otočný manipulační jeřáb nosnost 250 kg
• Možnost postupující výroby
Vjezdová vrata:
• Typ: sekční, elektricky ovládaná
• Rozměry hlavních vrat: 4,75 m (výška) × 4,1 m (šířka)
Vytápění:
• Plynové kotle s kovovými registry
• Doplňkové přímotopné plynové topidlo typu Sahara
Sociální zázemí (vestavěné patro 110,6 m²):
• Šatny
• Jídelna s kuchyňkou
• Archiv
• Sociální zařízení včetně sprch
Technické vybavení:
• 5 krytých výstupů pro stlačený vzduch a elektřinu v centrální
část haly
• Okna s hliníkovým rámem, izolační dvojsklo

VEDLEJŠÍ VÝROBNÍ A SKLADOVÉ PROSTORY
1. PVC skladovací hala
• Užitná plocha: 543 m²
• 2× sekční vrata (šířka 5 m, výška 4,5 m)
• Vysokonosná betonová podlaha
2. Kovová výrobní hala
• Užitná plocha: 253 m²
• Mostní jeřáb nosnost 2 000 kg
3. Obráběcí dílna
• Užitná plocha: 411 m²
• Provozně napojená na výrobní linku
4. Pomocné prostory
• Větší dílna s vlastními vraty (původně autoopravna)
• Sklady
• Čajová kuchyňka pro zaměstnance
• Kanceláře pro expedici a logistiku
• Kanceláře pro mistry výroby

Všechny prostory jsou vzájemně provozně propojeny a umožňují efektivní postupující výrobu.

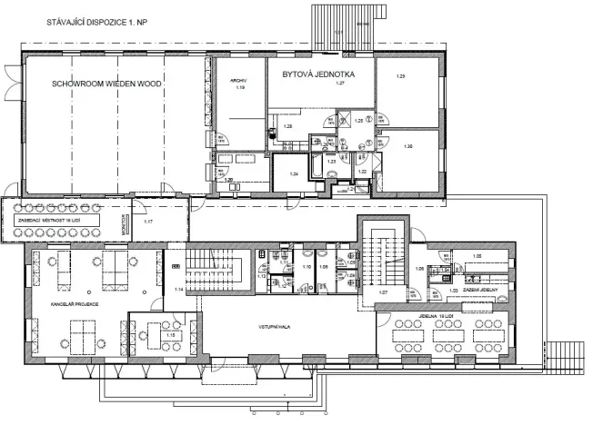
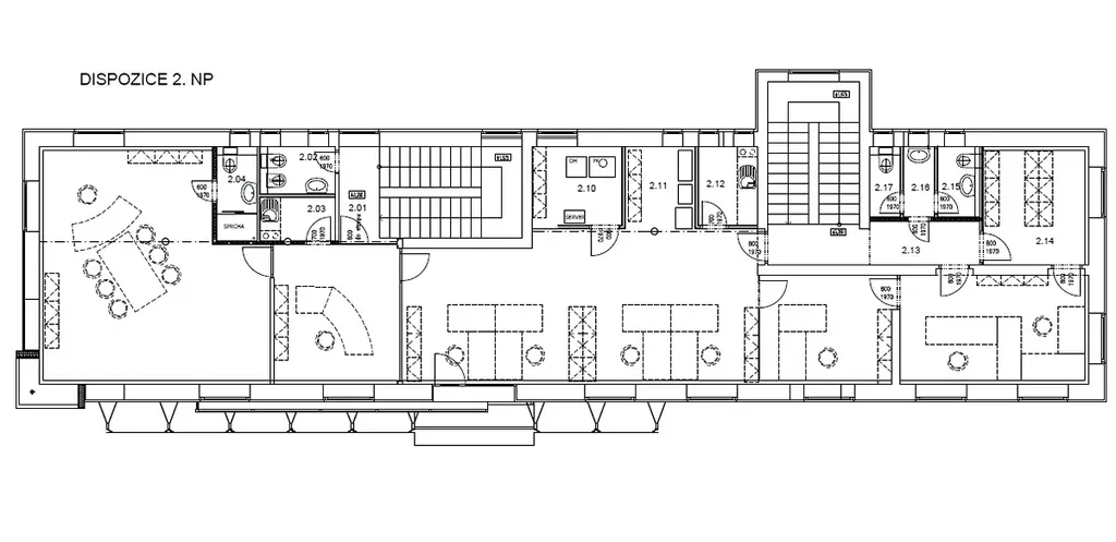
ADMINISTRATIVNÍ BUDOVA
Celková užitná plocha: 851 m²
Konstrukční řešení:
• Nosná konstrukce: zděná s tepelnou izolací 6 cm + 3 NP dřevěná konstrukce
• Okna: hliníkový rám, izolační dvojsklo, 3. NP velkoformátová
• Hliníková moderní okna
• Hliníkové interiérové a exteriérové dveře
Dispozice:
Přízemí:
• Reprezentativní showroom
• Samostatný byt 3+1 (90 m²) s vlastním vchodem
(Aktuálně pronajatý na dobu určitou)
• Zasedací místnost s prosklenou střechou a klimatizací
(propojovací krček)
• Kanceláře
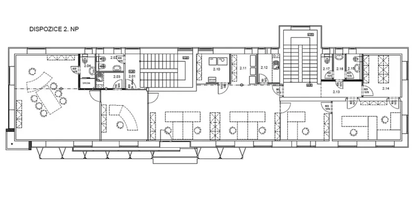
1. a 2. patro:
• Kancelářské prostory
• Sociální zařízení
3. patro (nadstavba 2017):
• Kompletně vybavený openspace pro 13 pracovních míst
• Nábytek na míru
• Samostatná zasedací místnost
Bezpečnost a přístup:
• Čipové zámky
• Elektronický docházkový systém
• Napojení na PCO (Pult centralizované ochrany)

DOPLŇKOVÉ OBJEKTY A PLOCHY
• Přístřešek pro skladování materiálu a výrobků
• Přístřešek pro venkovní posezení zaměstnanců
• Patrová ocelová konstrukce pro zkoušení skleněných fasádních prvků
• Zpevněné manipulační plochy
• Parkovací stání pro osobní i nákladní vozidla
• Pojezdová skleněná brána + závora

INVESTIČNÍ POTENCIÁL
Areál je plně funkční a připravený k okamžitému užívání bez nutnosti dalších investic.
Potenciální výnos 8,5 % p.a. při plné obsazenosti.
Možnosti využití:
• Výroba (kovoobrábění, strojírenství, lehký průmysl)
• Logistické centrum
• Skladování
• Kombinace výroby a logistiky
• Pronájem jednotlivých hal nebo celého areálu
• Dlouhodobá investice s pasivním příjmem
Výhody:
• Rozvinutá průmyslová lokalita s B2B potenciálem
• Kompletní technická infrastruktura
• Mostní jeřáby pro těžkou výrobu
• Administrativní zázemí ve vysokém standardu
• Bezpečnostní systémy (PCO, monitoring, oplocení)

V současné době probíhá příprava průkazu energetické náročnosti budovy (PENB). Proto jsou budovy dočasně zařazeny do kategorie G. Aktualizovaný PENB bude k dispozici v nejbližší době.

Makléř

Máte zájem o tuto nemovistost?

Tímto, v souladu s nařízením Evropského parlamentu a Rady (EU) 2016/679, v platném znění, prohlašuji, že mi je alespoň 16 let a uděluji tak svůj souhlas se zpracováním zadaných údajů (jméno, telefon, e-mail, ip adresa) společnosti B3 Technology, s.r.o., IČ: 07330600, se sídlem Novostavby 126/23, 435 11 Lom (správce dat), za účelem předání dotazu z tohoto formuláře Vámi vybranému inzerentovi a zpětného kontaktování mé osoby. Osobní údaje bude správce zpracovávat manuálně i automaticky přímo prostřednictvím svých zaměstnanců. Informace předané tímto formulářem budou uloženy v databázi správce maximálně po dobu 10 let. Odvolání souhlasu s uložením a zpracováním poskytnutých dat lze e-mailem na info@origo-reality.cz. V případě podezření na neoprávněné použití Vámi poskytnutých údajů máte právo předat podnět k šetření Úřadu pro ochranu osobních údajů. Více informací
Chystáte se prodat nemovitost?
Pomůžeme Vám!

Přihlášení k odběru

Nenechte si ujít nejnovější nabídky prodeje výrobních prostor v Liberci.

Podobné nabídky