Prodej rodinného domu, Troubsko, Zahradní, 185 m2 (ID: 1952756)

Zahradní, Troubsko

10 750 000 Kč
/za nemovitost
včetně provize, včetně právního servisu
Hypotéka od 48 046 Kč /měs. Chci hypotéku

Parametry domu

AdresaZahradní, Troubsko
ID03518
StavbaCihlová
Stav objektuDobrý
VybavenoČástečně
Druh objektuRohový
Lokalita objektuKlidná část obce
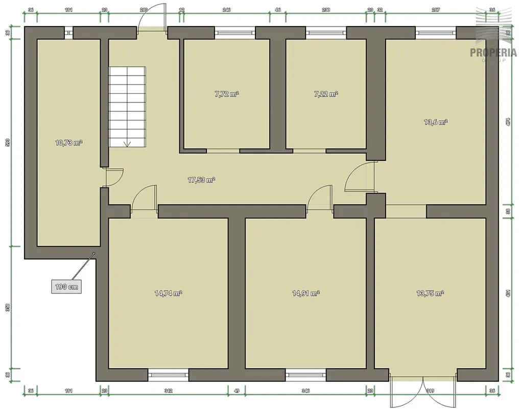
Užitná plocha185 m2
Zastavěná plocha251 m2
Podlahová plocha302 m2
Plocha pozemku479 m2
Plocha zahrady228 m2
Třída energetické náročnostiG - Mimořádně nehospodárná
Elektřina230V, 400V
PlynPlynovod
OdpadVeřejná kanalizace
KomunikaceAsfaltová
DopravaVlak, Dálnice, Silnice, Autobus
VodaStudna
Topné tělesoRadiátory
Zdroj topeníPlynový kotel
Zdroj teplé vodyBojler - elektro
Garáž
Sklep
Parkování

Origo partneři v Troubsku

Popis

Prostorný rodinný dům v obci Troubsko, Brno - venkov, který je ideální pro pohodlné bydlení.

Obytné patro (4+1) s plochou 94,6 m² s koupelnou a samostatným WC. Velkou předností je také velkorysá chodba, která dodává domu vzdušnost a komfort.

Součástí domu je půda s přístupem na terasu.

Suterén o celkové ploše 90,71 m² zahrnuje garáž, sklep a dalších pět užitných místností.

Součástí domu je rovná zahrada, která zajišťuje soukromí.

Před domem se nacházejí dvě parkovací místa, parkovaní je také možné ve dvoře.

Nemovitost je vybavena plastovými okny včetně žaluzií, novou keramickou dlažbou a palubkami. Většina elektroinstalace v obytném patře je v mědi, byly provedeny nové rozvody topení. Dům je napojen na elektřinu, kanalizaci a plyn. Voda je zajištěna ze studny s čerpadlem, přičemž obecní vodovodní řad se nachází přibližně 2 metry od hranice pozemku. Vytápění je zajištěno plynovým kotlem, ohřev vody bojlerem. Každá obytná místnost má napojení na TV.

Tento dům představuje skvělou investici do budoucna a nabízí vše, co potřebujete pro pohodlný rodinný život.
Neváhejte a přijďte se přesvědčit o jeho kvalitách osobně.

Makléř

Máte zájem o tento dům?

Tímto, v souladu s nařízením Evropského parlamentu a Rady (EU) 2016/679, v platném znění, prohlašuji, že mi je alespoň 16 let a uděluji tak svůj souhlas se zpracováním zadaných údajů (jméno, telefon, e-mail, ip adresa) společnosti B3 Technology, s.r.o., IČ: 07330600, se sídlem Novostavby 126/23, 435 11 Lom (správce dat), za účelem předání dotazu z tohoto formuláře Vámi vybranému inzerentovi a zpětného kontaktování mé osoby. Osobní údaje bude správce zpracovávat manuálně i automaticky přímo prostřednictvím svých zaměstnanců. Informace předané tímto formulářem budou uloženy v databázi správce maximálně po dobu 10 let. Odvolání souhlasu s uložením a zpracováním poskytnutých dat lze e-mailem na info@origo-reality.cz. V případě podezření na neoprávněné použití Vámi poskytnutých údajů máte právo předat podnět k šetření Úřadu pro ochranu osobních údajů. Více informací
Chystáte se prodat nemovitost?
Pomůžeme Vám!

Přihlášení k odběru

Nenechte si ujít nejnovější nabídky prodeje rodinných domů v Troubsku.