Prodej rodinného domu, Rajhrad, Syrovická, 175 m2

Syrovická, Rajhrad

13 990 000 Kč
/za nemovitost
včetně provize RK
Hypotéka od 62 527 Kč /měs. Chci hypotéku

Parametry domu

AdresaSyrovická, Rajhrad
ID00325
StavbaCihlová
Stav objektuVe výstavbě
VybavenoNe
Typ objektuPatrový
Druh objektuŘadový
Užitná plocha175 m2
Plocha pozemku283 m2
Třída energetické náročnostiA - Mimořádně úsporná
Ukazatel energetické náročnosti51.5 kWh/m2 za rok
Elektřina230V
OdpadVeřejná kanalizace
KomunikaceAsfaltová
DopravaVlak, Dálnice, Silnice, Autobus
VodaVodovod
Nízkoenergetický

Origo partneři v Rajhradu

Popis

Nabízím k prodeji rodinný dům (č.2) o dispozici 5+kk, se zastřešeným parkovacím stáním na vlastním pozemku (283 m²), ve městě Rajhrad.
Rodinný dům o podlahové ploše 175 m² je ve fázi výstavby a je jeden ze čtyř nízkoenergetických rodinných domů na ulici Syrovická, v Rajhradě.

Energetické náročnost domu je klasifikována do třídy A - mimořádně úsporné.
VÝSTAVBA ZAHÁJENA 9/2025

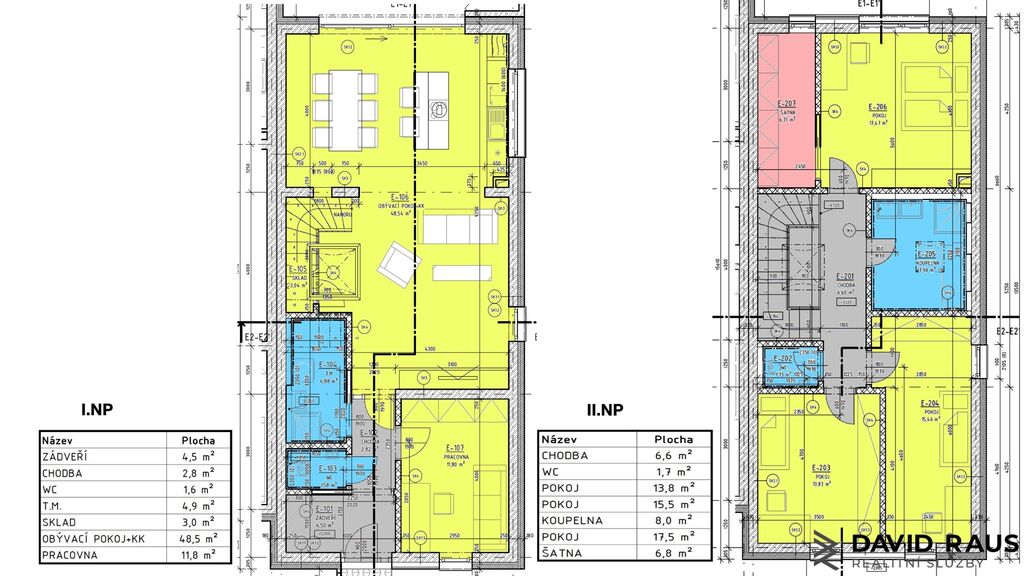
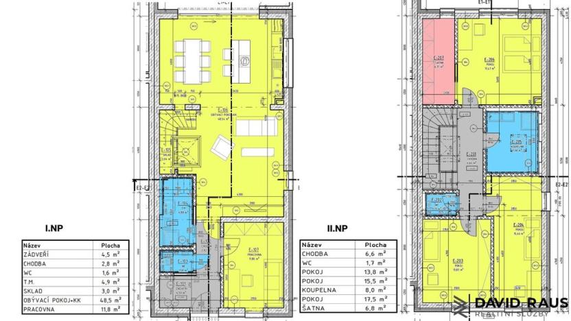
Dispozice domu:

1.NP
Vstupní dveře vedou do zádveří ( 4,5 m²), vedoucí do chodby (2,8 m²) s přístupem na samostatné WC ( 1,6 m²), do technické místnosti ( 4,9 m²), pracovny (11,8m²), skladu (3,0 m²)a otevřeného obývacího pokoje s kuchyňským koutem ( 48,5 m²). Ústředním prvkem propojující jednotlivá patra domu je schodiště z obývacího pokoje.

2.NP
Do druhého patra domu vystoupáme po schodišti na chodbu ( 6,6 m²), kde se nachází tři samostatné pokoje, které mohou sloužit jako samostatné dva dětské pokoje ( 13,8m², 15,5m²) a ložnice (17,5m²) ze které vedou dveře do šatny (6,8m²). K dispozici na patře je prostorná koupelna ( 8,0 m²) a samostatné WC ( 1,7m²).

Základní informace :

- výstavba RD na klíč (5+kk )
- podlahová plocha domu 175 m²
- užitná plocha domu 147 m²
- výměra pozemku 283 m²
- fotovoltaická elektrárna
- podlahové teplovodní topení
- tepelné čerpadlo
- zastřešené parkovací stání
- perfektní občanská vybavenost a dostupnost do města Brna
- atraktivní lokalita pro bydlení
- stavba zahájena 9/2025

Veškerý právní servis zajištěn. Nabízím možnost financování. Pro více informací kontaktujte makléře.

Makléř

Máte zájem o tento dům?

Tímto, v souladu s nařízením Evropského parlamentu a Rady (EU) 2016/679, v platném znění, prohlašuji, že mi je alespoň 16 let a uděluji tak svůj souhlas se zpracováním zadaných údajů (jméno, telefon, e-mail, ip adresa) společnosti B3 Technology, s.r.o., IČ: 07330600, se sídlem Novostavby 126/23, 435 11 Lom (správce dat), za účelem předání dotazu z tohoto formuláře Vámi vybranému inzerentovi a zpětného kontaktování mé osoby. Osobní údaje bude správce zpracovávat manuálně i automaticky přímo prostřednictvím svých zaměstnanců. Informace předané tímto formulářem budou uloženy v databázi správce maximálně po dobu 10 let. Odvolání souhlasu s uložením a zpracováním poskytnutých dat lze e-mailem na info@origo-reality.cz. V případě podezření na neoprávněné použití Vámi poskytnutých údajů máte právo předat podnět k šetření Úřadu pro ochranu osobních údajů. Více informací
Chystáte se prodat nemovitost?
Pomůžeme Vám!

Přihlášení k odběru

Nenechte si ujít nejnovější nabídky prodeje rodinných domů v Rajhradu.