Pronájem obchodního prostoru, Přeštice, Masarykovo nám., 179 m2

Masarykovo nám., Přeštice

Cena na vyžádání
/za měsíc
cena k jednání, více informací v RK
Získejte výhodnou HYPOTÉKU Chci hypotéku

Parametry nemovitosti

AdresaMasarykovo nám., Přeštice
ID0183
StavbaCihlová
Stav objektuVelmi dobrý
Patro1. z 2
VybavenoČástečně
Lokalita objektuCentrum obce
Užitná plocha179 m2
Elektřina230V
OdpadVeřejná kanalizace
KomunikaceAsfaltová
TelekomunikaceInternet
DopravaVlak, Dálnice, Silnice, MHD, Autobus
VodaVodovod
Topné tělesoRadiátory
Zdroj topeníPlynový kotel
Zdroj teplé vodyPlynový kotel

Origo partneři v Přešticích

Podlahy

Stěhovací služby

Popis

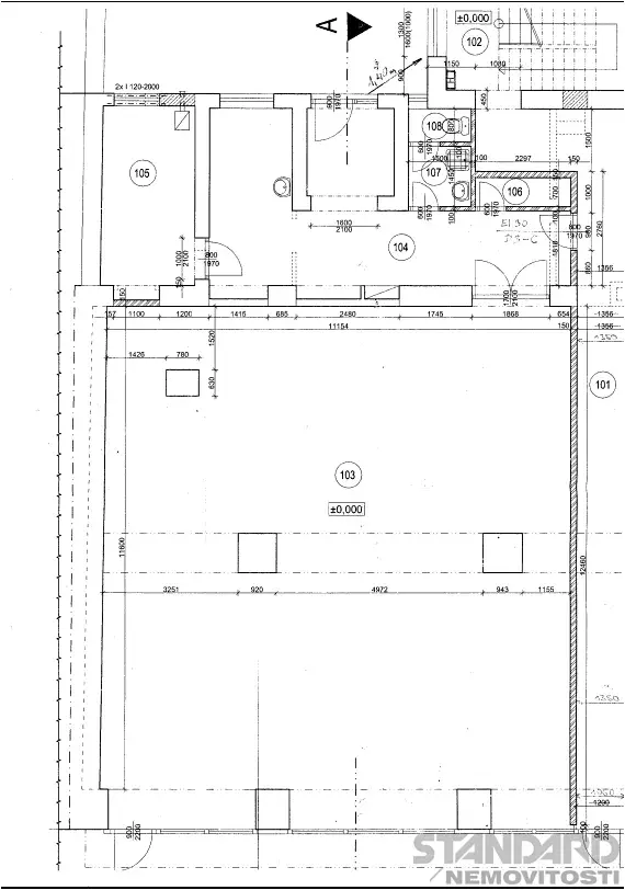
V zastoupení majitele nabízíme k dlouhodobému pronájmu světlý a funkčně řešený nebytový prostor o výměře 179 m² v přízemí bytového domu přímo na náměstí v Přešticích (okres Plzeň-jih). Prostor je napojen na veškeré IS: voda, plyn, elektřina, kanalizace.

Dispozice
• Centrální místnost 139 m² s přímým vstupem z náměstí; téměř čtvercový půdorys cca 11,15 × 12,46 m
• Zázemí 41 m²: chodba, sklad, toalety, kuchyňka, kancelář

Vybavení a standard
Vybavení a standard
• Velké prosklené výlohy se žaluziemi, vstup přes nízký schod (cca 15 cm)
• Podlahy: dlažba; okna plastová s vnitřními žaluziemi
• Topení: plynový kotel se samostatným měřením (ohřev vody)
• Voda a elektřina – samostatné odečty
• Možnost předání zařízené nebo po dohodě vyklizené

• Budova je zateplena
• Aktuálně řešíme PENB budovy, proto se zobrazuje třída G

Využití
• Aktuálně zkolaudováno jako prodejna
• Vhodné i pro služby (kanceláře, ordinace, kosmetika, kadeřnictví, pedikúra, masáže apod.); v takovém případě nutná rekolaudace a případné úpravy interiéru

Provozní náklady (aktuálně)
• Zálohy na vytápění (plyn): 2 100 Kč/měs. vč. DPH
• Elektřina: do 2 500 Kč/měs. vč. DPH
• Voda: dle skutečné spotřeby (samostatný odečet)

Finanční podmínky
• Nájemné: informace v RK (DPH dle statutu nájemce – plátce/neplátce)
• Vratná kauce: 1 měsíční nájem (DPH dle statutu nájemce)
• Provize RK: 1 měsíční nájem

Zásobování a parkování
• Zásobování: možnost vjezdu do oploceného dvora z hlavní příjezdové komunikace
• Parkování: centrální parkoviště na náměstí

Lokalita
• Centrum Přeštic, veškerá občanská vybavenost v bezprostřední blízkosti
• Výborná dostupnost do Plzně a Klatov (cca 20 km)
• Nový obchvat Horní Lukavice – dojezd do Plzně cca 10 minut autem
• Výborné spojení vlakem i autobusem

Dostupnost
• K předání po dohodě s majiteli
Pro více informací a termín prohlídky kontaktujte makléře.

Makléř

Máte zájem o tuto nemovistost?

Tímto, v souladu s nařízením Evropského parlamentu a Rady (EU) 2016/679, v platném znění, prohlašuji, že mi je alespoň 16 let a uděluji tak svůj souhlas se zpracováním zadaných údajů (jméno, telefon, e-mail, ip adresa) společnosti B3 Technology, s.r.o., IČ: 07330600, se sídlem Novostavby 126/23, 435 11 Lom (správce dat), za účelem předání dotazu z tohoto formuláře Vámi vybranému inzerentovi a zpětného kontaktování mé osoby. Osobní údaje bude správce zpracovávat manuálně i automaticky přímo prostřednictvím svých zaměstnanců. Informace předané tímto formulářem budou uloženy v databázi správce maximálně po dobu 10 let. Odvolání souhlasu s uložením a zpracováním poskytnutých dat lze e-mailem na info@origo-reality.cz. V případě podezření na neoprávněné použití Vámi poskytnutých údajů máte právo předat podnět k šetření Úřadu pro ochranu osobních údajů. Více informací
Chystáte se prodat nemovitost?
Pomůžeme Vám!

Přihlášení k odběru

Nenechte si ujít nejnovější nabídky pronájmu obchodních prostor v Přešticích.