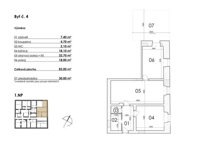
Prodej bytu 3+kk, Postupice, Blanická, 83 m2 (ID: 1951727)

Blanická, Postupice

5 997 165 Kč
/za nemovitost
Hypotéka od 26 804 Kč /měs. Chci hypotéku

Parametry bytu

AdresaBlanická, Postupice
IDBJ4
StavbaCihlová
Stav objektuProjekt
Patro1. z 2
VlastnictvíOsobní
Užitná plocha83 m2
Podlahová plocha83 m2
Plocha zahrady30 m2
Třída energetické náročnostiE - Nehospodárná
Elektřina230V
OdpadVeřejná kanalizace
KomunikaceAsfaltová
DopravaVlak, Silnice, MHD
VodaVodovod
Topné tělesoPodlahové vytápění
Zdroj topeníElektrokotel
Garáž
Sklep
Parkování

Origo partneři v Postupicích

Popis

Moderní byt s historickým nádechem – Postupice u Benešova

V unikátním projektu v Postupicích u Benešova nabízíme moderní byt 3+kk o velikosti 83 m² v 1. nadzemním podlaží. Součástí je vlastní předzahrádka s přímým vstupem z obývací části, která nabízí ideální prostor pro venkovní posezení, relaxaci, dětské hry nebo pěstování zeleně. Díky orientaci a oddělení živými ploty zajišťují soukromí a příjemný kontakt s okolní přírodou.. Historické kouzlo budovy je spojené s komfortem novostavby. Každý byt je pečlivě navržen tak, aby poskytoval maximální pohodlí, dostatek světla a funkční uspořádání pro moderní život. Vhodné pro rodiny, jednotlivce i investory.

Vlastní předzahrádka o velikosti 30m2

Parkovací stání a možnost garáží přímo v areálu

Dětské hřiště v bezpečném vnitrobloku

Klidná lokalita s rychlou dostupností do Benešova i Prahy

Kompletní občanská vybavenost v docházkové vzdálenosti (škola, školka, obchody, restaurace)

Technické informace o stavbě:

Rekonstrukce probíhá s respektem k historické hodnotě objektu a zároveň s důrazem na moderní standardy.

Konstrukce: Smíšené a cihelné zdivo, zdi o tloušťce 300–1000 mm, založené na kamenných pasech.

Stropy: Dřevěné trámové, často zdvojené pro lepší akustiku a nosnost.

Příčky: Porobeton (Ytong KLASIK) pro výbornou tepelnou a zvukovou izolaci.

Vytápění: Teplovodní systém – podlahové topení. Vlastní elektrokotel 6 kW, umístěný v koupelně, chodbě nebo šatně.

Ohřev vody: Elektrické akumulační bojlery (100–120 l) v každé jednotce.

Společné prostory: Temperované elektrickými přímotopy na 15 °C.

Napojení na inženýrské sítě: Nové přípojky na veřejný vodovod a kanalizaci v ulici Průběžná, napojení na silnoproudou elektřinu (ČEZ).

Kanalizace dešťová: Řešena zasakováním a napojením na stávající systém.

Předpokládaný termín dokončení : 6/2027

Začněte novou kapitolu v unikátním prostředí historického domu s duší a pohodlím moderního domova. Kontaktujte nás pro více informací nebo sjednání prohlídky!

Makléř

Máte zájem o tento byt?

Tímto, v souladu s nařízením Evropského parlamentu a Rady (EU) 2016/679, v platném znění, prohlašuji, že mi je alespoň 16 let a uděluji tak svůj souhlas se zpracováním zadaných údajů (jméno, telefon, e-mail, ip adresa) společnosti B3 Technology, s.r.o., IČ: 07330600, se sídlem Novostavby 126/23, 435 11 Lom (správce dat), za účelem předání dotazu z tohoto formuláře Vámi vybranému inzerentovi a zpětného kontaktování mé osoby. Osobní údaje bude správce zpracovávat manuálně i automaticky přímo prostřednictvím svých zaměstnanců. Informace předané tímto formulářem budou uloženy v databázi správce maximálně po dobu 10 let. Odvolání souhlasu s uložením a zpracováním poskytnutých dat lze e-mailem na info@origo-reality.cz. V případě podezření na neoprávněné použití Vámi poskytnutých údajů máte právo předat podnět k šetření Úřadu pro ochranu osobních údajů. Více informací
Chystáte se prodat nemovitost?
Pomůžeme Vám!

Přihlášení k odběru

Nenechte si ujít nejnovější nabídky prodeje bytů 3+kk v Postupicích.