Prodej bytu 3+kk, Ostrava, Rekreační, 51 m2

Rekreační, Ostrava, Poruba

6 209 000 Kč
/za nemovitost
Hypotéka od 27 750 Kč /měs. Chci hypotéku

Parametry bytu

AdresaRekreační, Ostrava, Poruba
StavbaDřevěná
Stav objektuNovostavba
Patro2. z 2
Lokalita objektuKlidná část obce
VlastnictvíOsobní
Užitná plocha51 m2
Třída energetické náročnostiB - Velmi úsporná
Elektřina230V
OdpadVeřejná kanalizace
KomunikaceAsfaltová
TelekomunikaceTelefon, Internet
DopravaSilnice
VodaVodovod
Topné tělesoPodlahové vytápění
Zdroj topeníPlynový kondenzační kotel
Zdroj teplé vodyBojler - elektro
Terasa
Výtah
Bezbarierový přístup
Parkování

Origo partneři v Ostravě

Popis

Novostavba bytového domu – ulice Rekreační, Ostrava–Poruba

V klidné a vyhledávané lokalitě na okraji Ostravy–Poruby, v ulici Rekreační, vzniká moderní bytový dům s komorní atmosférou, který nabídne komfortní bydlení v prostředí s „vesnickým“ charakterem, a přitom s výbornou dostupností všech služeb.

Projekt zahrnuje celkem 12 bytových jednotek:
8× byt 2+kk – již prodáno
4× byt 3+kk – aktuálně k dispozici
1.NP zděná stavba
2.NP dřevostavba

Každý byt disponuje vlastní terasou, která rozšiřuje obytný prostor a nabízí příjemné místo pro relaxaci.

Technické a komfortní vybavení
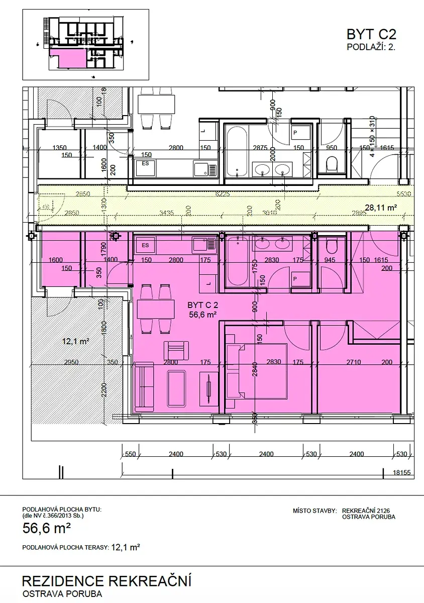
byt C2 o podlahové ploše (dle NV č.366/2013 Sb.) 56,6 m2 byt a 12,1 m2 terasa
- teplovodní podlahové vytápění
- centrální plynový kondenzační kotel jako zdroj tepla
- ohřev TÚV zajištěn elektrickým bojlerem (100 l)
- klimatizace v každém pokoji
- plastová okna s trojskly
- sedlová střecha
- cena bytu je bez kuchyňské linky (možnost realizace dle vlastního vkusu)

Parkování
- parkování přímo v areálu objektu
- možnost pronájmu nebo zakoupení parkovacího stání

Lokalita

Ulice Rekreační nabízí klidné bydlení s dostatkem zeleně, ideální pro rodiny i pro ty, kdo hledají únik od městského ruchu. Povodňová zóna 1 (nejnižší riziko, zdroj Kooperativa)

V bezprostřední blízkosti se nachází:

- škola a mateřská škola
- obchody a občanská vybavenost
- koupaliště
- Fakultní nemocnice Ostrava
- areál VŠB – Technické univerzity Ostrava

Termín dokončení
- konec roku 2026

Makléř

Máte zájem o tento byt?

Tímto, v souladu s nařízením Evropského parlamentu a Rady (EU) 2016/679, v platném znění, prohlašuji, že mi je alespoň 16 let a uděluji tak svůj souhlas se zpracováním zadaných údajů (jméno, telefon, e-mail, ip adresa) společnosti B3 Technology, s.r.o., IČ: 07330600, se sídlem Novostavby 126/23, 435 11 Lom (správce dat), za účelem předání dotazu z tohoto formuláře Vámi vybranému inzerentovi a zpětného kontaktování mé osoby. Osobní údaje bude správce zpracovávat manuálně i automaticky přímo prostřednictvím svých zaměstnanců. Informace předané tímto formulářem budou uloženy v databázi správce maximálně po dobu 10 let. Odvolání souhlasu s uložením a zpracováním poskytnutých dat lze e-mailem na info@origo-reality.cz. V případě podezření na neoprávněné použití Vámi poskytnutých údajů máte právo předat podnět k šetření Úřadu pro ochranu osobních údajů. Více informací
Chystáte se prodat nemovitost?
Pomůžeme Vám!

Přihlášení k odběru

Nenechte si ujít nejnovější nabídky prodeje bytů 3+kk v Ostravě.