Prodej vily, Šumperk, Bří. Čapků, 237 m2 (ID: 1949963)

Bří. Čapků, Šumperk

8 900 000 Kč
/za nemovitost
Hypotéka od 39 778 Kč /měs. Chci hypotéku

Parametry domu

AdresaBří. Čapků, Šumperk
StavbaCihlová
Stav objektuPo rekonstrukci
Užitná plocha237 m2
Plocha pozemku672 m2
Elektřina230V
PlynPlynovod
OdpadVeřejná kanalizace
KomunikaceAsfaltová
TelekomunikaceInternet, Kabelové rozvody
VodaVodovod
Zdroj topeníPlynový kotel
Zdroj teplé vodyBojler - elektro
Garáž
Sklep
Parkování

Origo partneři v Šumperku

Popis

Hledáte-li dům s nádechem historie k bydlení, ke dvougeneračnímu bydlení či ke spojení bydlení s podnikáním a uvítáte-li zahradu za domem, a to vše v klidné části Šumperka, tak jste narazili na tu správnou nabídku samostatně stojícího domu na ulici Bří. Čapků.

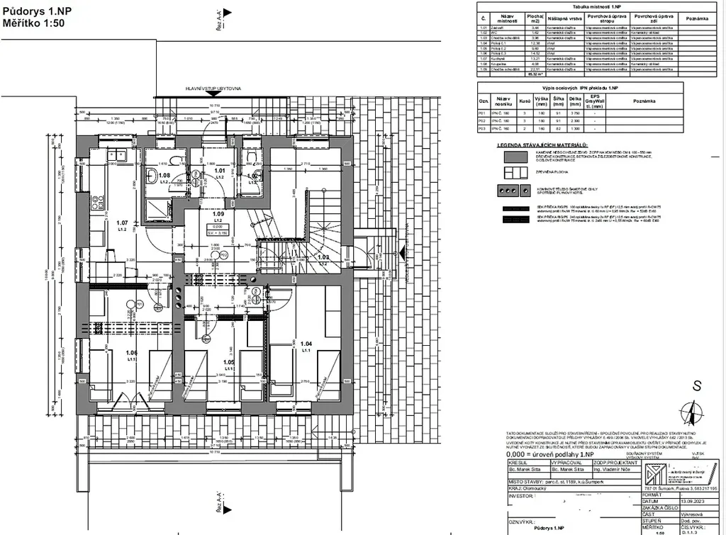
Patrový dům se sestává ze dvou bytů s možností propojení, což nabízí flexibilitu pro různé využití. Aktuálně je využíván jako stavba ubytovacího zařízení, nicméně může sloužit jako velkorysý obytný prostor pro početnější rodinu. Celková užitná plocha domu činí 237 m² a rozkládá se na pozemku o velikosti 627m². Dům postupně procházel rekonstrukcí a modernizací. Celý prostor je krásně vzdušný a slunný. Ideální pro milovníky denního světla.

Celá nemovitost má velký potenciál. Ideální pro komerční využití vzhledem k umístění stavby či k znovunavrácení prvorepublikové vily k užívání pro jeden rodinný subjekt, nebo jako pouhá investice do lokace s jistým výnosem z nájemních vztahů.

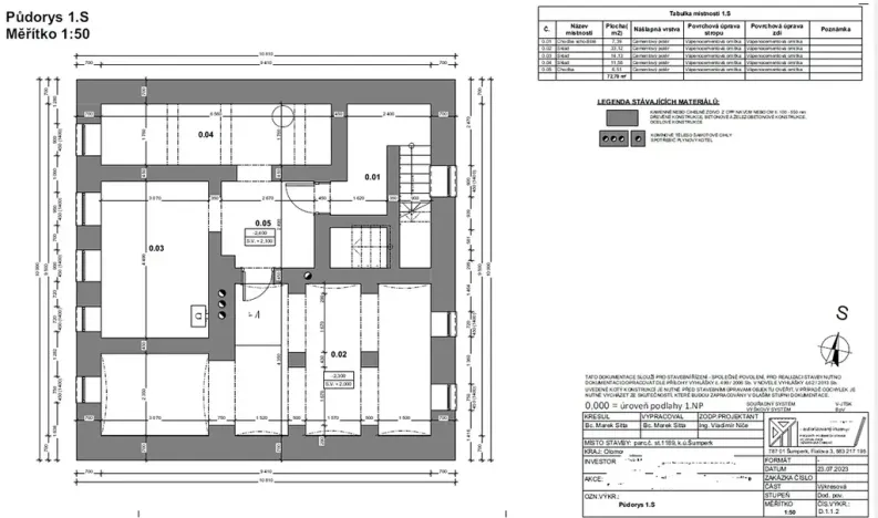
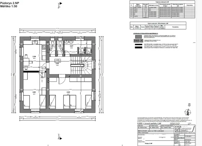
Dům je napojen na všechny inženýrské sítě – elektřinu, plyn, obecní vodovod i kanalizaci. Vytápění zajišťuje plynový kotel umístěný v suterénu domu, ohřev vody dva elektrické bojlery umístěné v koupelnách. Vila nabízí k využití 2 bytové jednotky, a to v přízemí byt s dispozicí 2+1, soc. zázemí, 60m2 s přímým vstupem do přilehlé zahrady a v 1.patře se pak nachází prostorný dvojúrovňový byt 3+1, 100m2 + soc. zázemí. Za domem je možné k užívání udržovaná zahrada s celkovou výměrou 399m2 sloužící k relaxaci, která je skutečnou oázou klidu. Součástí nabídky je i garáž o výměře 23m2 a další parkovací místa ve dvorním uzamykatelném traktu. Dům je celopodsklepený a nabízí dostatek úložného prostoru.

Využijte tento historický skvost jako firemní zázemí, kde se historie prolíná s moderním podnikáním, nebo si vytvořte vlastní rodinné sídlo, kde tradice a pohodlí jdou ruku v ruce.

Staňte se součástí této investiční příležitosti a nechte tento historický dům ožít dle Vašich představ.

Doporučuji prohlídku, dům má osobité kouzlo, které nelze na fotografiích zachytit. Přijďte se přesvědčit o jeho jedinečnosti a možnostech, které nabízí.

Makléř

Máte zájem o tento dům?

Tímto, v souladu s nařízením Evropského parlamentu a Rady (EU) 2016/679, v platném znění, prohlašuji, že mi je alespoň 16 let a uděluji tak svůj souhlas se zpracováním zadaných údajů (jméno, telefon, e-mail, ip adresa) společnosti B3 Technology, s.r.o., IČ: 07330600, se sídlem Novostavby 126/23, 435 11 Lom (správce dat), za účelem předání dotazu z tohoto formuláře Vámi vybranému inzerentovi a zpětného kontaktování mé osoby. Osobní údaje bude správce zpracovávat manuálně i automaticky přímo prostřednictvím svých zaměstnanců. Informace předané tímto formulářem budou uloženy v databázi správce maximálně po dobu 10 let. Odvolání souhlasu s uložením a zpracováním poskytnutých dat lze e-mailem na info@origo-reality.cz. V případě podezření na neoprávněné použití Vámi poskytnutých údajů máte právo předat podnět k šetření Úřadu pro ochranu osobních údajů. Více informací
Chystáte se prodat nemovitost?
Pomůžeme Vám!

Přihlášení k odběru

Nenechte si ujít nejnovější nabídky prodeje vil v Šumperku.