Prodej bytu 3+1, Kladno, Severní, 77 m2

Severní, Kladno

5 800 000 Kč
/za nemovitost
Hypotéka od 25 922 Kč /měs. Chci hypotéku

Parametry bytu

AdresaSeverní, Kladno
StavbaPanelová
Stav objektuPřed rekonstrukcí
Patro1. z 6
VybavenoNe
Lokalita objektuKlidná část obce
VlastnictvíOsobní
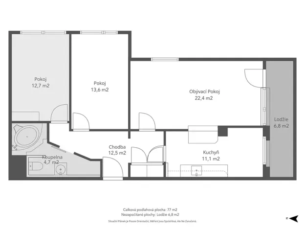
Užitná plocha77 m2
Elektřina120V, 230V
PlynPlynovod
OdpadVeřejná kanalizace
KomunikaceAsfaltová
DopravaMHD, Autobus
VodaVodovod
Topné tělesoRadiátory
Zdroj topeníÚstřední dálkové
Zdroj teplé vodyCentrální dálkový ohřev
Sklep
Lodžie
Výtah
Bezbarierový přístup

Origo partneři v Kladně

Popis

Hledáte byt k rekonstrukci v klidné části města Kladna? Exkluzivně vám nabízíme byt 3+1 v ulici Severní s podlahovou plochou 77 m² a lodžií o velikosti 6,8 m², který se nachází v přízemí domu. Byt je ideální investiční příležitostí pro rekonstrukci a následný prodej, zároveň však nabízí skvělý potenciál i pro rodinné bydlení, kdy si nový majitel může prostor upravit přesně podle vlastních představ.

Byt má praktickou dispozici s oddělenými obytnými i klidovými částmi. Skládá se z kuchyně, tří pokojů, koupelny s WC a prostorné chodby, která nabízí dostatek místa pro úložné řešení. Součástí bytu je také lodžie.

Velkou výhodou je kompletně zrekonstruovaná fasáda domu se zateplením.
Parkování je možné přímo před domem.

K bytu dále náleží sklepní kóje.

Technické parametry
– 3+1
– panel
– 1NP z 6NP
– sklep
– parkování přímo před domem
– ke kompletní rekonstrukci

Náklady na provoz
SVJ – 4.620,- Kč (teplo, studená voda, teplá voda, fond oprav, společné prostory)
Elektřina – 1.500,- Kč
Plyn – 300,- Kč (vaření)

Okolí: Byt se nachází v klidné a dobře dostupné části města Kladna. Velkou výhodou lokality je mateřská škola a základní škola, které se nacházejí v bezprostřední blízkosti ve vedlejší ulici, stejně jako sportovní hala, nabízející široké možnosti sportovního vyžití pro děti i dospělé. V docházkové vzdálenosti se nachází zastávky MHD Vašíčkova a U kostela, které zajišťují pohodlné spojení jak po Kladně, tak i směrem na Prahu.

Makléř

Máte zájem o tento byt?

Tímto, v souladu s nařízením Evropského parlamentu a Rady (EU) 2016/679, v platném znění, prohlašuji, že mi je alespoň 16 let a uděluji tak svůj souhlas se zpracováním zadaných údajů (jméno, telefon, e-mail, ip adresa) společnosti B3 Technology, s.r.o., IČ: 07330600, se sídlem Novostavby 126/23, 435 11 Lom (správce dat), za účelem předání dotazu z tohoto formuláře Vámi vybranému inzerentovi a zpětného kontaktování mé osoby. Osobní údaje bude správce zpracovávat manuálně i automaticky přímo prostřednictvím svých zaměstnanců. Informace předané tímto formulářem budou uloženy v databázi správce maximálně po dobu 10 let. Odvolání souhlasu s uložením a zpracováním poskytnutých dat lze e-mailem na info@origo-reality.cz. V případě podezření na neoprávněné použití Vámi poskytnutých údajů máte právo předat podnět k šetření Úřadu pro ochranu osobních údajů. Více informací
Chystáte se prodat nemovitost?
Pomůžeme Vám!

Přihlášení k odběru

Nenechte si ujít nejnovější nabídky prodeje bytů 3+1 v Kladně.