Prodej bytu 3+1, Kladno - Kročehlavy, Italská, 74 m2

Italská, Kladno, Kročehlavy

6 390 000 Kč
/za nemovitost
Hypotéka od 28 559 Kč /měs. Chci hypotéku

Parametry bytu

AdresaItalská, Kladno, Kročehlavy
ID19051
StavbaPanelová
Stav objektuVelmi dobrý
Patro5. z 10
VlastnictvíOsobní
Užitná plocha74 m2
Zastavěná plocha1615 m2
Třída energetické náročnostiB - Velmi úsporná
Ukazatel energetické náročnosti53 kWh/m2 za rok
Elektřina230V
PlynPlynovod
OdpadVeřejná kanalizace
KomunikaceAsfaltová
DopravaVlak, Dálnice, Silnice, MHD, Autobus
VodaVodovod
Sklep
Lodžie
Výtah

Origo partneři v Kladně

Popis

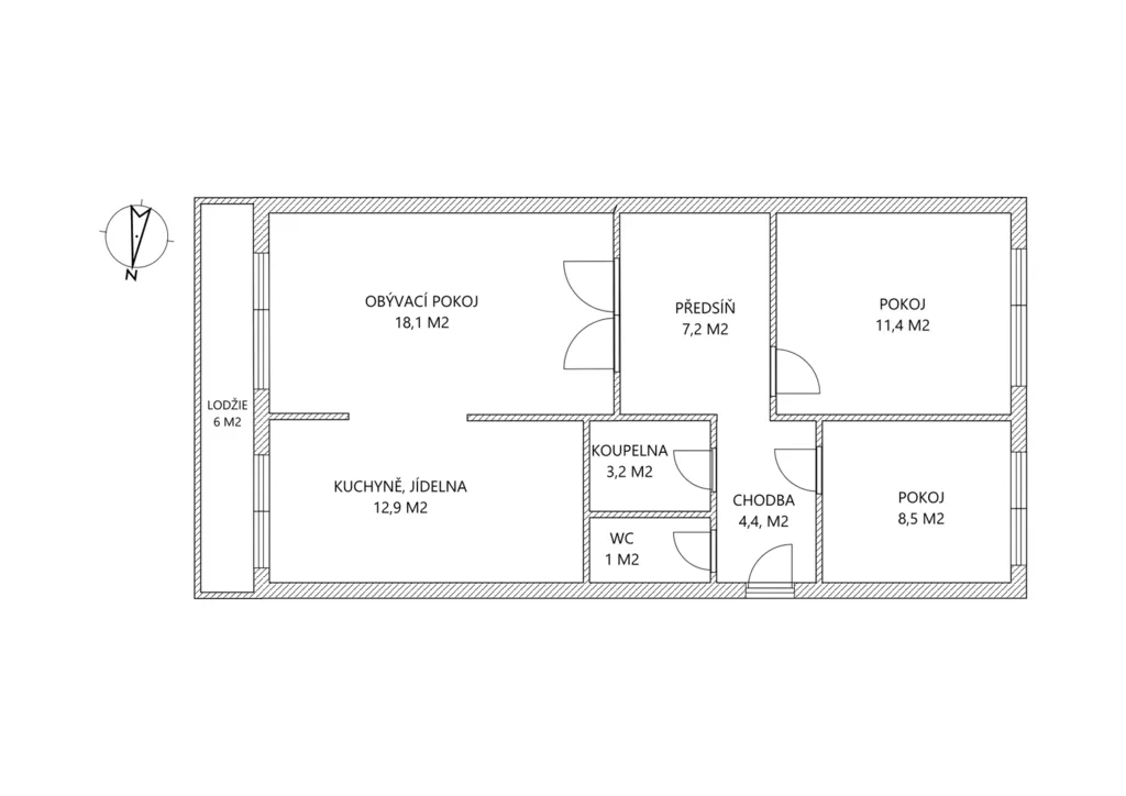
Nabízíme ke prodeji byt o dispozici 3+1 v Italské ulici v Kladně, o celkové ploše 74 m² včetně lodžie o velikosti 6 m² a komory 1 m2. Byt se nachází ve 4. patře panelového domu a nabízí praktické uspořádání i příjemnou orientaci. Lodžie je vedena přes obývací pokoj a kuchyni a je orientována na jihovýchod, což zajišťuje dostatek denního světla, zatímco dvě ložnice směřují na severozápad a poskytují klidné zázemí.

V bytě jsou plastová okna se žaluziemi a v předsíni se nachází vestavěná skříň. Bytové jádro je nové, provedené ze sádrokartonu, včetně rozvodů, jinak je jednotka v původním stavu, což nabízí možnost rekonstrukce dle vlastních představ. Na podlahách jsou lino a koberce. Kuchyň je vybavena bílou lesklou kuchyňskou linkou.

K bytu náleží praktická komora umístěná na patře a sklepní kóje.

Dům prošel kompletní revitalizací, která zahrnovala nový výtah, výměnu všech rozvodů, nový vstup do domu, zateplení fasády i střechy a instalaci nových plastových oken, což přináší vyšší komfort i energetickou úsporu.
Lokalita patří mezi velmi vyhledávané díky kompletní občanské vybavenosti a výborné dopravní dostupnosti. Přímo za domem se nachází Kaufland a McDonald’s, v okolí jsou dále školy, školky, Tesco, Lidl, zastávky MHD i cyklostezka. Výhodou je také rychlá dostupnost vlakového i autobusového spojení a pohodlné napojení směrem na Prahu.

Byt je vhodný jak pro rodinné bydlení, tak jako investiční příležitost díky lokalitě, dispozici a stavu domu po revitalizaci

Makléř

Máte zájem o tento byt?

Tímto, v souladu s nařízením Evropského parlamentu a Rady (EU) 2016/679, v platném znění, prohlašuji, že mi je alespoň 16 let a uděluji tak svůj souhlas se zpracováním zadaných údajů (jméno, telefon, e-mail, ip adresa) společnosti B3 Technology, s.r.o., IČ: 07330600, se sídlem Novostavby 126/23, 435 11 Lom (správce dat), za účelem předání dotazu z tohoto formuláře Vámi vybranému inzerentovi a zpětného kontaktování mé osoby. Osobní údaje bude správce zpracovávat manuálně i automaticky přímo prostřednictvím svých zaměstnanců. Informace předané tímto formulářem budou uloženy v databázi správce maximálně po dobu 10 let. Odvolání souhlasu s uložením a zpracováním poskytnutých dat lze e-mailem na info@origo-reality.cz. V případě podezření na neoprávněné použití Vámi poskytnutých údajů máte právo předat podnět k šetření Úřadu pro ochranu osobních údajů. Více informací
Chystáte se prodat nemovitost?
Pomůžeme Vám!

Přihlášení k odběru

Nenechte si ujít nejnovější nabídky prodeje bytů 3+1 v Kladně.