Prodej bytu 3+kk, Židlochovice, Masarykova, 56 m2

Masarykova, Židlochovice

7 381 000 Kč
/za nemovitost
včetně provize, včetně právního servisu
Hypotéka od 32 989 Kč /měs. Chci hypotéku

Parametry bytu

AdresaMasarykova, Židlochovice
ID03773
StavbaCihlová
Stav objektuVe výstavbě
Patro3. z 3
VybavenoNe
Lokalita objektuCentrum obce
VlastnictvíOsobní
Užitná plocha56 m2
Třída energetické náročnostiB - Velmi úsporná
Ukazatel energetické náročnosti63.5 kWh/m2 za rok
Elektřina230V
OdpadVeřejná kanalizace
KomunikaceDlážděná, Asfaltová
TelekomunikaceInternet, Ostatní
DopravaVlak, Silnice, Autobus
VodaVodovod
Topné tělesoPodlahové vytápění
Zdroj topeníTepelné čerpadlo
Zdroj teplé vodyTepelné čerpadlo
Balkon
Sklep
Výtah

Origo partneři v Židlochovicích

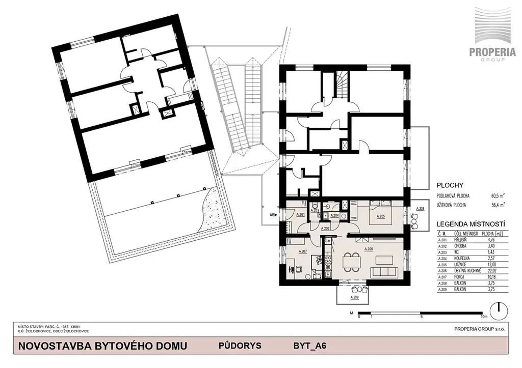
Popis

Nabízíme k prodeji moderní novostavbu bytu 3+kk v Židlochovicích u Brna. Tento byt kombinuje promyšlenou dispozici s nejmodernějšími technologiemi, které vám zajistí nízké náklady a maximální pohodlí.

Klíčové parametry bytu:
• Plocha: Podlahová plocha 60,5 m² (užitná plocha 56,4 m²).
• Dispoziční řešení: Neprůchozí pokoje, samostatná koupelna se sprchovým koutem, WC zvlášť
• Balkóny: Byt disponuje dvěma balkóny, které jsou ideální pro ranní kávu i večerní relaxaci.
• Technologie: Energeticky úsporné vytápění i chlazení tepelným čerpadlem Viessmann a komfortní podlahové vytápění.
• Smart standard: Příprava pro elektrické předokenní žaluzie pro dokonalé soukromí a termoregulaci.

K bytu je možné dokoupit vlastní venkovní parkovací stání, což vám zajistí bezpečné a pohodlné parkování hned u domu. Praktická sklepní kóje je již ve standardu.

Rezidence „Za Zubárnou“ se nachází v klidné části Židlochovic, jen pár kroků od centra. Město nabízí kompletní občanskou vybavenost (mateřská i základní škola, gymnázium, komplexní lékařskou péči i obchody - Lidl, Penny, Teta) a perfektní spojení do Brna (vlakem i autem). K relaxaci a sportu vybízí okolní příroda – můžete využít turistické a cyklistické trasy, včetně Velkopavlovické vinařské stezky a blízkosti naučné stezky Krajinou Výhonu.

Fotodokumentace zobrazuje aktuální a reálný stav. Půdorys je nezávazný, stejně jako vizualizace předestírající možnost zařízení jednotlivých místností. Předpokládaná kolaudace a předání hotových jednotek je plánováno na léto 2026. K zajištění financování koupě tohoto bytu jsme připraveni rychle a výhodně prodat nebo vykoupit vaši stávající nemovitost, popř. pomoci vyřídit hypotéku. Pro více informací kontaktujte uvedeného makléře.

Makléř

Máte zájem o tento byt?

Tímto, v souladu s nařízením Evropského parlamentu a Rady (EU) 2016/679, v platném znění, prohlašuji, že mi je alespoň 16 let a uděluji tak svůj souhlas se zpracováním zadaných údajů (jméno, telefon, e-mail, ip adresa) společnosti B3 Technology, s.r.o., IČ: 07330600, se sídlem Novostavby 126/23, 435 11 Lom (správce dat), za účelem předání dotazu z tohoto formuláře Vámi vybranému inzerentovi a zpětného kontaktování mé osoby. Osobní údaje bude správce zpracovávat manuálně i automaticky přímo prostřednictvím svých zaměstnanců. Informace předané tímto formulářem budou uloženy v databázi správce maximálně po dobu 10 let. Odvolání souhlasu s uložením a zpracováním poskytnutých dat lze e-mailem na info@origo-reality.cz. V případě podezření na neoprávněné použití Vámi poskytnutých údajů máte právo předat podnět k šetření Úřadu pro ochranu osobních údajů. Více informací
Chystáte se prodat nemovitost?
Pomůžeme Vám!

Přihlášení k odběru

Nenechte si ujít nejnovější nabídky prodeje bytů 3+kk v Židlochovicích.