Prodej vily, Matulini, Chorvatsko, 242 m2

Matulini

790 000 €
/za nemovitost

Parametry domu

AdresaMatulini
IDF23117
StavbaCihlová
Stav objektuVe výstavbě
VybavenoČástečně
Druh objektuSamostatný
Lokalita objektuKlidná část obce
Užitná plocha242 m2
Zastavěná plocha130 m2
Podlahová plocha242 m2
Plocha pozemku1080 m2
Elektřina230V
OdpadČOV pro celý objekt
TopeníLokální tuhá paliva, Lokální elektrické, Podlahové
TelekomunikaceInternet, Satelit
DopravaDálnice, Silnice, Autobus
VodaVodovod
Sklep
Parkování
Bazén

Origo partneři

Popis

V klidné obci Matulini, pouhých deset minut jízdy od moře a historického centra Poreče, vzniká moderní vila s pracovním názvem Black Beauty. Nemovitost se nachází v lokalitě, která nabízí ideální rovnováhu mezi soukromím, přírodou a rychlou dostupností městských služeb. Z jedné strany je pozemek obklopen lesem, z druhé navazuje na rodinné domy využívané k letnímu pronájmu, což potvrzuje atraktivitu oblasti i z investičního pohledu.

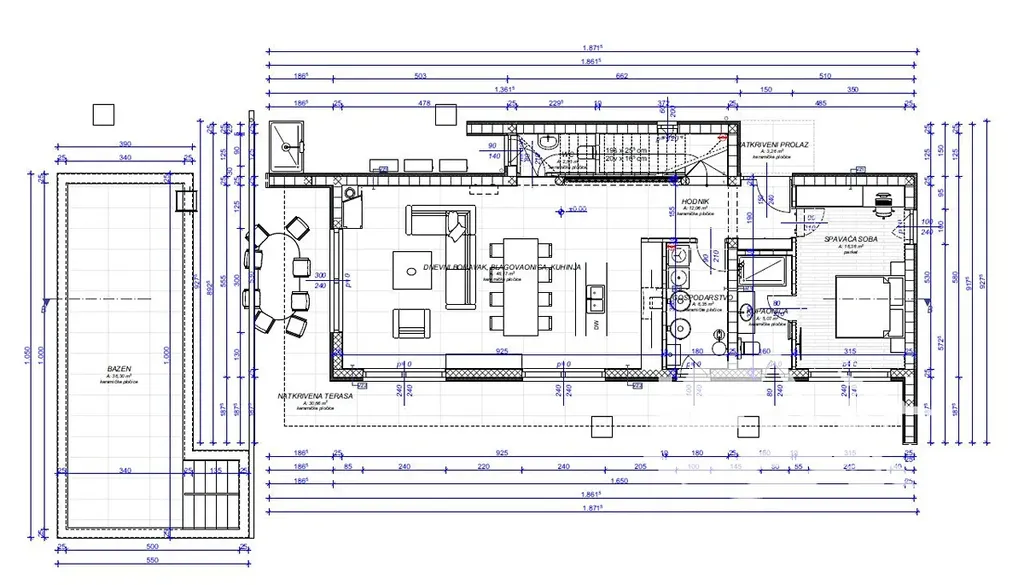
Vila je situována na prostorném pozemku o velikosti 1 080 m² a nabízí hrubou obytnou plochu 242,95 m² rozloženou do dvou podlaží. Součástí venkovní části je bazén o velikosti 36,30 m², letní kuchyně s plochou 23,88 m², samostatné venkovní úložiště a tři parkovací místa. Celý koncept domu je navržen s důrazem na komfort, funkčnost a soukromí.

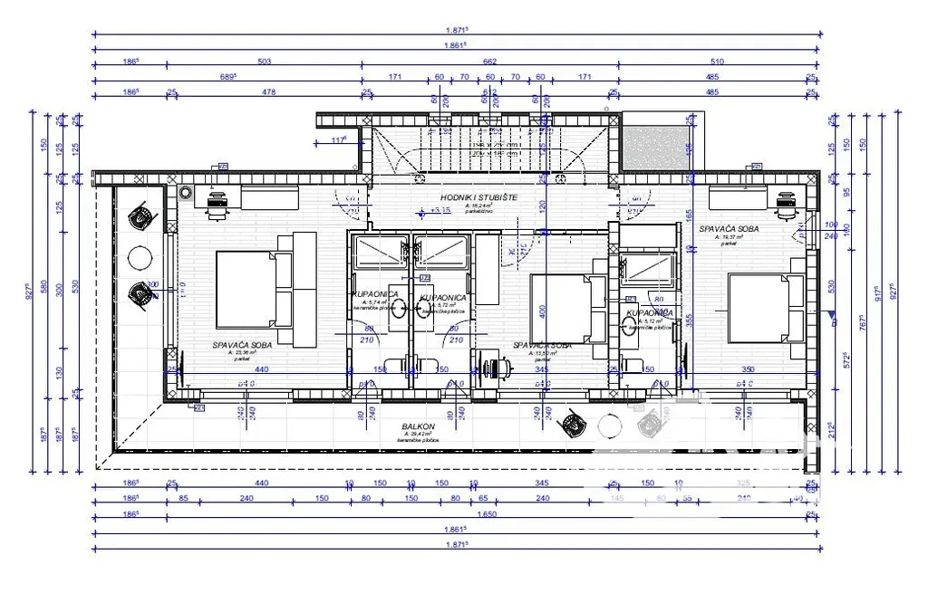
V přízemí se nachází vstupní hala s krytým průchodem, jedna ložnice s vlastní koupelnou, samostatná toaleta pro hosty a otevřený obytný prostor propojující kuchyni, jídelnu a obývací pokoj. Tento prostor plynule navazuje na částečně krytou terasu a zahradu, která vytváří ideální prostředí pro relax i společenské chvíle. V patře jsou umístěny tři prostorné ložnice, každá s vlastní koupelnou a přímým vstupem na balkon, což zajišťuje maximální komfort i soukromí pro všechny obyvatele domu.

Technické řešení odpovídá moderním standardům současného bydlení. Dům je postaven na železobetonové konstrukci, zateplen kvalitním fasádním systémem a osazen hliníkovými okny s elektrickými žaluziemi a integrovanými sítěmi proti hmyzu. Vytápění je řešeno tepelným čerpadlem vzduch–voda s podlahovým topením a přípravou teplé vody, chlazení zajišťují splitové jednotky. V obývacím pokoji je připraven komín pro krb, zahrada počítá s automatickým zavlažováním, venkovním osvětlením, alarmem a kamerovým systémem.

Velkou výhodou této nabídky je skutečnost, že vila je prodávána ve fázi roh bau. Budoucí majitel tak získává možnost přizpůsobit si interiér podle vlastního vkusu, zvolit materiály, technologie i finální styl bydlení a zároveň optimalizovat celkovou investici. Tento stav dává prostor jak pro vytvoření luxusního rodinného domu, tak pro exkluzivní vilu určenou k prémiovému pronájmu.

Black Beauty není jen stavba, ale promyšlený základ pro bydlení nebo investici v jedné z nejžádanějších částí Istrie. Kombinace klidu, přírody, moderní architektury a blízkosti Poreče z ní dělá nemovitost, která má dlouhodobou hodnotu a potenciál růstu.

Makléř

Máte zájem o tento dům?

Tímto, v souladu s nařízením Evropského parlamentu a Rady (EU) 2016/679, v platném znění, prohlašuji, že mi je alespoň 16 let a uděluji tak svůj souhlas se zpracováním zadaných údajů (jméno, telefon, e-mail, ip adresa) společnosti B3 Technology, s.r.o., IČ: 07330600, se sídlem Novostavby 126/23, 435 11 Lom (správce dat), za účelem předání dotazu z tohoto formuláře Vámi vybranému inzerentovi a zpětného kontaktování mé osoby. Osobní údaje bude správce zpracovávat manuálně i automaticky přímo prostřednictvím svých zaměstnanců. Informace předané tímto formulářem budou uloženy v databázi správce maximálně po dobu 10 let. Odvolání souhlasu s uložením a zpracováním poskytnutých dat lze e-mailem na info@origo-reality.cz. V případě podezření na neoprávněné použití Vámi poskytnutých údajů máte právo předat podnět k šetření Úřadu pro ochranu osobních údajů. Více informací
Chystáte se prodat nemovitost?
Pomůžeme Vám!

Přihlášení k odběru

Nenechte si ujít nejnovější nabídky prodeje vil.