Remax Monarcha

Prodej restaurace, Daskabát, 950 m2 (ID: 1947064)

Daskabát

17 900 000 Kč
/za nemovitost
Hypotéka od 80 002 Kč /měs. Chci hypotéku

Parametry nemovitosti

AdresaDaskabát
ID0746
StavbaCihlová
Stav objektuVelmi dobrý
VybavenoČástečně
Užitná plocha950 m2
Zastavěná plocha1016 m2
Třída energetické náročnostiG - Mimořádně nehospodárná
Elektřina230V, 400V
OdpadVeřejná kanalizace
KomunikaceBetonová, Asfaltová
DopravaDálnice, Silnice, MHD
VodaVodovod
Topné tělesoRadiátory, Přímotop, Krb
Zdroj teplé vodyKotel na tuhá paliva, Bojler - elektro, Průtokový ohřívač

Origo partneři v Daskabátě

Popis

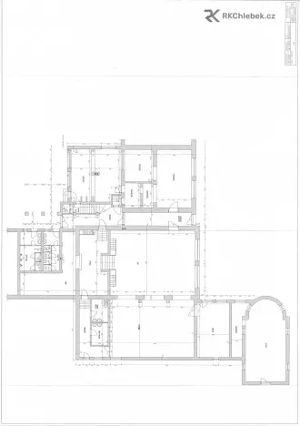
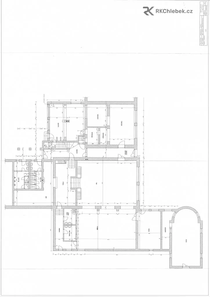
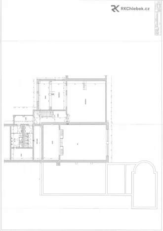
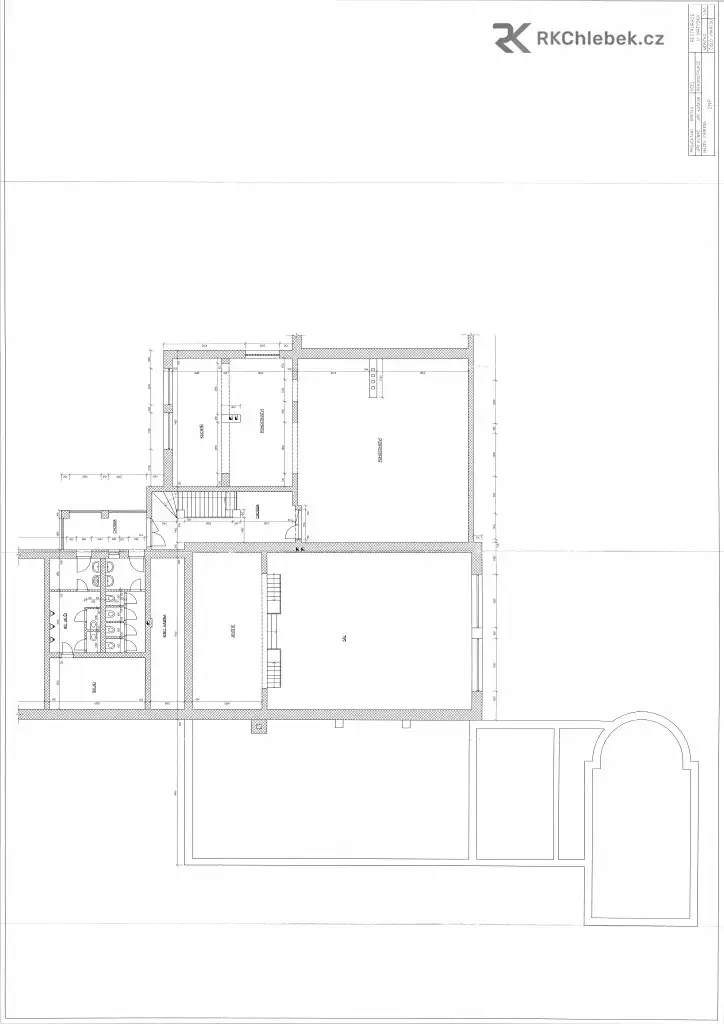
Nabízíme k prodeji zavedenou a plně funkční restauraci v obci Daskabát (okres Olomouc). Nemovitost se nachází v klidném prostředí s výbornou dopravní dostupností a představuje mimořádnou investiční příležitost – ať už pro pokračování v gastronomickém provozu, nebo přestavbu na penzion či luxusní hotel.
Popis nemovitosti:
Prostorná restaurace v přízemí i v patře s kompletním zázemím pro provoz (kuchyně, nákladní výtah, sklady, sociální zařízení) vinárna, bar, venkovní posezení, kanceláře, bytová jednotka, velký společenský sál vhodný pro pořádání svateb, oslav, konferencí a firemních akcí.
Kapacita desítek míst k sezení, možnost rozšíření venkovního posezení či letní zahrádky
Parkovací plocha pro hosty přímo u objektu
Dobrá dopravní dostupnost z Olomouce (cca 10 minut jízdy)
Investiční potenciál:
Díky své velké užitné ploše, dobrému technickému stavu a atraktivní poloze nabízí objekt široké možnosti využití:
přestavba na penzion či menší hotel s restaurací
vybudování konferenčního centra nebo svatebního místa
rozšíření o wellness zónu nebo apartmánové ubytování

Jedinečná příležitost koupit nemovitost s tradicí, která kombinuje stávající provoz s potenciálem dalšího rozvoje.
Objekt je připraven k okamžitému převzetí a může být základem vašeho dalšího podnikatelského úspěchu.

Makléř

Máte zájem o tuto nemovistost?

Tímto, v souladu s nařízením Evropského parlamentu a Rady (EU) 2016/679, v platném znění, prohlašuji, že mi je alespoň 16 let a uděluji tak svůj souhlas se zpracováním zadaných údajů (jméno, telefon, e-mail, ip adresa) společnosti B3 Technology, s.r.o., IČ: 07330600, se sídlem Novostavby 126/23, 435 11 Lom (správce dat), za účelem předání dotazu z tohoto formuláře Vámi vybranému inzerentovi a zpětného kontaktování mé osoby. Osobní údaje bude správce zpracovávat manuálně i automaticky přímo prostřednictvím svých zaměstnanců. Informace předané tímto formulářem budou uloženy v databázi správce maximálně po dobu 10 let. Odvolání souhlasu s uložením a zpracováním poskytnutých dat lze e-mailem na info@origo-reality.cz. V případě podezření na neoprávněné použití Vámi poskytnutých údajů máte právo předat podnět k šetření Úřadu pro ochranu osobních údajů. Více informací
Chystáte se prodat nemovitost?
Pomůžeme Vám!

Přihlášení k odběru

Nenechte si ujít nejnovější nabídky prodeje restaurací v Daskabátě.