Prodej bytu 3+kk, Brno, Horácké náměstí, 69 m2

Horácké náměstí, Brno, Řečkovice

7 600 000 Kč
/za nemovitost
cena je včetně provize a poplatků.
Hypotéka od 33 967 Kč /měs. Chci hypotéku

Parametry bytu

AdresaHorácké náměstí, Brno, Řečkovice
IDN08739
StavbaPanelová
Stav objektuVelmi dobrý
Patro3. z 12
VybavenoČástečně
Lokalita objektuKlidná část obce
VlastnictvíOsobní
Užitná plocha69 m2
Třída energetické náročnostiC - Úsporná
Ukazatel energetické náročnosti92 kWh/m2 za rok
DopravaMHD
Balkon
Sklep
Lodžie
Výtah

Origo partneři v Brně

Popis

Nabízíme k prodeji velmi dobře dispozičně řešený byt 3+kk se dvěma lodžiemi, který vznikl citlivou úpravou z původní dispozice 2+1 V roce 2017. Byt je navržen tak, že jej lze bez zásadních stavebních zásahů opět vrátit do původního stavu 2+1, což z něj činí zajímavou volbu jak pro vlastní bydlení, tak i pro investici. V současné době lze také pokračovat se stávajícím nájemníkem za výhodných podmínek.

Byt se nachází ve třetím patře vyhledávané a dlouhodobě stabilní lokalitě Brno – Řečkovice, přímo na Horáckém náměstí.

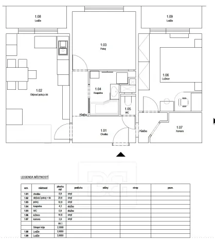
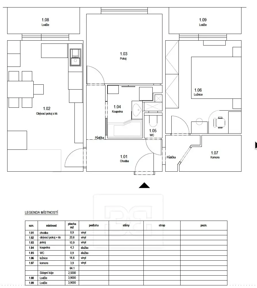
Dispozice a vybavení bytu
• prostorná vstupní předsíň se šatnou
• samostatná ložnice se zasklenou lodžií
• menší neprůchozí pokoj, vhodný jako dětský pokoj, pracovna nebo pokoj pro hosty
• samostatné WC
• koupelna s vanou, umyvadlem, topným tělesem a přípojkou na pračku
• obývací pokoj s kuchyňským koutem na míru, vybaveným všemi spotřebiči
• na obývací část navazuje druhá lodžie

K bytu náleží sklepní kóje.
Další informace
• zálohové platby okolo 7,5tis + elektřina.
• byt nabízí variabilitu dispozice dle potřeb budoucího majitele
• vhodné jak pro rodinné bydlení, tak pro dlouhodobý pronájem
• Bytový dům v roce 2016 kompletně revitalizován
• 3-fázová elektřina

Lokalita
Horácké náměstí patří mezi velmi oblíbené části Řečkovic. Lokalita nabízí kompletní občanskou vybavenost, dostatek zeleně, dobré parkování v okolí domu a výbornou dostupnost do centra Brna městskou hromadnou dopravou.

Makléř

Máte zájem o tento byt?

Tímto, v souladu s nařízením Evropského parlamentu a Rady (EU) 2016/679, v platném znění, prohlašuji, že mi je alespoň 16 let a uděluji tak svůj souhlas se zpracováním zadaných údajů (jméno, telefon, e-mail, ip adresa) společnosti B3 Technology, s.r.o., IČ: 07330600, se sídlem Novostavby 126/23, 435 11 Lom (správce dat), za účelem předání dotazu z tohoto formuláře Vámi vybranému inzerentovi a zpětného kontaktování mé osoby. Osobní údaje bude správce zpracovávat manuálně i automaticky přímo prostřednictvím svých zaměstnanců. Informace předané tímto formulářem budou uloženy v databázi správce maximálně po dobu 10 let. Odvolání souhlasu s uložením a zpracováním poskytnutých dat lze e-mailem na info@origo-reality.cz. V případě podezření na neoprávněné použití Vámi poskytnutých údajů máte právo předat podnět k šetření Úřadu pro ochranu osobních údajů. Více informací
Chystáte se prodat nemovitost?
Pomůžeme Vám!

Přihlášení k odběru

Nenechte si ujít nejnovější nabídky prodeje bytů 3+kk v Brně.